查看完整案例

收藏

下载
© Felipe Fontecilla
c.Felipe Fontecilla
架构师提供的文本描述。HARISIC y López律师事务所是一家开放的500平方米的平面图,由律师事务所使用。该办公室位于圣地亚哥金融亮点区Nueva LasCondes一栋显赫建筑的19层。通过这个项目,我们探索了不同的概念,如整合到刚性空间,延长保守空间,等级,材料的循环和表达。
Text description provided by the architects. Harasic y López Law Office is an open 500 square meters floor plan used by the law firm. The office is located on the 19th floor of a prominent building in Nueva Las Condes, a financial highlight district of Santiago. With this Project we explore different concepts such as integration into rigid spaces, lenguage of conservative spaces, hierarchies, recycling and expression of materials.
© Felipe Lavín
c.Felipe Lavín
© Felipe Lavín
c.Felipe Lavín
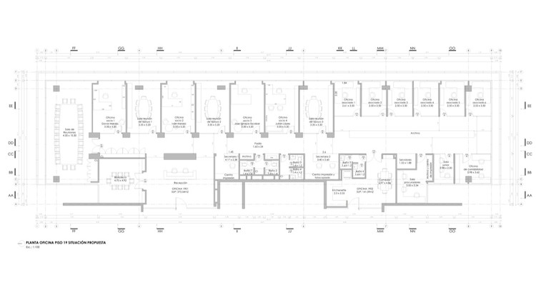
作为律师工作:因为工作方式,律师要求,孤立的空间进行集中的工作。会议不太常见。这在大型和小型法律办公室都是非常典型的。这经常转化为许多房间、走廊和断开的空间。在这个过程中,为了平衡这个效果,我们想到了一个独特的中心空间,所有的办公室都组织在其中。在这种分布情况下,我们集中步行区域、力量和促进人们之间的相遇,并随后振兴共同的领域。该布局有一条从北向南行驶的主要和宽阔的走廊,从北方接收一整天的太阳。主会议室位于走廊一端的北部,并向阿尔卡诺公园和安第斯山脉提供了意见。内部持续的是合作伙伴办事处,所有这些办事处具有相同的规模和方向,然后与相关的律师以及在一些小会议室之间举行会议,这些会议允许在办公室的几个地点举行会议。在走廊的另一边有接待处、图书馆、秘书、办公室、会计办公室、餐厅和浴室。尽管有不同的工作层次,但所有的工作都在同一空间内的个人办公室门之后立即收敛。
Working as a lawyer: Because the way of working, lawyers require, isolated spaces for concentrated work. Meetings are less common. This is very typical in both, large and small law offices. This frequently translates into a lot of rooms, corridors and disconnected spaces. In this proyect, to balance out this effect, we thought of a unique central space in which all the offices are organized within it. With this distribution we concentrate walking areas, force and promote encounters between people, and subsequently revitalize the common areas. The layout has a main and wide corridor that goes from north to south, receiving all day the sun from the north. The main meeting room is placed in the north at one end of the corridor, with views on to the Araucano park and theAndes mountains. Inmediately continuing are located partners offices, all of them with the same size and orientation, then associated lawyers and in between some minor meetings room that allow meetings at several points of the office. On the other side of the corridor are reception, library, secretaries desks, attornys, accouting office, dinning room and baths. Despite having different hierarchies of work, all converge inmediately following the personal office door in the same space.
材料的回收和表达:该项目是在最近的一个不超过三年的修复项目上执行的。考虑到废物产生的建筑项目,我们保留或回收了一些元素。例如,瓷砖地板状况很好,而且是中性的,尽管它只存在于办公室的一半,我们决定保留它,用同样的地板完成其余的地板。天花板和柱子的某些部分也是如此:在过去,是古典建筑的一部分,包括造型,现在是用木头覆盖的抽象块。为了营造一个温暖的环境,我们选择了第二种主要的纹理材料-伊姆比亚木材。主墙和柱子是用深色的伊布里亚木材回收的。此外,框架、门和家具被以同样的重要性处理。由此,该项目对这两种材料进行了中性解读。有一个不断的对话。接待室的墙壁由石灰华大理石、木板、水切割而成。选择大理石的决定是加强地板的质地,而不添加第三种材料。将钙华切割成板材的决定是:探索取暖效果,并对以这两种中性材料为主的空间进行不同尺度的处理。为了增加手工完成,我们保留了一个空间,在中间的壁画。
Recycling and expression of materials: The project was executed over a recent rehabilitacion which was no more than three years old. Given the waste generated construction projects, we kept or recycled some elements. For example, the tile floor was in excellent condition and was neutral, though it existed only in the half of the office we decided to keep it and complete the rest of the floor with the same flooring. The same with some parts of the ceiling and columns: in the past, part of a recreation of classic architecture, moldings included, now abstract block covered in wood. To generate a warm environment, we chose a second main texture-material, imbuía wood. Main walls and columns were recovered with dark imbuía wood. Also, frames, doors and furniture were treated with the same materiality. From it, the project has a neutral reading between these two materials. There is a constant dialogue. The reception walls are threated with travertine marble in planks cut with water and mate finishing. The decision of chosing marble was to reinforce the texture of the floor and not to add a third material. The decision of cutting the travertine into planks was exploring excercise to obtain a warm effect, and to give a different scale to the space that was treated mainly with these two neutral materials. To add a hand made finish we keep a space in the middle for fresco paintings.
© Felipe Lavín
c.Felipe Lavín
© Felipe Fontecilla
c.Felipe Fontecilla
在这个项目中,有一个特殊的要求,要有超过1350个档案馆和Kardex组织者的书架。在这家公司以前的办公室里,这些东西都位于每个办公室的入口墙里,隐藏着整个内部。为了给室内行为增加一些透明度和公示性,我们决定把它们放在后面走廊的中间,设计一个书架墙。这个书架在两扇门之间有几扇小窗户,可以看到走廊的另一边,并能意识到后面的空间。中立性空间也是民族艺术家在接待、走廊、主会议室等战略点上进行雕塑和绘画的舞台。
Into the program there was a special requirement to have bookshelfs for more than 1350 archives plus kardex organizers. In the former office of this firm, these were located in the access wall of each office, hiding the entire interior. To give some transparency and publicity of interior acts we decided to put them in the middle of the back side corridor, designing a bookshelf wall. This bookshelf has a few small windows in between the doors that allows to see through to the other side of the corridor and to have an awareness of the space behind it. The neutral space is also a stage for sculptures and paintings of national artists in strategic points, such as the reception, corridor and main meeting room.
© Felipe Fontecilla
c.Felipe Fontecilla
Architects EGBARQ
Location Pdte Riesco 5561, Las Condes, Las Condes, Región Metropolitana, Chile
Category Offices Interiors
Author Architect Enrique González Barrenechea
Architecture Design Team Enrique González, Jorge Ampuero, José Ignacio Contreras
Area 515.0 m2
Project Year 2015
Photography Felipe Fontecilla, Felipe Lavín
Manufacturers Loading...
客服
消息
收藏
下载
最近





















