查看完整案例


收藏

下载
© Lindung Soemahardi
C.LindungSoebmahardi
架构师提供的文本描述。房子里的每一个角落都有各自的功能,构成了一种以不同方式呈现的气氛,配偶住宅。
Text description provided by the architects. Every corner in a house owns its respective functions that makes up a braid of atmosphere, Spouse house, presented in a different way.
© Lindung Soemahardi
C.LindungSoebmahardi
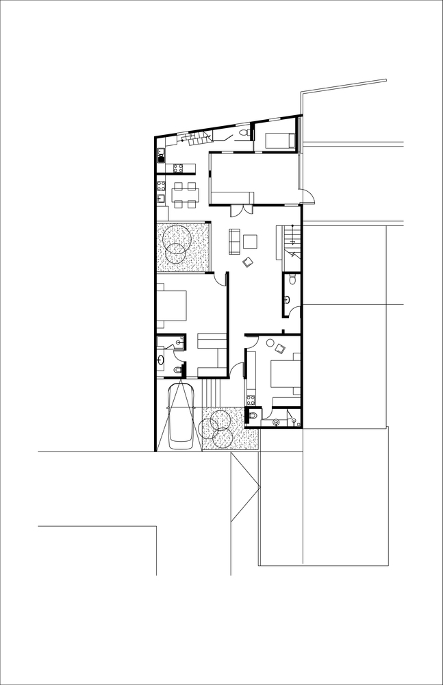
这座房子位于滨太罗的住宅区,看起来与近处的其他房屋不同。这座房子的建筑面积为200平方米,这是一个有趣的网站,因为在这个网站的正面和背面有两条主要街道,它会影响房屋的形状和功能的规划。
Located in a residential area of Bintaro, this house looks different from the other houses in the vicinity that have similar facade. This house was built with an area of 200 square meters, which is interesting in this site is due to have two main streets on the front and back side of the site, it will affect the shape and the program of the function in the home.
© Lindung Soemahardi
C.LindungSoebmahardi
场址前后两个入口的存在会导致房屋内潜在的交叉流通问题,因为应该有一个“断点”,建筑师在其中使用克朗基斯梅哲学(krowak=孔);这种krowakisme是在二楼内庭、空和桥存在的情况下翻译的。
The presence of two entrances on the front and back of the site results in a potential cross circulation problem in the house, for that there should be a 'breakpoint', in which an architect uses krowakisme philosophy (krowak = hole); such krowakisme is translated with the presence of inner court, void and bridge on the second floor.
提供内庭,以容纳新鲜空气、阳光、风等生物可以自由进入房屋,从而提高了居民的生活质量,使其变得更好、更健康。同时,空隙是在每一层空间之间创造出更多的“流体”,而桥梁则是创造一种空间感更多的享受。
Inner court is provided to accommodate the living entities such as fresh air, sunlight and wind can freely enter the house; thus, it enhances the quality of life for residents become better and healthier. Meanwhile, a void is to create the atmosphere between space of each floor more 'fluid' and the Bridge is to create a sense of space is more enjoyed.
© Lindung Soemahardi
C.LindungSoebmahardi
这所房子分成两层。考虑到中年业主,主卧室和休息室位于一楼,而二楼则有两间儿童卧室和辅助室。每个房间都毗邻空旷和/或内部庭院,因此每个房间都有照明和自然氛围。
The house is divided into two floors. Taking the middle-aged owner into consideration, the master bedroom and the common room are situated on the first floor, while in the second floor there are two bedrooms for children and supporting room. Each room is adjoining the void and / or inner court, so every room gets lighting and natural atmosphere.
房子的立面被分成两部分,所以从外观上看,有两个完整的房子。它也是基于考虑的房子的正面通向西侧,那里是正面暴露在阳光下。因此,这两个群体的划分有助于减少对房屋正面直接阳光的照射,并减少房子过于封闭的印象。左边有一个女儿的房间,右边有一个男孩的房间。因为他们有几个孩子,所以给配偶起了房子的名字,意思是一对夫妇。然后,这两个正面的模式是一致的特点,两者。这个图案是由一个三米长的铁板和白色的,以配合周围的房子。
The facade of the house is separated into two parts, so that from outside the facade looks like to have two integrating houses. It is also based on the consideration of the facade of the house leading to the west side where being frontally exposed by the sunlight. Therefore, the division of the two masses serves to reduce exposure to direct sunlight on the facade of the house and reduce the impression that the house is too closed. On the left side there is a daughter's room and on the right side there is a boy's room. Because they have a couple of kids, a Spouse House name is given that means a couple. Then the pattern of those two facades is made consistent with the character of both. The pattern is made of a three-meter iron plate and in white color to match the surrounding houses.
© Lindung Soemahardi
C.LindungSoebmahardi
Architects Parametr Indonesia
Location Pesanggrahan, Indonesia
Category Houses
Design Principal Ario Andito, Harun Wisaksono, Joffi Febriando
Project Architect Supar
Project Year 2014
Photographs Lindung Soemahardi
Manufacturers Loading...
客服
消息
收藏
下载
最近





















