查看完整案例


收藏

下载
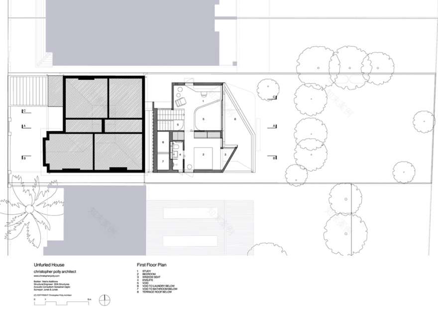
Ground Floor Plan
架构师提供的文本描述。铰接式两层框架体积是敏感地缝合到后方原始织物,同时保留它的前联邦砖石和倾斜的信封作为其环境,经济和规划价值的一部分。它有一个分段的分裂水平的关系,原来的房子,利用落地的后方,使蜂窝前计划垂直和水平展开成一系列连接的内部空间,扩大到它的设置。
Text description provided by the architects. An articulated two-storey framed volume is sensitively stitched to the rear original fabric, while retaining its front Federation masonry and hipped envelope as part of its environmental, economic and planning values. It has a sectional split-level relationship to the original house that harnesses the fall of the site to the rear, enabling the cellular front plan to vertically and horizontally unfurl into a series of connected interior spaces that expand to its setting.
© Brett Boardman Photography
布雷特·博德曼摄影
它的建造形式和它的程序分辨率响应它的即时设置和原住宅的既定条件。两层高的体积可以调节其更大、更小的邻国的规模和聚集程度,而现有的南方挫折则延伸到其南部邻国的前后墙和后方挫折的程度,以减轻邻近地区的影响。中间形式的折叠,从恢复后边缘的旧住宅,以满足两层的体积,作为一个连接点的公用空间,流通和北部庭院在计划的中心。在后面突出“楔形”,进一步展开信封,在露台上提供底层存储空间,在“公共”起居空间内提供一个大床角落,在上卧室内有一个私人阅读空间,以加强与外部环境的连接。
The built form and its program resolution respond to its immediate setting and the established conditions of the original dwelling. The two-storey volume mediates the scale and massing of its larger and smaller neighbours, with the existing southern setback extrapolated to the extent of a former rear wall and rear setback of its southern neighbour to mitigate adjacent impacts. An intermediary form folds from the underside of the reinstated rear edge of the old dwelling to meet the two-storey volume, serving as a nexus for utility spaces, circulation and a northern courtyard at the centre of the plan. Projecting ‘wedges’ at the rear further unfurl the envelope to provide ground floor storage on the terrace, a daybed nook within the ‘public’ living space, and a private reading space within the upper bedroom, for strengthened connections to its external environment.
© Brett Boardman Photography
布雷特·博德曼摄影
© Brett Boardman Photography
布雷特·博德曼摄影
可持续性,成本和规划价值所涉及的保留原来的织物是增加了一个中等大小的足迹和轻巧的框架信封在一个精心设计的‘新的构建’在后方启用。开窗位置允许扩大享受户外空间,利用自然光和促进被动通风。突出罩和外部百叶窗可以调节太阳穿透,以及替代空气通风、绝缘和内部衬里的声衰减措施有助于改善潜在的飞机噪音。中央拱形天花板允许在一个严格组织的核心和流通区域的体积膨胀,并放弃的楼面面积,使慷慨雕刻的空隙两侧的高空桥梁到天空,树木和户外空间,同时鼓励一个空间相互作用的公共,半私人和私人房间。
Sustainability, cost and planning values entailed in retaining the original fabric are augmented by a modestly sized footprint and lightweight-framed envelope in a crafted ‘new build’ enabled at the rear. Fenestration placement allows expansive enjoyment of outdoor spaces, harnesses natural light and promotes passive ventilation. Projecting hoods and external blinds temper solar penetration, and acoustic attenuation measures for alternative air ventilation, insulation and internal linings assist the performance of the envelope in ameliorating latent aircraft noise. A central vaulted ceiling allows a volumetric expansiveness over a rigorously organised core and circulation zone, and surrendered floor area enables generously carved voids flanking an upper bridge for diverse views to sky, trees, and outdoor spaces, while encouraging a spatial interplay of public, semi-private and private rooms.
© Brett Boardman Photography
布雷特·博德曼摄影
客服
消息
收藏
下载
最近































