查看完整案例


收藏

下载

翻译
A residência ZB fica localizada na cidade de Jaraguá do Sul, Santa Catarina. O terreno possui grande inclinação e aproximadamente 1400 metros quadrados.
O pedido dos proprietários incluía uma casa ampla, confortável, moderna e diferente, que tirasse partido da paisagem da cidade.
Apesar de bastante acidentado, o terreno já apresentava um platô natural, o qual foi escolhido para a implantação da residência. Esta porção do terreno está a 6 metros de altura em relação ao nível da rua, fazendo com que o pavimento garagem, localizado em nível intermediário faça a conexão entre espaço da cidade e espaço privado.
Apesar da casa ter acesso pela fachada leste, é para o lado norte que a paisagem da cidade se abre, e para onde foram dispostos todos os ambientes sociais da casa, inclusive área externa com deck de madeira e piscina.
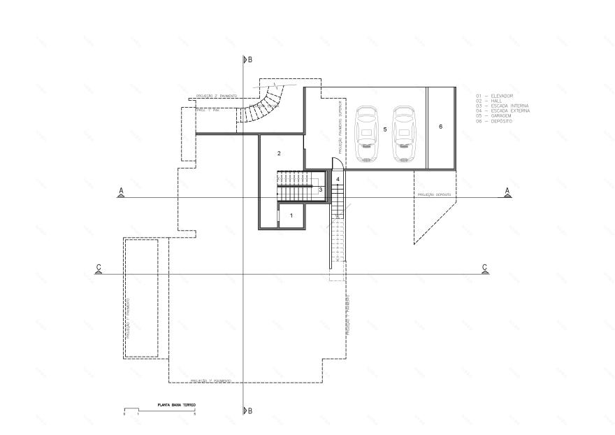
O programa solicitado foi dividido em três pavimentos e resultou em uma residência com aproximadamente 500 metros quadrados. No primeiro pavimento localizado a 3 metros de altura do nível da rua, temos garagens, depósitos, hall e elevador, no próximo pavimento encontra-se toda a área social da residência, ficando as suítes, escritório e sala íntima localizados no terceiro pavimento.
A estrutura da casa é de concreto armado e os fechamentos são em alvenaria. O concreto aparente é explorado em diversos elementos da casa, como nos pilotis na área de convívio, nos pergolados nas áreas externas, nas vigas e pilares na sala de estar, no teto da garagem, nos muros e no brise localizado na sala de estar.
Este brise soleil tem a forma de uma grelha de concreto aparente e, além de ter presença marcante na composição formal do projeto, busca proteger os ambientes internos da exposição excessiva a luz e ao calor do sol.
Os principais materiais utilizados foram o concreto aparente, a pedra portuguesa, o aço inox, o vidro e as esquadrias em pvc. As portas deslizantes, utilizadas para o fechamento da área social, possuem caixilharia em pvc e vidros laminados, permitindo grande integração com o ambiente externo da residência.
Como itens de sustentabilidade, os grandes painéis em vidro trazem luz natural para praticamente todos os ambientes da casa, fazendo com que seja pouco necessário utilizar iluminação artificial durante o dia. No closet do casal um teto em vidro laminado também auxilia neste sentido. A ventilação cruzada e natural também acontece em praticamente toda a casa, gerando conforto térmico para a edificação, o que é proporcionado também pela utilização de pérgolas em concreto aparente e do brise soleil, elementos arquitetônicos projetados para gerar sombra e proteção aos ambientes sociais e íntimos da residência.
Formas simples e linhas retas definem a característica formal desta edificação, o projeto busca referências na arquitetura moderna brasileira, desenvolvendo-se a partir do estudo do local, do programa e da construção.
Além dos princípios de projeto, utilizou-se também materiais herdados da arquitetura moderna brasileira, como o concreto aparente e a pedra portuguesa, utilizada na rampa de acesso a garagem e na escadaria que serve aos pedestres.
客服
消息
收藏
下载
最近




















































































