查看完整案例


收藏

下载

翻译
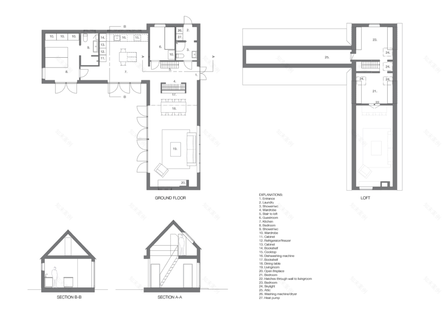
This house is located along the main street in a rural garden town in southern Sweden, near the sea and seaside resort life. The house is 114 m2 plus a loft with two bedrooms. The main building with its airy living room separates the plot from the street and opens up to the west and the enjoyable summer evenings. The materials are the simplest possible, but a lot of care has been put into thoughtful room conditions and good details. It is a house with a strong connection to the local building traditions but with a modern floor plan and design.
客服
消息
收藏
下载
最近















