查看完整案例


收藏

下载
© Toshihiro Sobajima
(3)Sobajima Toshihiro Sobajima
架构师提供的文本描述。公众自强
Text description provided by the architects. Self-build for public
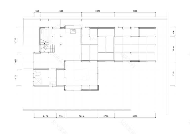
有一座空置的房子,形成了当地的社区。2013年10月,东京Komagome的“Komajii之家”开业,成为当地人居住的地方。因为原来这个空置的房子是一个宿舍,所以空间被很好地划分了。因此,这座大楼大约有一半是储藏室。当我收到设计的要求时,客户希望我能腾出该区域的库房空间,并使“Komajii之家”的结构变得独立、旋转。(它现在运行时,几乎没有收取主人好心使用的费用。)我计划打破一堵墙,扩大空间,更多的人可以聚集在一楼,把二楼改造成分享办公室,以此作为利润来源。
There is the vacant house which has formed local community. "House of Komajii" in Komagome of Tokyo opened as a place where local people stay in October, 2013. Because originally this vacant house was a dormitory, the space was divided finely. Therefore about half of the building was a storeroom. When I received the request of the design, The client expected that I released the space of the storeroom in the area, and made the structure for "House of Komajii" to become independent, and rotate. (It is run now without almost taking the fee for use by the kindness of the owner.) I plan to break a wall and enlarge the space, and more people can gather in the first floor and convert the second floor to share office as source of profits.
© Toshihiro Sobajima
(3)Sobajima Toshihiro Sobajima
在开始设计之前,我参观了这座大楼好几次。大楼的状况很糟糕,室外楼梯生锈了,死了,内墙的装修也掉了下来。但由于某种原因,许多人聚集在这样的大楼里。这是每个人都可以自由消费的地方,从邻近的孩子到老人。有时它会溢出一个人,这样就没有地方可以站起来了。社区由业主自发形成,释放了该地区空置的房屋。我想,在过去只有一台电视的时候,这个社区是由人们聚在一起看电视而形成的。政府提供的不是行政上的“公开”,而是公民“自我建构”的新公众。
I visited the building several times before beginning design. The state of the building was bad and the outdoor stairs got rusty and died, and the finish of the inner wall had come off. But many people gathered in such the building for some reason. It is the place that everybody can spend from a neighboring child to the elderly freely. It sometimes overflows with a person so that there's no place to stand in. The community has formed spontaneously by the owner releasing the vacant house in the area. I think the scene like that the community was formed by people gathering for TV in old times when there was only one TV in the town is near that. It is not the "made" public that the government provides administratively, but the new public by "self-build" of citizen.
© Toshihiro Sobajima
(3)Sobajima Toshihiro Sobajima
© Toshihiro Sobajima
(3)Sobajima Toshihiro Sobajima
我从一位当地用户那里收取了翻修的全部费用。此外,我还让当地人参与DIY,并把个人的思想留给了大楼。我优先考虑的是,我不花钱就扩大了空间。因此,不同性格的东西在一个空间里是同时存在的,例如刚被拆除的粗糙的空间,刚刚离开的日式房间,新修的白墙,我转移和重复使用的旧装置,孩子们的高度被雕刻的柱子,邻近的外国学生用纸板做的转换板,业主的祖父手工制作的招牌,一个老工匠做的农场。我把这些不同的东西混合在一起,没有秩序,我的目的是让它们在自然状态下存在。我设计的建筑不是通过积累许多人的“自我建构”而产生“制造”感觉的。
I collected all the expenses of the renovation from a local user. In addition, I had local people participate in DIY, and the thought of the individual has been left to the building. And I gave priority to that I enlarged the space without spending money. Therefore the things of the different character are simultaneous in one space, for example the rough space that was only dismantled, the Japanese-style room which was just left, newly finished white wall, the old fixtures which I transferred and reused, the pillar that the heights of children were carved , the switchplate which a neighboring foreign student made with cardboard, the signboard which grandfather of the owner handcrafted, and ranma which an old craftsman made. I mix such different things without order and aim at letting them exist in a natural state. I design the architecture which does not make “made” feeling by accumulation of the “self-build” of many people.
© Toshihiro Sobajima
(3)Sobajima Toshihiro Sobajima
Architects Kazuyuki Takeda
Location Bunkyo, Japan
Category Renovation
Area 100.0 m2
Project Year 2016
Photographs Toshihiro Sobajima
Manufacturers Loading...
客服
消息
收藏
下载
最近
































