查看完整案例


收藏

下载
架构师提供的文本描述。一家酿酒厂在Gelibolu的乔纳克卡莱的Eceabat区.该建筑项目属于Tekeli-Sisa建筑合作公司,这是土耳其著名的建筑事务所之一,我们在建筑阶段开始后开始了我们的室内建筑项目。我们的优势是在一个相对好的时机内工作,有来自Tekeli-Sisa办公室的DILGün Saklar和Mehmet Eminırkaya在场。
Text description provided by the architects. A winery that takes place in Çanakkale’s Eceabat district in Gelibolu... The architectural project belongs to Tekeli-Sisa Architectural Partnership, which is one of the well established architectural offices in Turkey.We commenced our interior architectural project following the start of the construction phase of the building. We had the advantage of working within a relatively good timing, in presence of Dilgün Saklar and Mehmet Emin Çakırkaya from Tekeli-Sisa Office.
© Cemal Emden
Cemal Emden
与所有其他工厂一样,酿酒厂必须被设计为以尽可能的方式满足其存在的所有必需品。我们的目的是提供一种防止有机过程中断的设计。约16.000m2的建筑包括生产和储存部分以及实验室和办公室等服务方案。除此之外,还有一家宾馆,有25间客房,包括食物和饮料等服务区域。和特定的SPA程序。
A winery, like all other factories, has to be designed to meet all the necessities of it’s existence, in the best way possible. Our aim was to provide a design preventing any disruption of the organic process. The building which is approximately 16.000m2 includes production and storage sections as well as service programmes such as laboratories and offices. In addition to this there is a guesthouse with 25 rooms including service areas for food and beverage etc. and a specific spa program.
© Cemal Emden
Cemal Emden
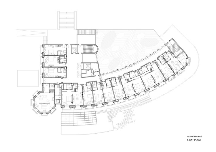
1st Floor Plan
一楼图则
© Cemal Emden
Cemal Emden
在生产部分,结构(混凝土)尽可能简单,同时部分使用涂料进行防水和移动模块可能产生的任何影响。原始金属结构与粗糙的工业附件细节结合在一起,而实木元素则被精心处理。这些类型的酒庄最有可能在一年中特别短的时间内变得活跃,其余的时间则不活跃。各种参观,品尝活动和宾馆的存在成为设施的外向型面孔。我们为这些访问/活动设计了一个展示空间和室内休息室。办公室、宾馆和酒厂正门前的公共空间被设置为具有象征性的三维空间。
At the production section the structure (concrete) was left as plain as possible while using coating partially as needed for water resistance and for any impacts that may come from the moving modules. Raw metal structures were incorporated with rough industrial attachment details while solid wood elements being delicately handled. These type of wineries are most likely to become active on particularly short periods of the year and inactive for the rest of it. Various visits, tasting events and the presence of the guesthouse becomes the extroverted face of the facility. We designed an amphi - presentation space as well as an in house lounge for these visits/ events. The common space facing the main entrance for the offices, guesthouse and winery were setup to be figuratively three dimensional.
© Cemal Emden
Cemal Emden
© Cemal Emden
Cemal Emden
包括储存和老化部分,我们考虑了所有材料的复制和关系,包括整个酒厂的空间。
Including the storage and ageing sections, we considered the reproduction of all materials and relations within the inclusion of the whole winery space.
© Cemal Emden
Cemal Emden
宾馆由彼此不同的房间组成。由于每个房间的睡眠空间、设置、材料用途和湿空间不同,而所有空间的设计/编程都与其附件、服务和材料有关。
The guesthouse consists of rooms differing form one another. As in each room the sleeping space, the setup, the material use and wet spaces differ while all were designed/ programmed in relation with their attachments, services and materials.
Architects CM Mimarlik
Location Çanakkale, Çanakkale Merkez/Çanakkale, Turkey
Category Winery
Area 16000.0 sqm
Project Year 2015
Photographs Cemal Emden
Manufacturers Loading...
客服
消息
收藏
下载
最近



































