查看完整案例

收藏

下载
© David Giancatarina
c.David Giancatarina
架构师提供的文本描述。在马赛市中心完成这套复式公寓的翻新工程。现有的单位严重缺乏光线,其主要房间受到中央楼梯的限制。
Text description provided by the architects. Complete refurbishment of this duplex in the center of Marseille. The existing flat suffered from a significant lack of light and its main rooms were constrained by the central staircase.
© David Giancatarina
c.David Giancatarina
建筑师们通过拆除楼梯和大部分隔墙,完全解放了公寓的心脏。这套公寓的入口处现在有一个宽敞的双高度空间,提供了两层不同空间之间的视觉交流。
The architects completely released the heart of the apartment by removing the stairs and most of the partitions. The entrance of the flat now enjoys a generous double height volume that offers a visual communication between the different spaces of the two storeys.
玻璃地板和栏杆补充了体积的影响,并允许大量的日光穿透在公寓的中心。此外,混凝土墙重申了中心体积的垂直性,并支持最小的金属楼梯。
Glass floors and railings complement the effect of volume and allow a large penetration of daylight in the very center of the flat. In addition, a concrete wall reaffirms the verticality of the central volume and support the minimal metallic staircase.
© David Giancatarina
c.David Giancatarina
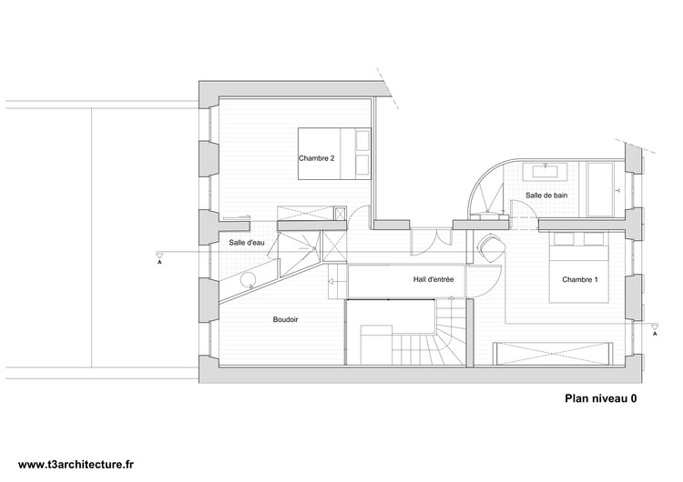
主卧室中令人印象深刻的传统石膏天花板已经翻新,是一个强大的组成部分,使该单位的特点。为了能从起居室中看到它,建筑师们在混凝土墙的上部增加了一个狭窄的玻璃开口。
The impressive traditional plaster ceiling in the main bedroom has been renovated and is a strong component that gives the flat its character. In order to make it visible from the livings rooms, the architects added a narrow glazed opening on the upper part of the concrete wall.
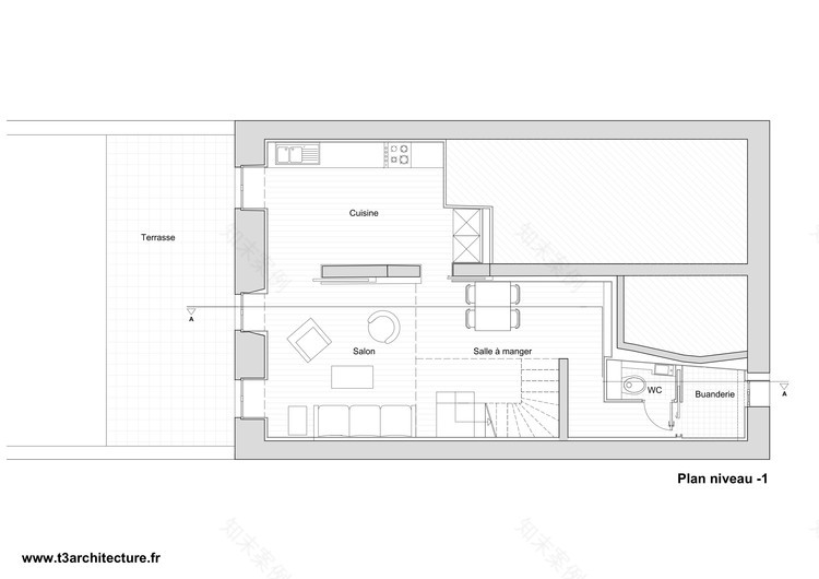
Floor Plan
Floor Plan
在第二间卧室旁边的上一层增加了一个小浴室。它的三角形状留下了一个自由的区域,容纳了一个休息室空间。这个空间是由一个薄薄的金属玻璃隔板关闭,允许光线到达平面的入口。
A small bathroom was added on the upper floor next to the second bedroom. Its triangle shaped leaves a free area that hosts a lounge space. This space is closed by a thin metallic glass partition that allows light to reach the entrance of the flat.
© David Giancatarina
c.David Giancatarina
客厅和厨房位于最底层,在露台和花园里有开口。
The living room and the kitchen are located at the bottom level and enjoy openings on the terrace and garden.
© David Giancatarina
c.David Giancatarina
Architects T3 Architecture
Location Marseille, France
Category Renovation
Architect in Charge Luc Lacortiglia, Christophe Pinero
Area 100.0 sqm
Project Year 2016
Photographs David Giancatarina
Manufacturers Loading...
客服
消息
收藏
下载
最近


















