查看完整案例

收藏

下载
© José Campos
(JoséCampos)
架构师提供的文本描述。博阿维斯塔是一个单一家庭的房子翻新在一个著名的波尔图街,具有相同的名称。这块地块是上个世纪的一栋房子,它面临着一条最繁忙的街道,但却在街区的内部提供了一个花园。
Text description provided by the architects. Boavista is a single-family house refurbishment in a well-known Porto street with the same name. The plot was a last century house in an advanced state of ruin facing one of the busiest streets, but offering a garden in the interior of the block.
© José Campos
(JoséCampos)
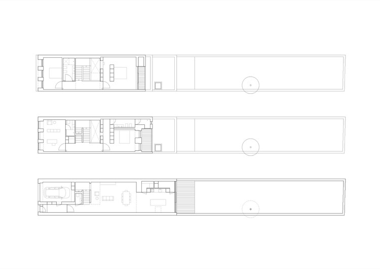
Floor Plans
平面图
© José Campos
(JoséCampos)
这些旧建筑的宽度限制,使住宅的边界延伸到内部庭院。这样,就提供了一个慷慨的区域,通过一个相邻的空间来设置整个社会区域。厨房的延伸与花园相连,在与外部的关系中起着至关重要的作用。一个轮式木岛允许灵活地使用空间。一层木百叶窗的特点,延伸外观和设置不同层次的阴影。
The width limitations of these old constructions invite the dwelling to extend its boundaries to the inner courtyard. With this, a generous area is provided, setting the entire social area through one contiguous space. The kitchen extension connects to the garden, assuming a crucial role in the relation with the exterior. A wheeled wooden island allows a flexible use of the space. A skin of wooden shutters characterize the extension façade and set different layers of shade.
© José Campos
(JoséCampos)
© José Campos
(JoséCampos)
在中心,一个轻的核心被解决,是楼梯在不同的发展阶段,与这一空隙的不同关系。因此,重新审视了天窗的主题,探讨了这些旧建筑的主要特征之一,并加强了它对这些类型结构的重要性。天窗的高度定义了一个不寻常的住宅尺度,允许三层楼之间的视觉关系。
In the center a light core is settled, being the stairs developed in different stages with different relations with this void. Therefore the theme of the skylight is revisited, exploring one of the main features of these old constructions and enhancing its importance on the structure of these typologies. The height of the skylight defines an unusual residential scale allowing visual relations between the three floors.
© José Campos
(JoséCampos)
Architects Pablo Pita Arquitectos
Location Porto, Portugal
Category Houses
Project Team Pablo Rebelo, Pedro Pita, Ricardo Oliveira, Catarina Alegria
Area 260.0 sqm
Project Year 2016
Photographs José Campos
客服
消息
收藏
下载
最近




































