查看完整案例

收藏

下载
架构师提供的文本描述。在Connect Parkville,我们追求“缝合”城市织物与“安静的建筑”的想法,由奥地利建筑师赫尔曼捷克的“建筑作为背景”。我们的工作原则是“简单的行动”和经济:不超过,或更少,这是实现我们的计划所必需的。
Text description provided by the architects. In Connect Parkville we pursue the idea of “stitching together” urban fabric with “quiet architecture”, informed by Austrian architect Hermann Czech’s “architecture as background”. We work to principles of “simple moves” and economy: no more, or less, than is necessary to achieve our program.
这些都是普遍的理想应用在一个网站和简短的具体反应。这个项目,一个五口之家,在一个视觉完整,但功能受到强调的保护区,需要另一层的现有程序和建造形式。我们的插入是一个安静的加法,它不依赖于引用,而是以适当的信心执行的规模和对比。加法是背景,它的外表随意,由轻盈而成。
These are universal ideals applied in a site and brief specific response. This project, for a family of five in a visually intact but functionally stressed conservation area, required another layer over existing program and built form. Our insertion is a quiet addition that relies not on references but scale and contrast executed with appropriate confidence. The addition is backdrop, its exterior casual, formed by lightness.
© Rhiannon Slatter Photography
(2)非物质摄影(英文)
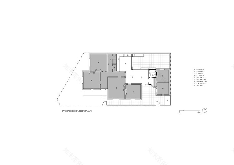
我们从字面上考虑了分层的想法:简约(住宿、家庭活动、户外活动、储存)需要新的空间(内部和外部)、连通性和皮肤:地板、墙壁、屋顶。
We have taken the idea of layering literally: the brief (accommodation, domestic activities, outdoor activities, storage) calls for new space (internal and external), connectivity and a skin: floor, wall, roof.
皮肤对外界的保护和开放,并与其构建的环境有关。在实心砖墙的包围下,新的建筑是分层和松散的:屋顶被提升、劈开和延伸;新墙显示多层表皮;主墙面用模糊的玻璃屏蔽,以表示模糊。在街道上,新增加的东西在阳光下看起来是透明的,延伸的部分似乎浮在水面上。太阳穿透天窗,持续到外面,反射增加了“层光”的概念。我们推动我们的计划,努力把这个细节纳入这个国内领域(并且保持在这个性质的项目的平均成本之内)。
The skin protects from and is open to the outside, and relates to its built context. Surrounded by solid masonry walls, the new works are layered and loose: the roof is lifted, split and extended; new walls show multiple skins; the main façade is screened with obscure glass to express ambiguity. To the street the new addition appears transparent under the sun and the extension seems to float. Sun penetration through skylights continuing to the outside and reflections add to the notion of “layers of light”. We pushed our program hard to incorporate this detail into this domestic realm (and stay within average costs for a project of this nature).
© Rhiannon Slatter Photography
(2)非物质摄影(英文)
我们引入了易用性、非正式性、轻盈性等多种含义。这座老房子是为流动和互动而开放的,主要的住宅和外面的建筑都与简单的手势相连。家庭中的公共功能是分开的,但却是相互联系的:厨房作为过渡空间;用餐是一个离散的充满光线的中庭;客厅是内向的退却。为了创造一个天生可持续的项目,解决方案考虑了太阳能控制、热舒适、自然光和通风。
We introduced ease of use and informality, lightness in more than one sense of the word. The old house was opened for flow and interaction; main residence and out building linked with simple gestures. Communal functions in the home are separate but connected: the kitchen as transitional space; dining a discrete light-filled atrium; and the living room as introvert retreat. To create an inherently sustainable project the solution considers solar control, thermal comfort, natural light, and ventilation.
© Rhiannon Slatter Photography
(2)非物质摄影(英文)
CONNECT Parkville为其更新的城市结构做出了谦逊的、尊重的、但值得注意的贡献。
Connect Parkville makes a modest, respectful, but notable contribution to its renewed urban fabric.
© Rhiannon Slatter Photography
(2)非物质摄影(英文)
Architects Steffen Welsch Architects
Location Melbourne, Australia
Category Extension
Project Year 2015
Photographs Rhiannon Slatter Photography
客服
消息
收藏
下载
最近

















