查看完整案例


收藏

下载
© Joe Fletcher
乔·弗莱彻
架构师提供的文本描述。一对博览群书、人来人往的夫妇委托这栋房子作为他们在旧金山一座高楼中的小公寓的对立面。他们的房子是用来收藏来自世界各地的书籍和文物。这个项目要求“他和她的”办公室在房子的两端,鼓励人们关注,但也允许在中央厨房周围互动。他们想要一个地方,在反思性和鼓舞人心的沿海环境中阅读和写作。
Text description provided by the architects. A well-read, well-traveled couple commissioned this house as a counterpoint to their small apartment in a San Francisco high rise. Their house was to hold their books and collection of artifacts from around the world. The program called for “his and hers” offices at opposite ends of the house, encouraging focus but allowing for interaction around the central kitchen. They wanted a place to read and write in the reflective and inspiring coastal setting.
© Joe Fletcher
乔·弗莱彻
位于一片高度裸露的海洋草地上,面临的挑战是提供隐私和遮蔽的户外空间,同时最大限度地提高开放感,并捕捉到南面的景色。有遮蔽的庭院将主要的居住空间与更多私人用途的两层楼的空间隔开。两个简单棚屋的聚集形成了一个焦点,同时阻挡了近邻房屋的海岸风和景色。一个连接器连接在车道上的小门户窗口,与花园的全玻璃曝光形成对比,阻止海岸风,同时让人们欣赏私人海景。
Sited on a highly exposed ocean meadow lot, the challenge was to provide privacy and sheltered outdoor space while maximizing the sense of openness and capturing the southerly views. The sheltered courtyard separates the main living spaces from the two-story volume of more private uses. The massing of the two simple sheds creates a focal point while blocking the coastal wind and views from the house of the immediate neighbor. A connector joins the volumes with small portal windows at the driveway in contrast to the all glass exposure at the garden and blocks the coastal winds while allowing one to enjoy private ocean views.
© Joe Fletcher
乔·弗莱彻
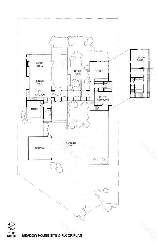
Floor Plan
© Joe Fletcher
乔·弗莱彻
该计划是开放和非正式的,有厨房、餐厅和一个空间的客厅。内部是温暖和平静的,有丰富的窗户框架,可以看到海洋和森林的山脊。室内和室外的连接是通过从前面的走道到中央庭院的连续使用石头来强调的。所有使用的FIR都是在本地采集的。在主要的生活空间里,要有“在草地”,随时观察鸟类和天然植物。
The plan is open and informal with the kitchen, dining room, and living room in one space. The interiors are warm and calm with generous windows framing views of the ocean and the forested ridge. Indoor and outdoor connections are emphasized by the continuous use of stone from the front walkway through the house and out to the central courtyard. All the fir used throughout was locally harvested. Being in the main living space is to be “in the meadow” to observe the birds and native plants close at hand.
Architects Malcolm Davis Architecture
Location Sea Ranch, United States
Category Houses
Architect in Charge Malcolm Davis
Area 2690.0 ft2
Project Year 2006
Manufacturers Loading...
客服
消息
收藏
下载
最近















