查看完整案例


收藏

下载
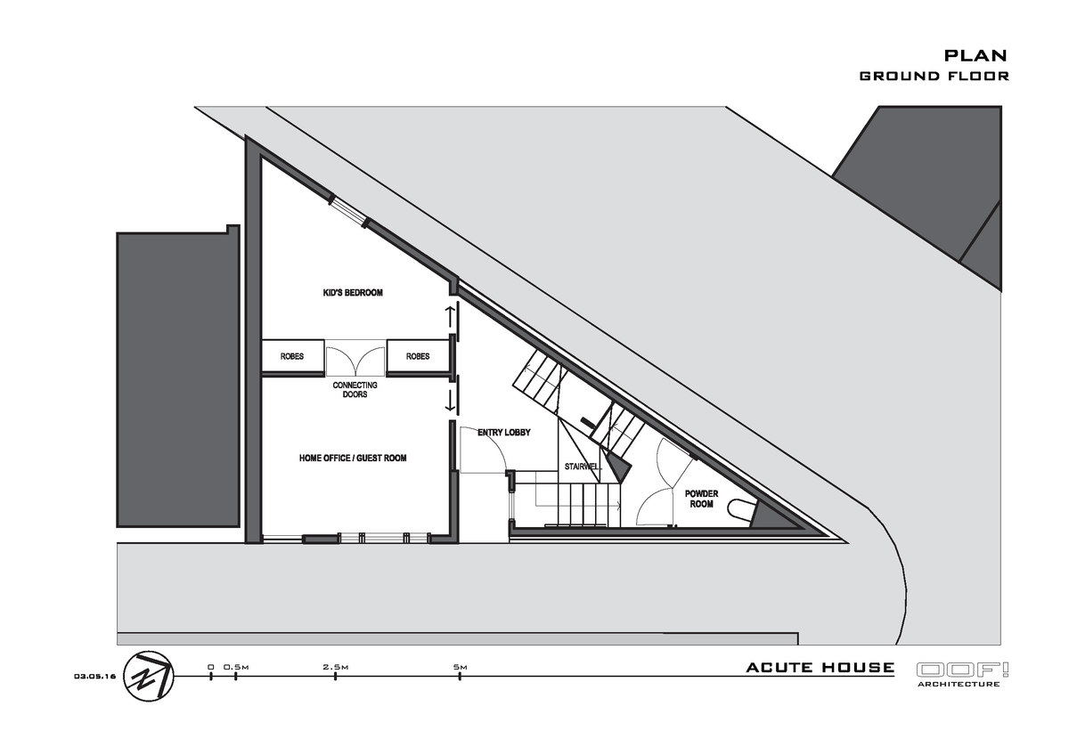
“锐利屋”是将“翻新者的噩梦”转变为一个紧凑的21世纪家庭住宅。一个非常小的,非常三角形的遗址的严重限制和苛刻的遗产环境已经导致了尖尖的新楔形房屋的设计,以利用其问题。
原来的维多利亚时代的风化板农舍非常破旧,现在已经不可能居住了,但是它受到了邻居和它的新主人的喜爱。
我们试图通过尽可能多地使用原始织物来保持它的风化特性,从弯曲的风化板和栅栏板到随机积累的门把手、通风口和街道号码。就像易碎的博物馆文物一样,这些物品被小心翼翼地移走、贴上标签、储存起来,并重新安装在新的坐骑上,这不仅凸显了它们的魅力,而且使房子得以一种新的方式重新生活。
为了利用这样一个不寻常的地点的机会,几何需要调整一个传统家庭住宅的布局和生活方式的期望。需要多个层次来满足家庭住宅的基本空间需求,而这些空间则是最适合家庭住宅的场地几何结构。这些空间分布在分裂的层次上,楼梯井的垂直空间提供了视觉隐私和定义感,而不会在内墙、走廊或门上浪费宝贵的空间。连续循环通过每一层没有死胡同,允许空间保持瘦,但感觉宽敞和不堵塞-视觉或物理。
虚拟园林
虽然场地面积的限制和几何学允许议会建立超过100%的场地,这一优势与平衡的缺点,0%的户外空间。因此,房子内部必须满足家庭的需要,并为他们提供的乐趣,伟大的户外活动。这种完全缺乏花园的现象被楼梯间的人工内部景观所抵消,楼梯间有草坪绿地毯、悬挂植物、中央水族馆、水生植物和鱼类,每个房间都有阳光明媚的景色。全高度滑动门和屏风打开了主要的生活水平,作为一个虚拟的阳台和尖尖的,但令人惊讶的慷慨,阳台提供了游艇在街上的氛围。
遗产-自然语境
由此产生的新楔形房屋被设计成一种不寻常但反应迅速的方法,以处理周围社区的特点,以及场地及其周边环境所带来的应对建筑的挑战和机遇。它承担着维护一个重要但几乎无法挽救的地方地标的挑战,在周围街区的总体类型范围内开展工作,与其住房存量“押韵”,同时在表达和表达上保持坚决的当代。
Firm OOF! architecture
Type Residential › Private House
STATUS Built
YEAR 2016
SIZE 0 sqft - 1000 sqft
BUDGET $500K - 1M
keywordsarchitecture, architecture news, interiors, interior design, portfolio, spec, brands, marketplace, products Acute House
关键词建筑,建筑新闻,室内设计,组合,规格,品牌,市场,产品急性屋
客服
消息
收藏
下载
最近



































































