查看完整案例


收藏

下载
架构师提供的文本描述。珍妮·德克斯建筑公司将林堡山区的一个L形农场改建成一个住宅,里面有工作室、展览厅、假日住宿和一个车库。卡雷农场的真实形态以当代的方式得到了恢复。卡雷是一个农场,里面有一个庭院;在林堡省经常有一种类型。通过水平立面的落叶松木材,从旧农场开始进入一个新的车库和关闭庭院,卡雷形状得到恢复。
Text description provided by the architects. Jeanne Dekkers Architecture redeveloped a existing L-shaped farm in the hilly countryside of Limburg into a residential home with studio, exhibition hall, holiday accommodation and a carport. The authentic shape of the carre-farm is restored in a contemporary way. The carre is a farm which encloses an inner courtyard; a typology often found in the Province of Limburg. By means of a horizontal façade of larch wood, starting from the old farm into a new carport and closing the courtyard, the carre shape is restored.
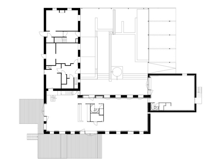
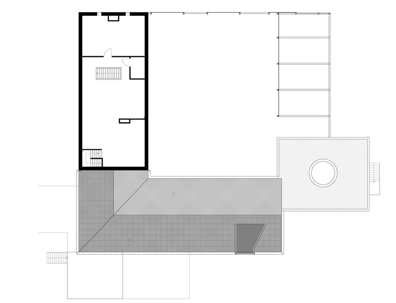
Ground Floor Plan
这个新的心已经成为整个复杂的内在体验的一个重要部分。与当地和天然植被结合的无烟煤混凝土和比利时块石的不对称组成决定了该封闭室外区域的格式。高度差通过水流系统可见,所述水系统在圆形盆中穿过庭院。在复杂的情况下,旧马厩改造成与办公室的灯光和现代生活空间。两个大开口,由易洛科木材制成,框架框架,让光线进入内部。在建筑的中间,放置不锈钢芯,它包含厨房、浴室、卫生间和储存装置。两个圆形的木制楼梯将地面与二楼连接。新的中间地板由具有AOAK地板的大橡树梁组成。旧的特征梁保持在视线中,同时,整个屋顶和所有墙壁都是绝缘的。原来的棚已经转换为一个宽敞的工作室,有一个大圆形天窗,这个空间可以用于展览和会议。
This new heart has become an essential part of the internal experience of the whole complex. A non-symmetrical composition of anthracite concrete and Belgian block stone combined with local and native vegetation determines the format of this enclosed outdoor area. The height difference is visible by means of a water system which flows in through the courtyard ending in a round basin. In the complex, the old horse stable is transformed into a light and modern living space with an office. Two large openings, made of Iroko wood, frame the landscape and let light inside. In the middle of the building a stainless steel core is placed, it contains the kitchen, bathroom, toilet and storage. Two round wooden stairwells connect the ground floor with the second floor. The new intermediate floor consists of large oak beams with an aoak floor. The old characteristic beams remain in sight, at the same time, the whole roof and all walls are insulated. The original shed has been converted into a spacious studio with a large round skylight, this space can be used for exhibitions and meetings.
© Holly Marder
霍莉·马德
这个项目是建筑师Jeanne Dekkers和她的儿子Anton Zoetmulder(建筑师)和女儿Elise Zoetmulder(设计师)之间的合作。在设计上,他们对环境及其风景和建筑历史进行了广泛的研究。因此,现代设计与当地的景观和小城市的环境无缝地结合在一起.此外,建筑的历史形状和使用正宗材料突出了该地区的传统品质。
This project is a collaboration between architect Jeanne Dekkers and her son Anton Zoetmulder (architect) and daughter Elise Zoetmulder (designer). For the design they employed a wide research of the environment and its scenic and architectural history. As a result, the modern design seamlessly joins with the local landscape and small-urban context. In addition, the traditional qualities of the area are highlighted by the historical shape of the building and the use of authentic materials.
© Holly Marder
霍莉·马德
Axonometric
© Holly Marder
霍莉·马德
在整个项目中,我们发现了与本地工匠的协作,我们使用了本地可用的材料和技术。采用高质量的可持续材料,按照被动式房屋的可持续原则建造房屋。此外,还以不同的方式重复使用材料,中间层的旧钢底座作为新梯田的建造,屋顶瓷砖用于景观中的艺术展馆,拆除的砖块用作新的景观大门。
Product Description. Throughout the entire project we found collaboration with local artisans, and we used locally available materials and techniques. Sustainable materials of high quality were used and the house was built according to the sustainable principles of a passive house. Also materials were reused in different ways; the old steel ledgers of the intermediate floor are reused as construction of the new terrace, the roof tiles are used for an artistic pavilion in the landscape and the removed bricks are used for a new gate for the landscape.
© Holly Marder
霍莉·马德
Architects Jeanne Dekkers Architectuur
Location Banholt, The Netherlands
Category Renovation
Architects in Charge Jeanne Dekkers, Anton Zoetmulder, Elise Zoetmulder
Area 800.0 m2
Project Year 2016
Photographs Holly Marder
客服
消息
收藏
下载
最近
































