查看完整案例


收藏

下载
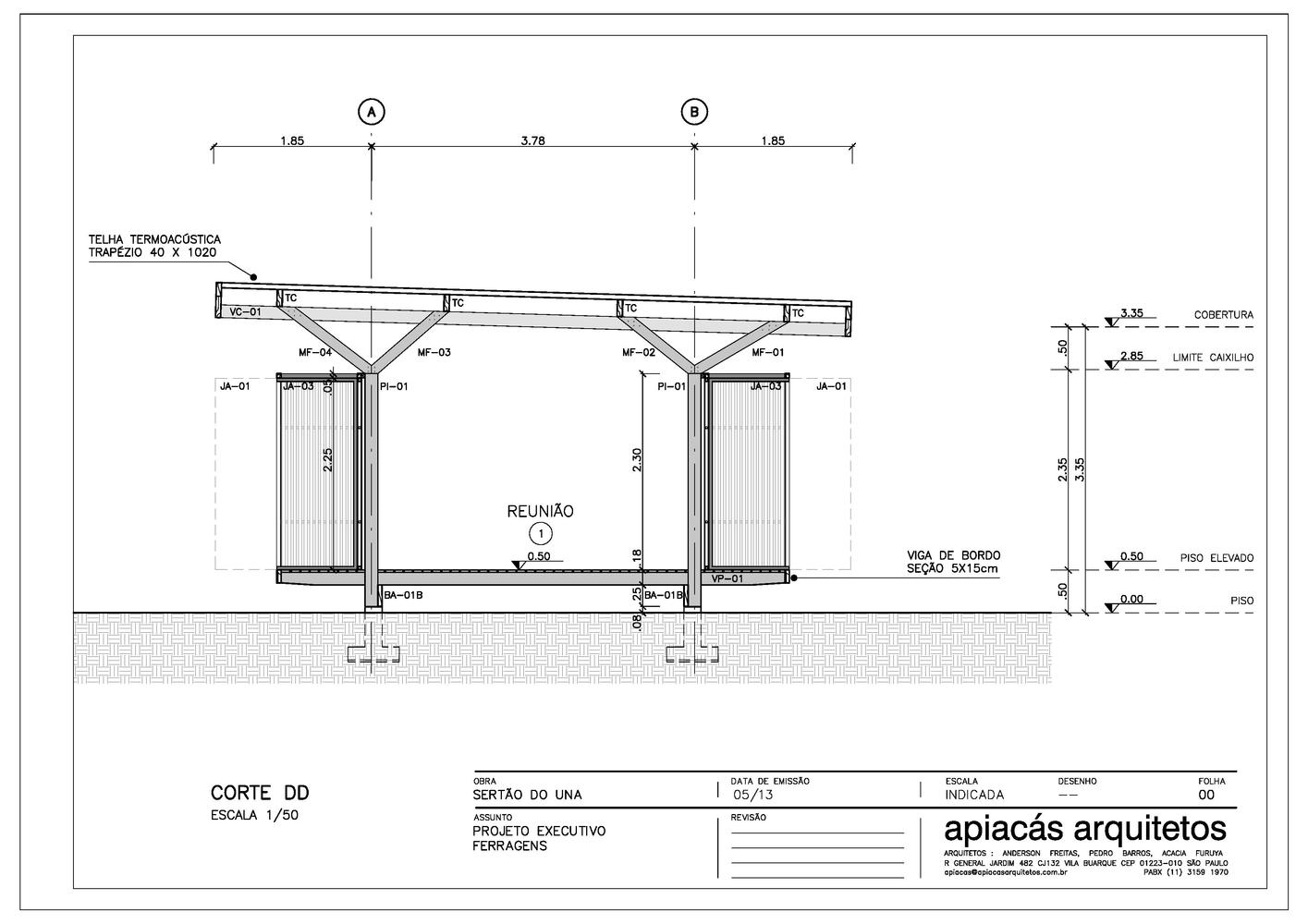
建筑师提供的文字说明。位于巴拉杜纳的住宅公寓(位于圣保罗市附近的一个海滩),由巴西建筑办公室APIACHINSArquitos签署的项目PavilionUNA具有作为前提的可行性,考虑到材料的选择,主要侧重于可组织装配系统的建设性细节。因此,该结构由标准化和模块化的元件组成:基础是在混凝土中执行的,其次是库鲁木材中的支柱和梁,战略性地放置在中心轴线上,以便为构成立面的枢轴门提供更大的自由度。
Text description provided by the architects. Located in a residential condominium in Barra do Una (a beach located near of São Paulo city), the project Pavilion Una signed by the brazilian architecture office Apiacás Arquitetos had the feasibility as a premise, considering the choice of materials and mainly focusing on the constructive details, capable of organizing the assembly system. Therefore, the structure is made up of standardized and modular elements: the foundation was executed in concrete, followed by pillars and beams in Cumaru wood, strategically placed in central axes in order to give greater freedom to the pivotal doors that make up the facade.
这些封闭由间接式木板条组成,最终作为立式砖块,发挥着保护建筑和揭示大西洋森林的双重功能。地面悬挂在离地面50厘米处,以避免因靠近现有河流而发生任何水浸。所有的连接都是用金属零件制造的,以便于装配,并保证更好的结构性能。这样,木配件的执行就变得更简单、更快了。屋顶,在金属瓷砖,有一个连续的关闭,周围的周围,有利于空气的对流循环,除了平衡光线过滤关闭面板。
These closures consist of interspersed wooden slats that end up acting as vertical bricks, exerting a double function of protecting the construction and revealing the Atlantic Forest where it is inserted. The ground is suspended 50 cm from the ground in order to avoid any flooding due to its proximity to an existing stream. All the connections were made in metal parts in order to facilitate the assembly and guarantee better structural performance for the meeting of pieces. In this way, the wooden fittings consequently become simpler and faster in their execution. The roof, in metallic tiles, has a continuous shutdown, all around the perimeter, favoring the circulation of the air by convection, in addition to balancing the light filtered by the closing panels.
© Leonardo Finotti
莱昂纳多·芬诺蒂
© Leonardo Finotti
莱昂纳多·芬诺蒂
这套家具也根据项目的最初前提被理想化:由同一种木材制成,它们遵循为这项工作设计的构造逻辑的严谨和简单。重申我们的前提,即无论物体的规模如何,都要观察构造运动的一致性。
The set of furniture was also idealized according to the initial premises of the project: made of the same kind of wood, they follow the rigor and simplicity of the constructive logic designed for the work. Reaffirming our premise of looking at a tectonic coherence no matter the scale of the object.
© Leonardo Finotti
莱昂纳多·芬诺蒂
© Leonardo Finotti
莱昂纳多·芬诺蒂
客服
消息
收藏
下载
最近





























