查看完整案例


收藏

下载
© Tim Crocker
提姆·克罗克
架构师提供的文本描述。这个项目是对一个年轻家庭在一个保护区内的一所房子的改造和扩建。Brackenbury 屋是 1879 年建造的五座 Lillian 别墅露台的一部分。“L”形双正面别墅是砖和灰泥面,两层高,前面的花园形成一个景观正面,从街道回来。
Introduction The project is a remodelling and extension to a house in a conservation area for a young family. The Brackenbury House forms part of a terrace of five Lillian Villas built in 1879. The “L” shaped double-fronted villas are brick and stucco faced, two-storey high, with front gardens forming a landscaped frontage, set back from the street. © Tim Crocker
提姆·克罗克
客户出生于荷兰,尼尔斯·斯温克尔为环球影业工作,对科幻电影的美学充满热情。埃丽卡·斯温克尔 (EricaSwinkels,瑞典人/英国人) 要求提供一种天然泥土材料的调色板,并热切希望我们保留这栋建筑的现有结构,并在我们重新配置房屋时重新循环,以使其作为一个家庭更好地运作。
Client’s Brief
Dutch born, Niels Swinkels works for Universal Pictures and is passionate about the aesthetic of sci-fi films. Erica Swinkels [Swedish / British], asked for a palette of natural earthy materials and was keen for us to retain as much of the existing fabric of the building and re-cycle it as we reconfigured the house to make it work better for them as a family.
© Tim Crocker
提姆·克罗克
该项目的雄心很大,在实现开放的计划,视觉连接的空间,以允许不同房间之间更大的沟通感。客户希望通过对花园的框架视图,让房子感觉到与外部的联系,并让尽可能多的自然光线进入。
The ambitions for the project were high in terms of achieving open plan, visually connected spaces to allow for a greater sense of communication between the different rooms. The client wanted to make the house feel connected to the outside through framed views to the garden and to allow as much natural light in as possible.
© Tim Crocker
提姆·克罗克
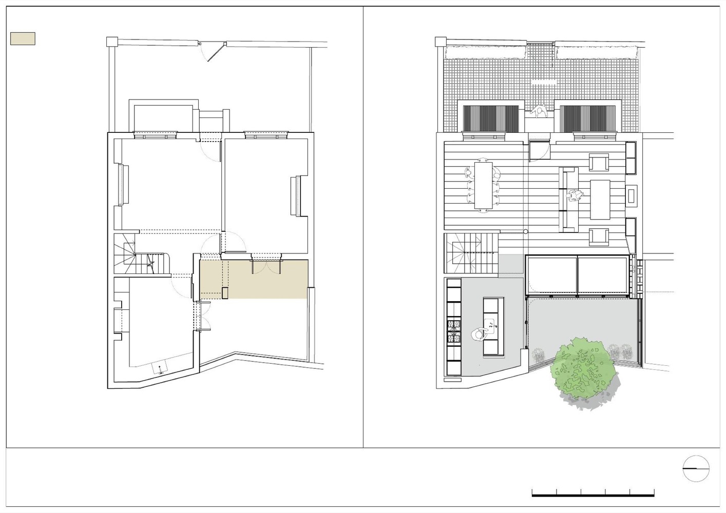
材料和空间策略我们的设计增加了一个新的地下室和后面的延伸,提供一个扩大的生活和厨房空间,天空照亮阳光充足的浴室,一个家庭影院,游戏室和客房。我们试图创造一种创新的设计解决方案-- 以当代的方式重新思考地下室的类型,以确保它既充满了光线,又可以多功能的方式使用-- 作为他们年幼儿子的游戏室或先进的电影院观景室。
Materials and Spatial Strategy
Our design adds a new basement and rear extension, providing an expanded living and kitchen space, sky lit sun-filled bathrooms, a home cinema, playroom and guest bedroom.
We sought to create an innovative design solution – rethinking the basement typology in a contemporary way to ensure it was both a light-filled but could also be used in a multi-functional way – as a playroom for their young son or a sophisticated cinema viewing room.
© Agnese Sanvito
(C)Agnese Sanvito
概念上的方法是创造一个平静的大气内部,使用精心挑选的统一材料调色板,将现代设计融入保护区内的历史环境。由于可重复使用的历史材料与现代工业元素之间的内在联系,材料可以很好地结合在一起。
The conceptual approach was to create a calm atmospheric interior using carefully selected unified palette of materials stitching the modern design into its historic context within the conservation area. Materials work well together due to the inherent relationships between re-used historic materials juxtaposed with modern industrial elements.
新的地下室用大天窗照亮了上面的楼层。所有的楼层都是开放的,允许维多利亚时代的现有房间让位给底层的开放式室内和楼上的高大阁楼。厨房和客厅向西南方向的露台开放,在房子和花园之间建立了牢固的联系。
The new basement area is lit by large skylights cut into the floors above. All levels are opened out to allow the existing rooms of the Victorian house to give way to an open plan interior on the ground floor and tall loft like spaces upstairs. The kitchen and living rooms open out to a south-west facing patio, creating a strong connection between house and garden.
© Tim Crocker
提姆·克罗克
上面楼层的所有天花板都被拆除了,这样高大的阁楼式天花板空间就可以暴露在巨大的天窗下,自然的光线会让家里充满阳光。浴室顶上点亮着明亮的天窗,把洗浴空间和上面的天空连接起来。
All the ceilings in the upper floors were removed, allowing the tall loft-like ceiling spaces to be exposed with large skylights flooding the home with natural light. The bathrooms are top lit by generous skylights linking bathing spaces to the sky above. © Tim Crocker
提姆·克罗克
产品描述。
Product Description.
虽然人们并不经常将房屋翻新与可持续设计联系在一起;我们的实践努力将可持续的原则和产品嵌入到项目的早期阶段的设计中。
Although one does not often associate home refurbishments with sustainable design; our practice worked hard to embed sustainable principles and products into the design at the early stages in the project.
我们重新使用了尽可能多的现有房屋,在拆除阶段仔细地储存了房屋的现有砖,以便重新用于建造新的扩建。从现有房屋中回收的 Hammersmith 库存砖被用于创建将旧房屋的记忆链接到新设计的新的延伸。生活区的特征砖墙通过天窗可视地连接在地下室,向下延伸至地下室。新的后 FAOMade 是由再生砖建造的,并与现有的侧面墙连接,有一个感官弯曲的砖细节。石灰砂浆的使用确保了砖的未来再使用仍然是可能的。
We re-used as much of the existing fabric of the house as possible - the existing bricks of the house were carefully stored during the demolition stage for re-use to construct the new extension. The recycled Hammersmith stock bricks from the existing house are used to create the new extension linking the memory of the old house to the new design. A feature brick wall in the living area extends down to the basement through the skylight visually connecting the two levels. The new rear façade is constructed out of recycled brick and is tied to the existing flank wall with a sensuous curved brick detail. The use of lime mortar ensures future re-use of the brick is still possible.
© Tim Crocker
提姆·克罗克
升级的隔热和加热系统使我们能够把更大面积的玻璃放在后面的立面上。我们将玻璃元件、玻璃门和天窗放置在南部/东部,以最大限度地利用太阳能,减少白天所需的机械加热量,并减少对人工照明的需求。
The upgraded insulation and heating systems to the property allowed us to include larger areas of glass to the rear facade. We placed the glazing elements, glass doors and skylights on the south / east to maximise the potential solar gain and reduce the amount of mechanical heating needed during the day as well as cutting down on the need for artificial lighting.
© Agnese Sanvito
(C)Agnese Sanvito
所有外墙都与坚固的气密性细节进行了严格的绝缘,以最大限度地减少建筑物内部的热量损失。所有的玻璃都升级为高质量的热碎双釉氩气体填充装置。
All the external walls are heavily insulated with robust airtightness details to minimise heat loss throughout the fabric of the building. All glazing was upgraded to high quality thermally broken double glazed argon gas filled units.
© Tim Crocker
提姆·克罗克
一个步入式玻璃地板使人们可以从地面到地下室的娱乐室,并允许光线通过高折叠玻璃门进入地下室。玻璃门折叠起来,把厨房、庭院和客厅完全连接起来。在通往所有楼梯的平台上都会看到天空的景色。浴室里有宽敞的天窗,让人们能在星空下洗澡。大玻璃单元意味着以前是黑暗的房子,而 Pokey 现在是一个充满光的空间。
A walk-on glass floor allows one to see from the ground floor to the basement playroom as well as allowing light to enter the basement through the tall foldaway glass doors. The glass doors fold away completely linking the kitchen, courtyard and living room. Views to the sky are created at the landings to all the staircases. The bathrooms are top lit by generous skylights allowing one to bath under the stars. The large glazed units meant that a house that was previously dark and pokey was now a light filled space.
© Tim Crocker
提姆·克罗克
由于其良好的热质量和保温性能,我们在抛光混凝土地板内埋设了地板下采暖管。我们还在地下室使用了一个空气交换系统,允许不断地从外面吸入新鲜空气,并在室外空气耗尽之前将所有加热的空气循环回屋。
We embedded underfloor heating pipes within the polished concrete floor due to its good thermal mass and heat retention qualities. We also used an air exchange system in the basement that allows for a constant feed of fresh air from the outside and recycled all the heated air back into the house before it is exhausted outside.
Architects Neil Dusheiko Architects
Location London, United Kingdom
Category RefurbishmentArea 180.0 m2Project Year 2015
Photographs Tim Crocker , Agnese Sanvito
客服
消息
收藏
下载
最近

























