查看完整案例


收藏

下载
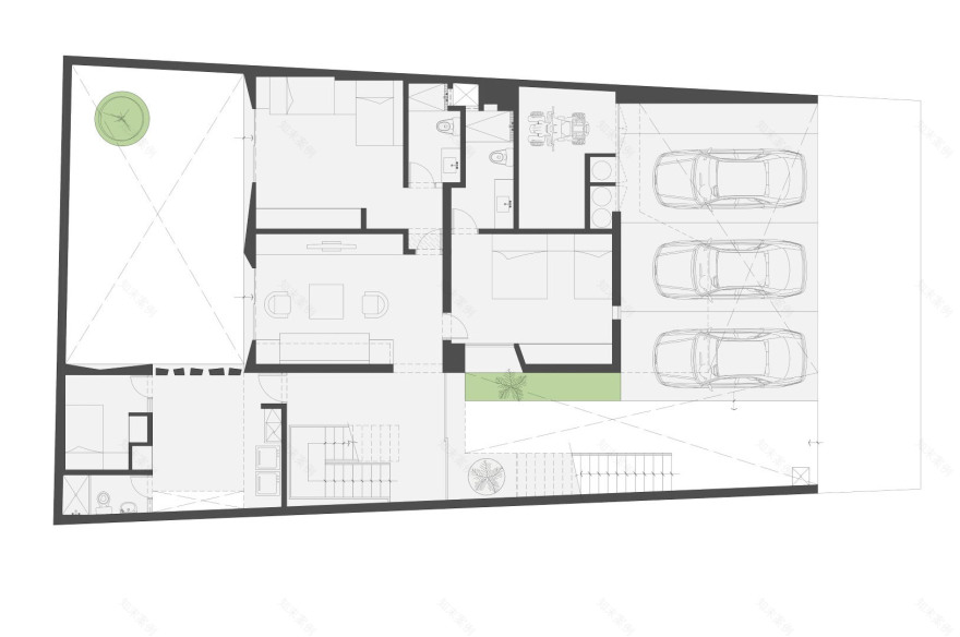
El encargo fue disar una casa de tres niveles,conasáreas sociales en elúltimo nivel partener asíla mejor vista ahia la playa y los solorios en los dos primeros niveles。
La Casa Debía tener 5宿舍,Avientes de estar y una conpcina y concoina abierta。
Firm Vértice Arquitectos
Type Residential › Private House
STATUS Built
YEAR 2016
SIZE 5000 sqft - 10,000 sqft
Photos SEO-arquitectos
keywords:architecture, architecture news, interiors, interior design, portfolio, spec, brands, marketplace, products Lomas B15 Beach House
关键词:建筑,建筑新闻,室内设计,组合,规格,品牌,市场,产品洛马斯B15海滩屋
客服
消息
收藏
下载
最近





















