查看完整案例


收藏

下载
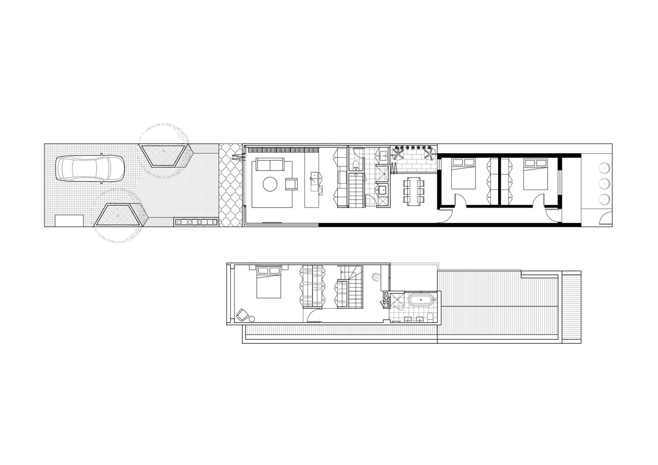
采石场房子设置在墨尔本,澳大利亚的不伦瑞克东部和维多利亚式的露台房子最近被翻新和扩展了一个新的增加由钩转建筑。该设计参照周边地区砖和青石采石的历史,由两个堆叠的盒子组成,其中底层为砖箱,上层为青石箱。房子的原始部分是用砖块建造的,所以同样的材料也被搬到底层,以保持连续性。
当房子的正面保留着19世纪80年代维多利亚时代的正面时,围绕着第二层建筑的是天然的蓝宝石结构。为了达到这个效果,折叠式锌板的安装看起来就像侵蚀过的柱状玄武岩,留下了一个拱形的开口。
拱形的几何开口勾勒出了新主卧室的窗户,它在地面地板上突出,有助于在较温暖的月内对其内部进行遮阳。
仔细考虑了内部布局,以确保每个房间都能得到最大的日光。
本托尔的照片。
分享这篇文章分享Tweet Pin提交
客服
消息
收藏
下载
最近














