查看完整案例


收藏

下载
建筑师:罗伯特·马施克建筑师位置:美国俄亥俄州克利夫兰年:2016年面积:5.475平方英尺/509平方米
这座小房子坐落在俄亥俄州历史悠久的小意大利社区克利夫兰,以其丰富的文化和手工背景而闻名。这对夫妻客户都是工业设计师,他们委托这个项目为他们的工作创建一个工作室,并为他们建立一个家庭。
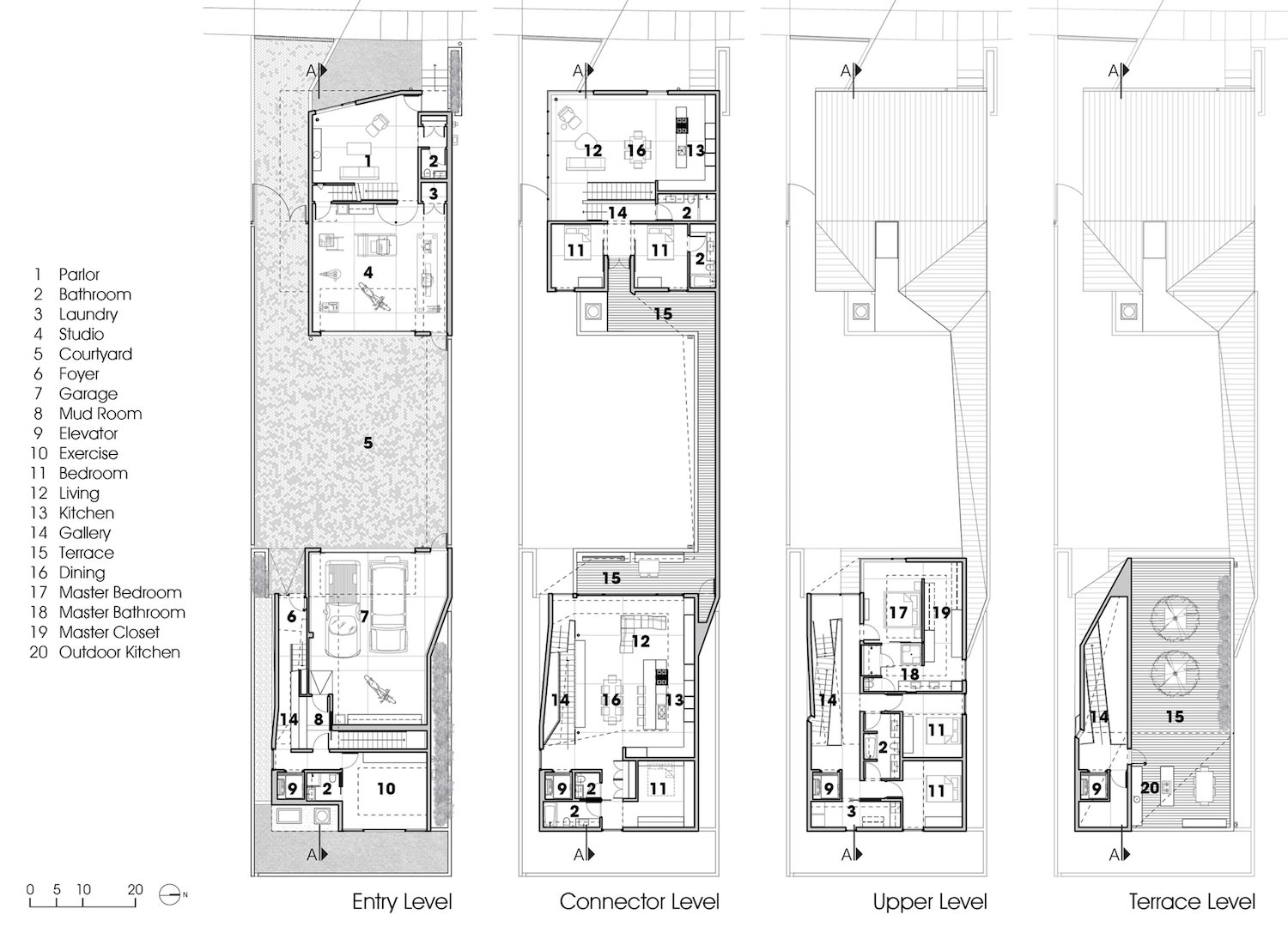
该住宅位于一条密集的城市街道上,远离田园诗般的邻里中心。该遗址狭窄,北有三座“枪炮”住宅,东面有一堵挡土墙,南面有一栋多层共管公寓。一座曾经开放的钢制仓库,现在被用作有盖的地面停车结构,位于西面,阻碍了现场的视野。这些结构的实施有助于指导设计方法。
该体系结构是由嵌入在站点和程序中的内在矛盾的协调而产生的。客户希望有一个城市的存在,同时也创造私人的外部空间,与世隔绝的周围环境。这对夫妇要求在未来能够灵活地将房产“分割”成独立住宅。作为对这些限制的回应,房子的聚集被解析成两个不同的卷,被推到场地的极端边界,由一座有盖的桥连接起来。
这个组织从两卷书之间的剩余空间中创建了一个公共庭院。一个不朽的楼梯连接着各种编程元素。楼梯间相互重叠和分离,在各个层次之间形成了视觉联系。楼梯的运动在外围护的金属表面上是明显的,这是一种折叠的逻辑,把各个部分组合成一个有凝聚力的整体-材料调色板是简单而优雅的。外立面是黑色灰泥混凝土配合一个颜色匹配的金属折叠墙和屋顶。
有图案的墙板提供从街道和邻近的财产通过他们作为入口门和周边围栏的隐私。内部由白色墙的硬钢筋混凝土地板,地板到天花板的书籍匹配和排列的法定大理石板在浴室,和丰富的彩色竹子,用于建筑千年和楼梯。
此外,巨大的楼梯井是用白色穿孔钢板遮住的。这种纹理策略是通过蚀刻在选定的玻璃单元上实现的。射孔模式是通过一系列的光通过竹林的照片操作发展起来的。一种由磨坊和楼梯的重要性所激发的换位。“
谢谢你阅读这篇文章!
keywords:Cleveland Ohio Robert Maschke Architects USA
关键词:克利夫兰俄亥俄罗伯特马施克建筑师美国
客服
消息
收藏
下载
最近



































