查看完整案例


收藏

下载
31/44建筑师已经完成了温斯劳尔大厦,这是一个新的宽敞的自建家庭住宅在阿姆斯特丹市中心的一个受限制的地点。
取代了一个破旧的20世纪初工人的小屋,温斯劳尔形成了一个填充的房子,在一个意想不到的不规则街道,在传统的同质街道景观更典型的阿姆斯特丹。
这条街道的这种折衷的品质源于它的五彩缤纷的过去,当时该地区正在被用作城市的建筑造船厂。
31/44新房的设计是为了庆祝这一质量,同时也参照了在市中心被广泛看到的联排别墅类型,这反映了随着阿姆斯特丹这个地区采取了历史中心的一些形式,这个街区变得更加“高档”。这一做法经过与地方当局的广泛谈判,以确保按照不断变化的邻里关系制定适当的设计解决办法。
街道的立面特色是砖墙立面和倾斜的山墙轮廓,这部分是由议会的要求。结构混凝土带和大窗开口参考当地车间的正面细节。相反,后方是包覆在简单的功利主义片的赤道板。
在北面的街道正面的砖瓦铺设在一个佛兰芒键,使表面尽可能纹理。正面只有在太阳倾斜的角度使表面生机勃勃的一天的开始和结束时才能接收太阳。在房子前面的长凳被认为是一种共享的舒适的街道,那里有一个活跃的社交社区,经常在夏天的晚上接管道路。
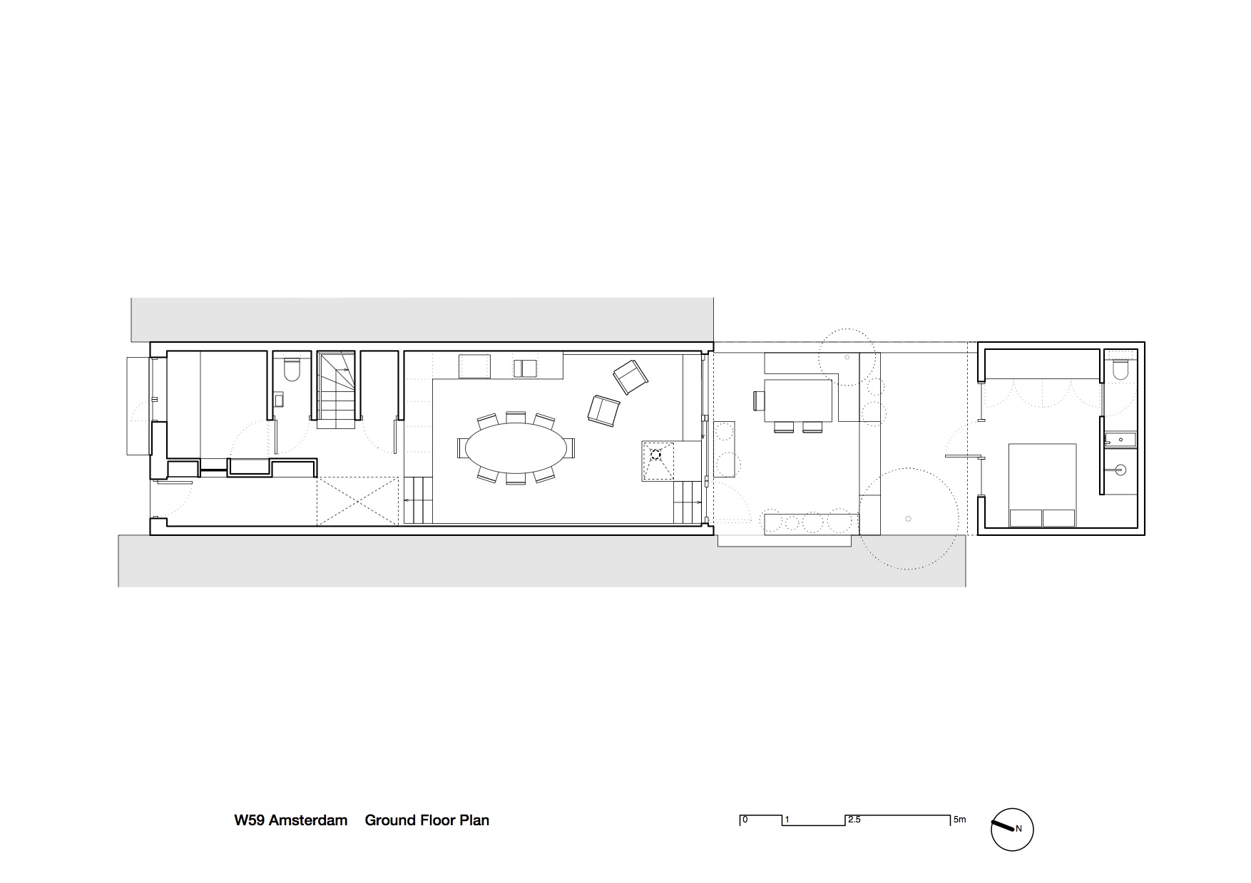
在内部,145平方米的房子最大限度地利用了所有可用的空间,在入口以外的房间跨越整个地块的宽度。一个空隙,上面有一个巨大的屋顶灯,从屋顶一直延伸到底层,把自然光带到各个层次的规划中心。
一层低一层的一层楼创造了一个宽敞的厨房/生活。
房间有全宽的玻璃面板,打开后花园。生活空间
一楼和一楼都有暴露的木材结构,以增加深度,性格和材料温暖的地区,家庭度过了大部分时间。
定制的单位,由黑色和灰色中密度纤维板和桦木面胶合板的特点,整个房子。壁炉周围有一张内置的长凳,让你可以坐在靠近壁炉的地方。
由预制混凝土面板建造,壁炉的特点是一个悬空的钢烟道,留下大胆暴露在后面的高度-一个安静的参考轻工业遗产的地区。
Firm 31/44 Architects
Type Residential › Private House
STATUS Built
YEAR 2016
SIZE 1000 sqft - 3000 sqft
BUDGET Undisclosed
Photos Kasia Gatkowska Photography
keywordsarchitecture, architecture news, interiors, interior design, portfolio, spec, brands, marketplace, products Wenslauer House
关键词-建筑,建筑新闻,室内设计,组合,规格,品牌,市场,产品温斯劳尔豪斯
客服
消息
收藏
下载
最近























