查看完整案例


收藏

下载
© Ronald Tilleman
c.RonaldTilleman
架构师提供的文本描述。如何使高速公路路段对当地居民具有吸引力和功能性?这就是MoederscheimMoonen建筑师将要为施基丹市工作的问题。他们设计了一个独特的解决方案,将A4高速公路延伸到荷兰城市Delft和Schiedam之间。其结果是美丽的绿色公园和一个新的体育场所,这肯定会吸引想象力。这些运动场位于高速公路上方约六米处,周围是欧洲最大的画布之一。与蕾丝围栏,建筑师创造了不少于8500平方米的彩色围栏,其中包括超过160万生活样的‘像素’。
Text description provided by the architects. How can you make a motorway section attractive and functional for the local residents? This is the question MoederscheimMoonen Architects set to work on for the Municipality of Schiedam. They devised a unique solution for a stretch of the A4 motorway between the Dutch cities of Delft and Schiedam. The result is wonderful green park and a new sports location that will definitely appeal to the imagination. Located some six metres above the motorway, the sports fields are enclosed by one of the largest canvases in Europe. Together with Lace Fence, the architects created no less than 8,500 m² of colorful fencing that consists of over 1.6 million life-like ‘pixels’.
© Ronald Tilleman
c.RonaldTilleman
Unique solution
最初,隧道和高速公路在相邻的两个居民区之间形成了一道屏障。但新的设计现在却适得其反。通过实现隧道顶部的公园和运动场,它确实在两个居民区之间建立了新的联系。他们为居住在这个地区的每一个人提供了一个环境,无论是年轻的还是年老的,都可以在这里锻炼和放松。
Initially, the tunnel and the motorway formed a barrier between the two adjacent residential areas. But the new design has now achieved the opposite. By realizing the park and sports fields on top of the tunnel itself, it has literally created new connections between the two residential areas. They offer an environment for everyone living in the area – young and old – to exercise and relax in.
Render Section
渲染科
在高速公路上运动
Exercising above the motorway
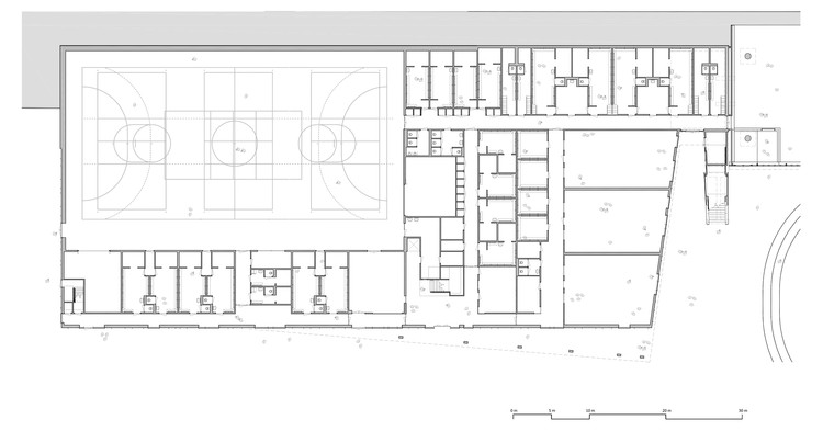
这项任务的复杂和多学科性质反映在隧道顶部和周围空间的多重使用上。该设计的特点是在隧道两侧的混凝土天篷结构-创造了一个足够大的表面积,以实现运动场在隧道的屋顶部分。在这些遮阳篷下面,人们可以找到停车场和室内运动、棒球和板球设施的空间。
The complex and multidisciplinary nature of this assignment is reflected in the multiple use of space on top of and around the tunnel. The design features concrete canopy structures on both sides of the tunnel – creating a large enough surface area to realize sports fields on the roof of the tunnel section. Below these awnings, one finds space for car parks and an indoor athletics, baseball and cricket facility.
© Ronald Tilleman
c.RonaldTilleman
© Ronald Tilleman
c.RonaldTilleman
主楼位于公园的中心,在高架运动场之间。因此,它与周围的体育活动有着直接的关系。大楼内设有运动场、各种室内和室外运动更衣室、舞厅和芭蕾舞室,以及大型餐饮设施,设有露台座位。露台呈高原状。在建筑物的不同楼层之间,形成了不同街道层之间的过渡地带。该建筑的总体设计特点是突出的表现特点,新鲜的绿色屋顶和露台檐,强调复杂的分层性质。
The main building is situated in the heart of the park, between the elevated sports fields. As such, it has a direct relationship with the surrounding athletic activity. The building houses a sports hall, changing rooms for various indoor and outdoor sports, rooms for dance and ballet and a large catering establishment with terrace seating. The terrace takes the shape of a plateau. ‘Hovering’ between the building’s different levels, it forms a transitional zone between the different street levels. The building’s overall design is characterized by the prominent expressive qualities of the fresh green roof and terrace awnings that emphasize the complex’s layered nature.
© Ronald Tilleman
c.RonaldTilleman
Ground Floor Plan
© Ronald Tilleman
c.RonaldTilleman
欧洲最大的画布
Largest canvas in Europe
这些字段被一个屏风所包围,它不仅保证了地点的安全,而且减轻了风的负面影响。由于它的设计,建筑师与专业公司蕾丝篱笆合作,以其创新的建筑机织面料而闻名于世。他们共同开发了一种由彩色像素组成的新产品,名为Dedots。这些像素不仅仅是一个实用的解决方案:它们为环境提供了自己的身份,在1.2公里的屏幕上,每平方米的屏幕都是按照独特的设计实现的。这就产生了一种实用的艺术作品,它呈现出一种令人兴奋的透明性、透气性和想象力的结合。它融合了这个项目所涉及的一切:自然、运动、联系和能量。
The fields are enclosed by a screen that not only guarantees safety at the location but also mitigates the negative effects of the wind. For its design, the architects teamed up with the specialist firm Lace Fence, known for its innovative architectural woven fabrics. They jointly developed a new product consisting of colorful ‘pixels’, named Dedots. These pixels are far more than just a pragmatic solution: they lend the environment its own identity, with every square meter in the 1.2-km screen realized according to a unique design. This has resulted in a functional work of art that presents an exciting combination of transparency, permeability to air and imagination. It merges everything that the project is about: nature, sports, connections and energy.
Courtesy of DeDots
德多茨
Architects MoederscheimMoonen Architects
Location Zoomweg, Schiedam, The Netherlands
Category Sports Architecture
Architects in Charge Erik Moederscheim, Jim de Koning
Area 16100.0 m2
Project Year 2016
Manufacturers Loading...
客服
消息
收藏
下载
最近
























