查看完整案例

收藏

下载
© Walter Mair
(WalterMair)
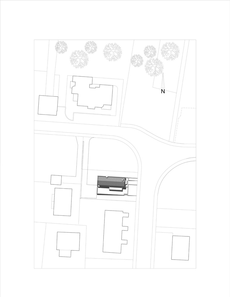
架构师提供的文本描述。在凸起的基础上,矗立着一个细长的混凝土结构;有一个浅倾斜的屋顶,建筑物正好落在倾斜的地形中。该项目位于瓦杜兹城外,位于一个混合用途的住宅和商业区,旨在借鉴古典建筑的元素,同时保持一种乡土风格。
Text description provided by the architects. Over a protruding base rises a slender and elongated concrete structure; with a shallow pitched roof, the building falls precisely into the sloping terrain. Located outside the city of Vaduz, in a mixed-use-residential and commercial quarter, the project is designed to reference elements of classical architecture as well as maintaining a vernacular form.
© Walter Mair
(WalterMair)
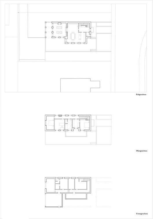
Floor Plan
© Walter Mair
(WalterMair)
这些模棱两可的身份是通过在现场浇铸混凝土形成的柱的可塑性和复杂性来象征的。这种建筑方法是建筑身份的一个深思熟虑和必不可少的部分,它给人一种被塑造在工地上的假象。外露混凝土正面的显著外观允许模板的残余出现。(鼓掌)
These ambivalent identities are symbolized through the malleable intricacies of the columns formed by using Cast-in-place concrete. This construction method is a deliberate and essential part of the building's identity, and it gives an illusion of being molded onto the site. The distinguished look of the exposed concrete facades allows for the remnants of the formwork to appear.
© Walter Mair
(WalterMair)
Architects BBK Architekten
Location Vaduz, Liechtenstein
Category Houses
Architect in Charge Nic Wohlwend, Johannes Brunner, Frank Brunhart
Area 233.0 m2
Project Year 2006
Manufacturers Loading...
客服
消息
收藏
下载
最近
















