查看完整案例


收藏

下载

翻译
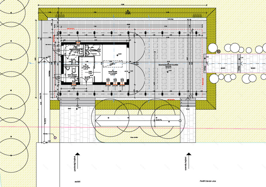
The mayor of the village Vécsei László invited usin 2011. to remodelling the funeral home of Csákberény. The planning started it together, a fitting face of the village, low-key remembrance site on the existing funeral home wanted to upgrade. The difficulties, however, that the then building the verge community site of two churches. In order to commence the reconstruction of the plots had to be merged, the funeral home will give the current management of the local government law. This multi-method resulted in a stay of proceedings. In the summer of 2014. born a valid license. The new funeral home became a symbol of the two religious belonging together. The work involving local craftsmen has been achieved.
Architects: Tímea Tóth and Marton Nyiran Structures Designer: George Szilágyi Client: Municipality of Csákberány
客服
消息
收藏
下载
最近


















