查看完整案例


收藏

下载
© Toshiyuki Yano
c.Yano Toshiyuki Yano
架构师提供的文本描述。这位客户要求在郊区的一个地点为这对夫妇和他们的两个孩子建一栋大楼,为他们提供一个家庭办公的空间。
Text description provided by the architects. The client requested a building for the married couple and their two children to live in, with a space for home office, at a site located in the suburb.
© Toshiyuki Yano
c.Yano Toshiyuki Yano
在邻近的物业中有一个大型设施的计划;在客户地段的南侧有一条交通繁忙的主干道。
There is a plan for a large-scale facility in the adjacent property; and an arterial road with high traffic runs on the south side of the client lot.
© Toshiyuki Yano
c.Yano Toshiyuki Yano
在这种情况下,考虑采用空间结构来确保照明和通风,同时确保整个未来的隐私。
Under such conditions, a spatial structure was considered to secure lighting and ventilation while assuring privacy throughout the future.
主干道上的视线和噪音被堆砌在路边的土堤堵住了,留下了多余的土壤。
Line of sight and noise from the arterial road is blocked by soil banking built on the road side with surplus soil.
© Toshiyuki Yano
c.Yano Toshiyuki Yano
从南侧的日光进入二楼的每个房间,将它们从屋顶表面投射出去,提供极好的照明和通风方案,同时保护隐私。
Daylight from the south side is taken into each room on the second floor by projecting them out from the roof surface, providing excellent lighting and ventilation scheme while securing privacy.
© Toshiyuki Yano
c.Yano Toshiyuki Yano
在该建筑内部空间的中心部分,提供了一种在跳层结构中的生活用餐空间。
A living-dining space in a skip-floor configuration is provided at the central part of the interior space of this building.
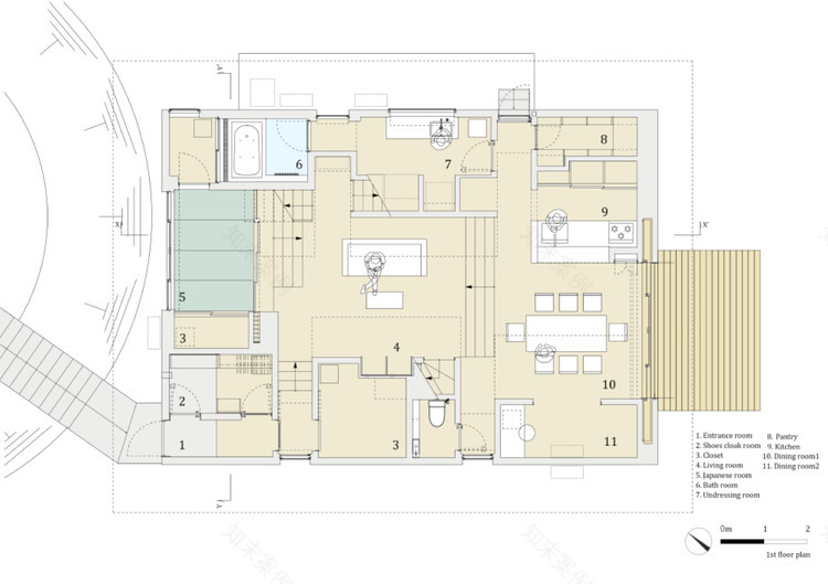
1st Floor Plan
一楼图则
这个空间连接到一个卧室,儿童房间,水部分,和一个自习室。
This space connects to a bedroom, children’s rooms, water sections, and a study room.
© Toshiyuki Yano
c.Yano Toshiyuki Yano
Architects FujiwaraMuro Architects
Location Japan
Category Houses
Architect in Charge Shintaro Fujiwara, Yoshio Muro
Area 111.92 m2
Project Year 2014
Photographs Toshiyuki Yano
客服
消息
收藏
下载
最近


























