查看完整案例


收藏

下载
© Kosuke Arakawa
小川幸介(Kosuke Arakawa)
架构师提供的文本描述。这是一栋两层高的木屋,位于京都Ukyo地区防火区的住宅区内。这些居民都是20多岁的已婚夫妇和他们的孩子。该网站是一个阳光明媚,空气流通的三角地段。
Text description provided by the architects. It is a wooden two-story house located in a residential area of fire prevention zone of Ukyo area in Kyoto city. The inhabitants are a married couple in their late 20s and their children. The site is a sunny airy three-way corner lot.
© Kosuke Arakawa
小川幸介(Kosuke Arakawa)
由于防火区域的要求,与采用工业装饰的外观完全不同;室内温暖,与东侧的连接广泛,顾客期望在那里扩展花园。
Totally different from the exterior that is made with an industrial finish due to the requirements of fire prevention area; the interior is warm and has opened a wide connection to the east side where the customer expects their future garden extension.
© Kosuke Arakawa
小川幸介(Kosuke Arakawa)
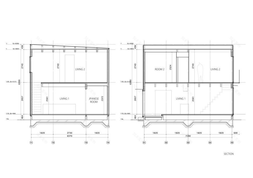
作为一对工作夫妻,没有相应的休息时间,为了丰富日常家庭生活,人们不仅在一楼放了一间客厅,还在二楼放了一间客厅作为私人空间。
Being a working couple with no matching rest time, enriching everyday family life was sought by placing not just a living room on the first floor, but another living room in the second floor as a private space.
© Kosuke Arakawa
小川幸介(Kosuke Arakawa)
设计的前提是,如果家庭开始成长,这一空间将改变为未来的儿童房间。
The design has been made with the assumption that, if the family would start to grow, this space will change for a future children’s room.
© Kosuke Arakawa
小川幸介(Kosuke Arakawa)
Architects Koyori, DATT
Location Kyoto, Japan
Category Houses Interiors
Architects in charge Nahoko Nakamura, Masahiko Nakamura, Keita Ikebe, Taichi Ito
Area 92.0 m2
Project Year 2015
Photographs Kosuke Arakawa
Manufacturers Loading...
客服
消息
收藏
下载
最近















