查看完整案例


收藏

下载
从我们到达这座房子的那一刻起,我们就意识到我们被大自然所包围,因为这座建筑坐落在广袤的植被中。在它的花园里,有各种各样的植物,我们可以欣赏到大量的仙人掌装饰入口。
这所房子坐落在一座小山上,非常适合它,房间的布置尽量让每个人都有更多的隐私。
这座建筑由C3V公司于2015年设计,占地面积395平方米,位于厄瓜多尔的El Chaquián。
需要强调的是,房屋的电能完全是通过太阳能电池板获得的。
在画廊鸟瞰房屋及周围的绿地
我们推荐这些项目-Dietrich\Untertriefer Architekten在奥地利Bregenz设计一个当代住宅
在画廊鸟瞰房屋及周围的绿地
画廊中的视图
在画廊看到房子的正面视图
在屋顶的图库视图中查看
在屋顶的图库视图中查看
在画廊的露台上欣赏山景
在有木制地板的画廊露台上观看
画廊中的视图
在里面,我们注意到主要的材料是木材,我们可以找到充足和舒适的空间,充分的自然光,通过它的玻璃墙潜入。
如果说有什么能让我们惊叹的话,那就是它环绕在绿山之上的壮观景色。
外部以一种非常简单的方式融入到房子里,建筑师们能够通过周围的环境把每个空间连接起来,这样我们就可以从每一个房间欣赏到奇奇河峡谷的美妙景色。
可欣赏画廊厨房-带木制天花板和墙壁的餐厅
在画廊看到白色厨房,有玻璃墙和视野
在画廊看到白色厨房,有玻璃墙和视野
从餐厅看画廊客厅的景色
有砖墙和木楼梯的画廊客厅
从客厅俯瞰厨房餐厅
画廊中的视图
在画廊看到房子内部的夜景
画廊中的视图
在画廊看到房子外部的夜景
画廊中的视图
画廊中的视图
画廊中的视图
画廊中的视图
画廊中的视图
画廊中的视图
画廊中的视图
画廊中的视图
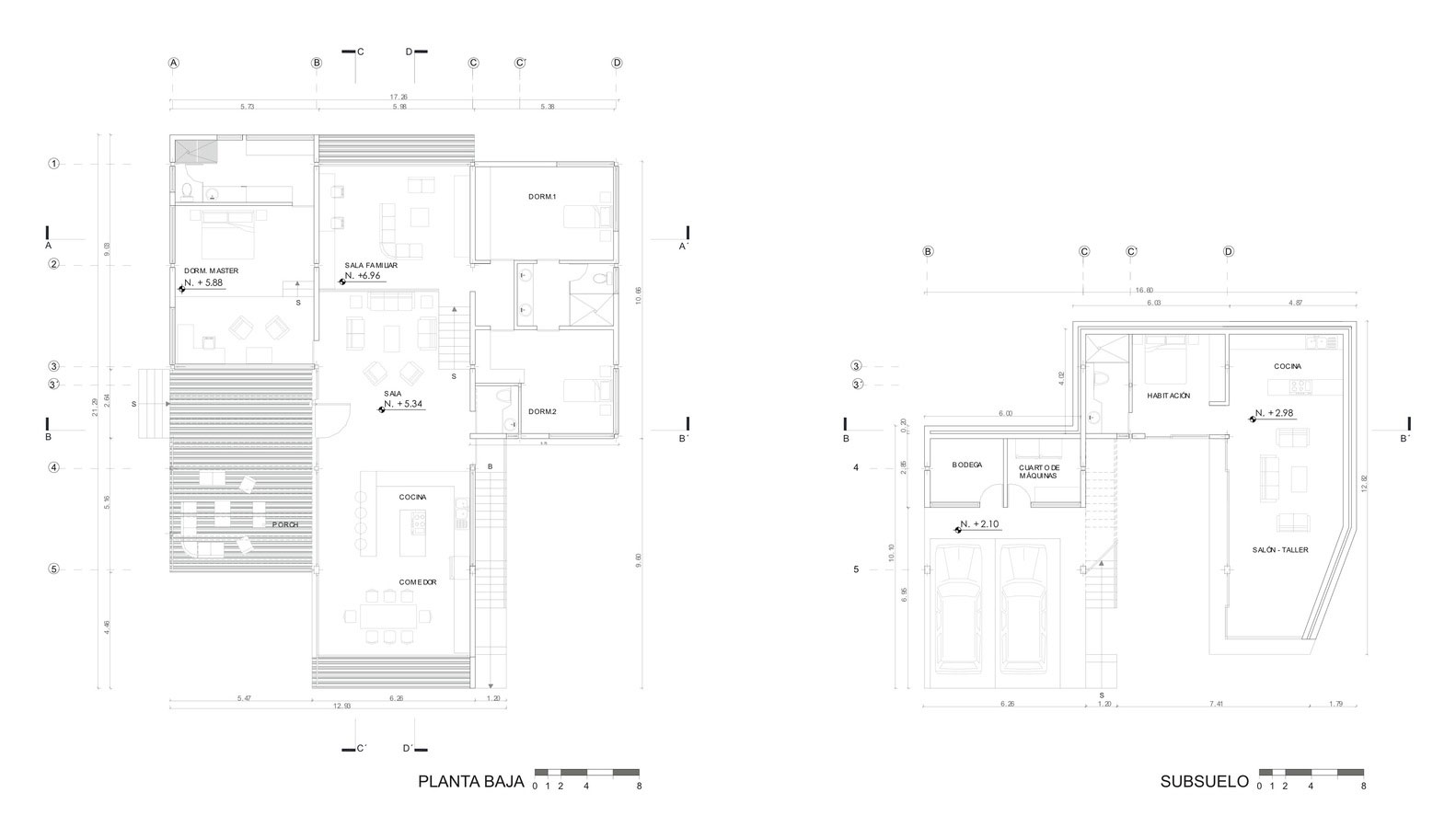
keywords:Bookshelf Brick Walls Contemporary Interior Design Decorative Accessory Dining Room Floor Plans Glass Walls Hall and Entrance Kitchen Landscaping Lighting Living Room Staircase Terrace Wall Decor Wood Ceilings Wood Floors
关键词:书架、砖墙、现代室内设计、装饰附件、餐厅、平面图、玻璃墙、大厅和入口厨房、景观美化、客厅、楼梯、阳台、墙面、木天花板、木地板
客服
消息
收藏
下载
最近





























