查看完整案例


收藏

下载
架构师提供的文本描述。该项目位于一个自然的斜坡,一个令人钦佩的景观面向北方和一个美丽的湖泊。主要的想法是尽量改变原址,但同时提供一些景观的极端美丽的森林景观。
Text description provided by the architects. The project is situated on a site with a natural slope, an admirable view facing north and a beautiful lake. The main idea was to minimally change the original site, but at the same time provide some sights of the extremally beautiful landscape of the forest.
© Nelson Kon
(Kon)
© Nelson Kon
(Kon)
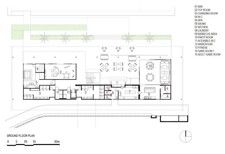
因此,一个社会俱乐部总部被设计到这个地方,包括所有的组织和简短的前提,一个体育和休闲区需要。景观是决定设计的决定性因素,它总是寻求与自然的融合,提供免费的活动和令人愉快的流通和生活区。通过高架人行道的通道与建筑形成鲜明对比,将行人引向这两层高的空间,在那里可以看到景观。
Therefore, a social club headquarters was designed to this place, embracing all organization and brief premise that a sports and leisure area requires. The landscape was the determining factor that led the design to be always seeking for integration with nature and offering free activities and enjoyable circulation and living areas. An access through an elevated walkway contrasts the building from the site, leading the pedestrian to this double storey height space where a view to the landscape can be contemplated.
Ground Floor Plan
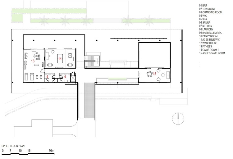
First Floor Plan
一层平面图
所有个人活动,如健身房和游戏室,都位于上层,而底层则是所有免费和普通活动的场所。适当的活动空间和阳台改善了公共生活区。
All individual activities, as a gym and a game room are located on the upper floor, as well as the ground floor hosts all free and common activities. Proper spaces for events and verandas improve the communal living areas.
© Nelson Kon
(Kon)
© Nelson Kon
(Kon)
这个俱乐部总部来自一个轻微的钢结构,它的尽头是两个幕布板。建筑理念是一个单一的避难所,变成一个美丽的景观,将举办许多活动,发生在这个巨大的开放空间。
This club headquarters arises from a slight steel structure, that has it ends as two curtain panels. The architectural concept was one single shelter, turned to a beautiful view that would host many activities that happens in this large and open space.
© Nelson Kon
(Kon)
Architects Reinach Mendonça Arquitetos Associados
Location Jundiaí, SP, Brazil
Category Hospitality Architecture
Authors Henrique Reinach, Maurício Mendonça
Area 1233.43 m2
Project Year 2016
Manufacturers Loading...
客服
消息
收藏
下载
最近


























































