查看完整案例


收藏

下载
采购产品建筑布拉德多兰室内设计梅丽莎温恩专业工程师能源设计制造商装货.多规格少规格
Construction Brad Doran interior Design Melissa Winn Professional Engineers Enertia Design Manufacturers Loading... More Specs Less Specs
© Adam Rouse
(Adam Rouse)
架构师提供的文本描述。原来的家是一个朴素的一个故事在车库,两个卧室,一个浴室的家在诺瓦利附近的旧金山。类似于旧金山的其他房屋,当建造时,有少数其他非常相似的房屋被建造在它附近,每一个都与下一个略有不同。
Text description provided by the architects. The original home was a modest one story over garage, two bedroom, one bath home in the Noe Valley neighborhood of San Francisco. Similar to other homes in San Francisco, when built, a handful of other very similar homes were constructed adjacent to it, each slightly different than the next.
© Adam Rouse
(Adam Rouse)
我们的客户是一个年轻的家庭,在项目开始时,他们有一个蹒跚学步的孩子,后来又有了另一个孩子。他们对家庭的梦想是实现现代化和扩大空间,以容纳一个日益壮大的家庭。连接到后院并垂直扩张以捕捉市中心的景色是至关重要的,同样重要的是一片被光线淹没的开阔的地板。
Our clients are a young family who at the start of the project had one toddler and towards the end another. Their dream for the home was to modernize and expand the space to allow for a growing family. Connecting to the rear yard and expanding vertically to capture the downtown views were vital as were an open floor that was flooded with light.
© Adam Rouse
(Adam Rouse)
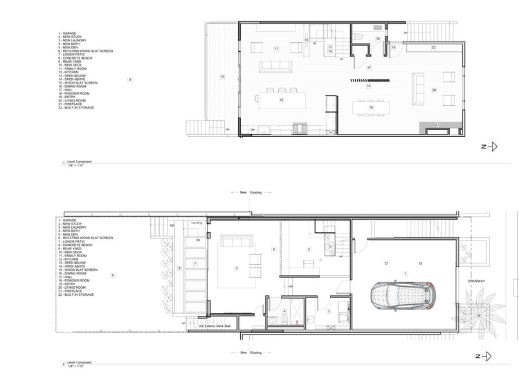
1st / 2nd Level Plans
1/2级计划
© Adam Rouse
(Adam Rouse)
在底层,后方被挖出并扩大,以便有一个居住空间和家庭办公室。在主地板,空间被掏空和扩大,一个新的后院屋顶甲板和一个开放的平面图。而在新的第三层,主套房和屋顶甲板的城市景观被设计连同两个卧室和一个新的浴缸。
At the ground floor the rear was dug out and expanded to allow for a living space and home office. At the main floor the space was gutted and expanded out with a new rear yard roof deck and an open floor plan. And at the new third story, a master suite and roof deck with city views was designed along with two bedrooms and a new bath.
© Adam Rouse
(Adam Rouse)
Architects designpad architecture
Location San Francisco, United States
Category Houses
Architect in Charge Patrick Perez
Area 3046.0 ft2
Project Year 2016
Photographs Adam Rouse
Manufacturers Loading...
客服
消息
收藏
下载
最近



























