查看完整案例


收藏

下载
© Yong-joon Choi
蔡永俊
架构师提供的文本描述。最近,一些宠物家庭不断增加,因此,一些想要对宠物的外部创伤和疾病进行专业诊断和治疗的人也在增加。绿洲兽医外科中心是一个兽医诊所骨科和神经外科。它以“恢复功能、挽救生命、促进人与动物健康共存”的理念为指导,将宠物从重症监护、康复治疗到高水平手术。由于它是一家专门治疗神经疾病和严重的关节、旋转和骨折等外部创伤的诊所,所以客户希望为客户创造一个提供信任的空间。它不应该是一个模糊宠物咖啡馆和宠物店之间界限的诊所,而是一个专注于功能和系统的专业性和真实性的明确诊所。
Text description provided by the architects. Recently, a number of pet families are increasing constantly, and accordingly, a number of those who want professional diagnosis and treatment of their pets‟ external wounds and diseases is also increasing. Oasis Veterinary Surgical Center is a veterinary clinic for orthopedics and neurosurgery. Based on the philosophy „to restore function, to save life and to contribute to healthy coexistence of human and animal‟, it performs all about pets from intensive care of serious case and rehabilitation treatment to high level operation. Because it is a clinic specialized for nervous diseases and serious external wounds of joint, spin and fracture, client wanted to create a space to provide trust for customers. It had to be not a clinic blurring the boundary between pet café and pet shop, but a definite clinic with professionality and authenticity focusing on function and system.
© Yong-joon Choi
蔡永俊
走进诊所,顾客的眼睛被音调淹没了。
Entering the clinic, customers‟ eyes are overwhelmed by tone & manner like research room or laboratory. It boasts its beauty as refined as other commercial spaces, but it strengthened its basis of planning with systematic solution before pursuing beauty. Mies van der Rohe‟s “Less is More” and Louis Sullivan‟s “Form Follows Function”. Oasis Veterinary Surgical Center reminds of maxims which have showed the essence of modern design. It established formative beauty of completion for functions and systems with the trust that there are more stories in simpleness.
© Yong-joon Choi
蔡永俊
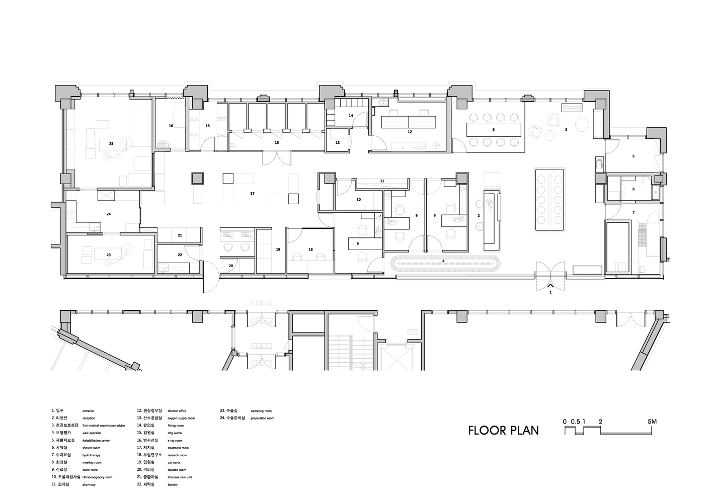
Floor Plan Rooms Details
楼层图则房间详情
© Yong-joon Choi
蔡永俊
首先,根据顾客宠物的偏好和行为模式选择其造型和饰面。回火混凝土地板的维护和卫生选择,圆角是为狗的尿行为。空间构图分别反映了较大的狗、小的狗和猫的特征。较大的狗的病房是双室与前厅,因为他们大声吠,需要宽的行动半径,并采用水系统,以有效地处理他们的排泄物。设计人员只注重系统的楼层规划,注重合理地确定各功能房的面积和位置。
First, its shapes and finishes were chosen considering propensities and behavior patterns of customers‟ pet. Tempered concrete floor is selected for maintenance and sanitation, and round corners are made for dogs‟ peeing behavior. Space composition reflects the features of larger dogs, smaller dogs and cats respectively. Ward for larger dogs is completed as double room with front room, because they bark loudly and need wide action radius, and applies water system for efficient disposal of their excretion. The designer focused only on system in terms of floor planning, and also concentrated on deciding each functional room‟s area and location reasonably.
© Yong-joon Choi
蔡永俊
© Yong-joon Choi
蔡永俊
此外,设计人员还计划所有治疗过程都要暴露出来,营造出专业的空间氛围,以给病人所有者以信任和安慰的感觉。他们可以自然观察检查、治疗、住院、手术、康复治疗和研究等全过程。不同房间的构图以一致的音色在一个空间内形成有节奏的块状。在此基础上,绿洲兽医外科中心以一种简单的方式进行排空和填充,即使用相同的整理材料完成,也能保持其空间的同一性和丰富性。
Besides, the designer planned all the processes of treatment to be exposed and produced spatial atmosphere with professionality in order to give the feeling of trust and relief to patients‟ owners. They can observe whole processes naturally such as examination, treatment, hospitalization, operation, rehabilitation treatment and research. Different compositions by rooms form rhythmical massiveness within a space in the consistent tone. With this, Oasis Veterinary Surgical Center which emptied and filled up in a simple method, keeps its spatial identity and plentifulness even though it is completed with same finishing materials.
© Yong-joon Choi
蔡永俊
Interiors Designers Betwin Space Design
Location Suwon-si, Gyeonggi-do, South Korea
Category Veterinary Clinic
Design Directors Hwan-woo Oh, Jung-gon Kim
Area 363.0 m2
Project Year 2017
Photographs Yong-joon Choi
Manufacturers Loading...
客服
消息
收藏
下载
最近























