查看完整案例


收藏

下载
© Issira Tonehongsa
(Isira Tonehongsa)
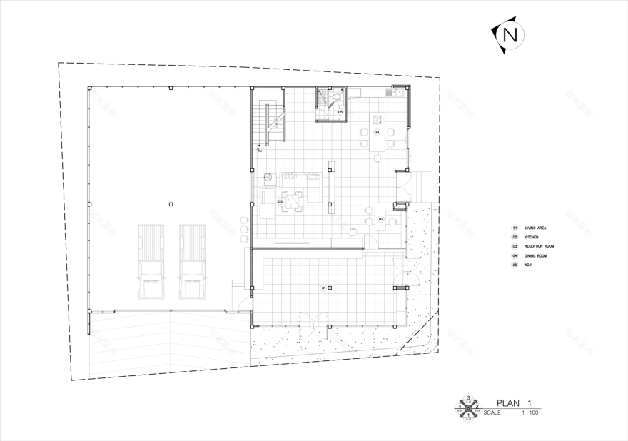
架构师提供的文本描述。这幢房子有一栋三层高的住宅,商店和仓库的内部有钢筋混凝土结构。该建筑位于泰国东北部乌本拉查塔尼省德乌多姆区中心,是一种与泰国热带气候相结合的现代风格。
Text description provided by the architects. This house had a three-storey residential building with reinforced concrete structure within the part of shop and warehouse. It located in the center of Det Udom district, Ubon Ratchathani Province in the Northeast of Thailand, the building is a modern style that combines with the tropical climate of Thailand.
© Issira Tonehongsa
(Isira Tonehongsa)
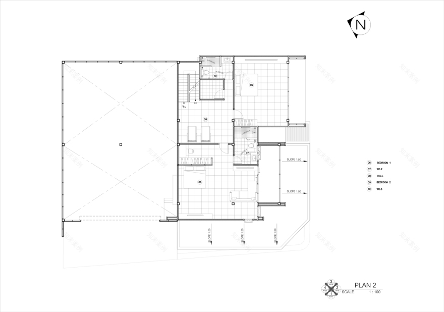
住宅设计的主要理念是家庭团聚,每间卧室都有更多的空间让每个家庭成员花自己的爱好。
The main concept of house design was a family reunion which each bedroom that will be had more space for each family member to spend their own hobbies.
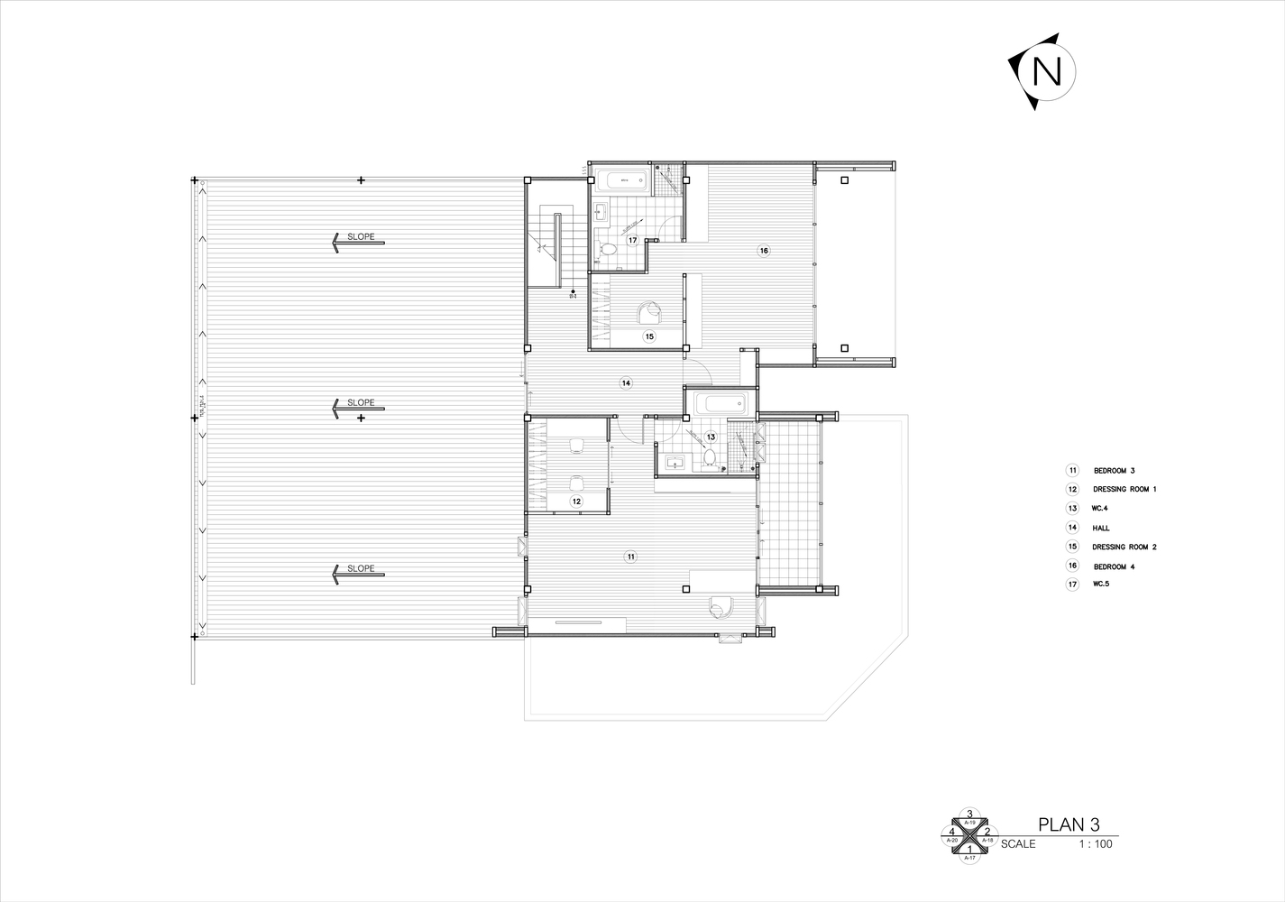
在大楼的三层,有两间卧室的空间,每个房间在自己的卧室里都有一个双人空间,这样两间卧室看起来就像家一样,有越来越多的空间用于自己的活动,而且他们可以看到远处的景色,而周围的建筑却遮住了视野。
In the third-storey of the building there was a space for two bedrooms and each room had a double space in their own bedroom in order to the both bedrooms looked like home that had increasingly of a space for own activity and they can see a faraway view, without the surrounding buildings obscured the view.
© Issira Tonehongsa
(Isira Tonehongsa)
Architects Sute Architect
Location Thailand
Category Houses
Architect in Charge Sutinon Thawaisin,Sitthiphon Komonwetchakul
Area 650.0 m2
Project Year 2017
Photographs Issira Tonehongsa
Manufacturers Loading...
客服
消息
收藏
下载
最近




























