查看完整案例


收藏

下载
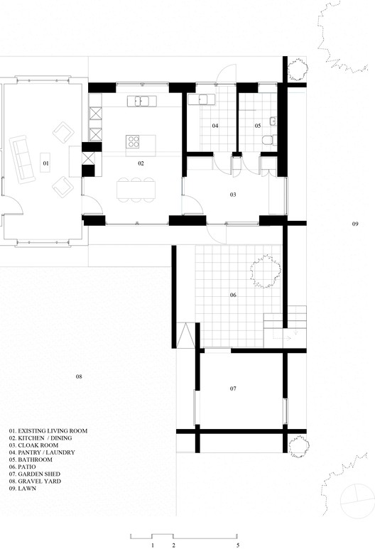
架构师提供的文本描述。这个项目的出发点是一个有问题的郊区类型的房屋,没有优点,它已经被丢弃在一个绿色的场地,而不考虑其背景。
Text description provided by the architects. The starting point for this project is a problematic suburban type house without merit, that has been dropped on a green field site without consideration of its context.
© Oliver Smith
(奥利弗·史密斯)
扩建工程旨在解决这一问题,办法是彻底整修这栋房子的底层,并将其延长至建造一系列令人窒息的房间。
The extension seeks to address this by totally refurbishing the ground floor of the house and extending it in length to create a series of enfilade rooms.
Floor Plan
然后,扩展向右转,创建一个外部遮蔽的露台和一个花园棚屋,使站点被一个L形的配置所分割。这条路的外部高度就像一个传统的爱尔兰农庄一样,是一条长长的高地。‘内部’的L是提供西南和更有利的方面和周围农田的看法。
The extension then turns right to create an external sheltered patio and a garden shed beyond, so that the site is divided by an L shaped configuration. The external elevation of this is given to the road as a long elevation like a traditional Irish farmyard. The 'inside' of the L is offered to the southwest and the more favorable aspect and view over the surrounding farmland.
© Oliver Smith
(奥利弗·史密斯)
延伸部分由混凝土砌块构成,混凝土梁采用表达形式的粗糙混凝土梁,其上系有落叶松屋面结构。一个连续的屋顶灯运行的长度延伸屋顶,这是完成蓝色的锌。
The extension is constructed of concrete block with expressed rough concrete beams onto which a larch roof structure is tied. A continuous roof light runs the length of the extension roof, which is finished in blue colored zinc.
© Oliver Smith
(奥利弗·史密斯)
© Oliver Smith
(奥利弗·史密斯)
我想让这个项目变得轻松;屋顶故意古怪,墙角允许延伸,形成倾斜或种植物体的空间;潮湿地区被用爱尔兰石灰岩化石镶嵌,黄色的颜色被广泛使用,以反映澳大利亚客户更阳光的起源。
I wanted to make the project lighthearted; the roof is deliberately odd, walls are allowed to extend out at the corners to form spaces for leaning or planting things, the wet areas are tiled in fossilized Irish limestone, and the color yellow is used extensively to reflect the Australian clients sunnier origins.
© Oliver Smith
(奥利弗·史密斯)
客服
消息
收藏
下载
最近



















