查看完整案例


收藏

下载
架构师提供的文本描述。基恩-一个热爱简单,朴素,但叛逆的人。Quiin House是在工作中相互交流和相互尊重的基础上设计的。我们实施基恩大厦项目的使命是创造一个安静、干净和鼓舞人心的空间。基恩可以舒适地反映、创作、手工制作或捕捉的空间。因此,我们认为我们需要在这个项目中提供的唯一东西是“空腔”和“光”。
Text description provided by the architects. Quiin - A person who loves simplicity, simplicity but rebellious. Quiin House is designed from interaction and mutual respect in work. Our mission in implementing the Quiin House project is to create a quiet, clean and inspirational space. A space where Quiin can comfortably reflect, create, craft a handmade or capture. So the only thing we think we need to provide in this project is "Cavity" and "Light".
© Kingkien Photography
金坚摄影
© Kingkien Photography
金坚摄影
在这个项目中,我们试图创造一个透明的空间-“看不见的”。主要是通过功能块的设计来实现。功能块被锚定在“空间”中。就像在茶壶中创造空气一样-通过塑造茶壶的“无形”-“可见的”。此外,功能块-“可见”是为“无形”的间隙创造一个安静而清晰的空间所需的隔离层。在这个项目中,光是情感的催化剂,连接建筑中的“空洞”。
With some urgent constraints in the minimal functional spaces and worship culture of the Chinese, in this project, we have tried to create a transparent space - the "invisible". Mostly through the design of functional blocks around. The functional blocks are anchored in the "empty space". As the creation of the air in the teapot - the "invisible" by molding the teapot - the "visible". Besides, Function blocks - the "visible" is the isolation layer needed to create a quiet and clear space for the "invisible" gap. Light, in this project, is the emotional catalyst and connect the "cavit
© Kingkien Photography
金坚摄影
Ground Floor Plan
© Kingkien Photography
金坚摄影
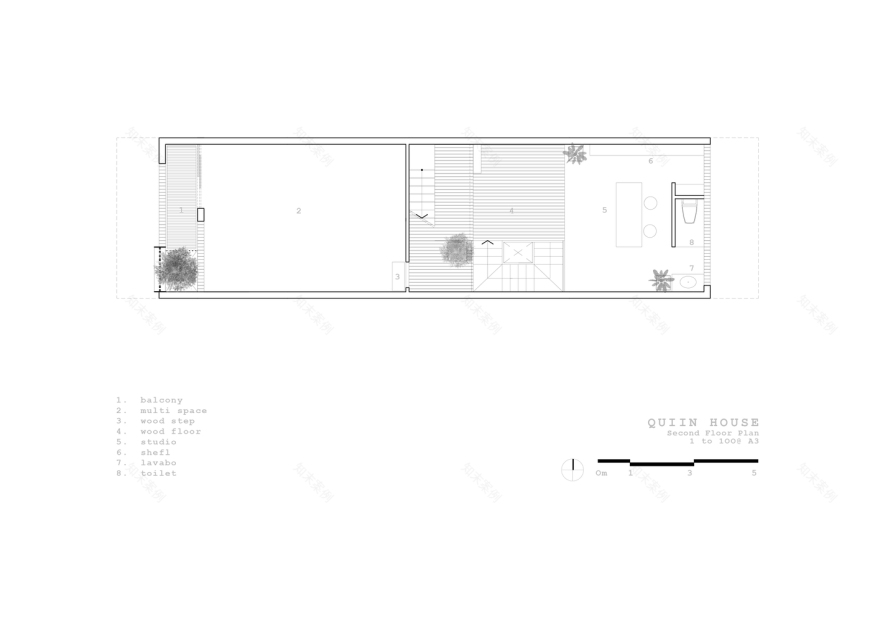
Second Floor Plan
二层平面图
Architects 23o5studio
Location District 6, Vietnam
Lead Architects Ngô Việt Khánh Duy
Design Team Hưng Trần, Mai Tiến Ninh, Sang Vũ
Area 100.0 m2
Project Year 2016
Photographs Kingkien Photography
Category Houses
Manufacturers Loading...
客服
消息
收藏
下载
最近































