查看完整案例


收藏

下载
© Hamidreza Khansari
(Hamidreza Khansari)
Tochal是德黑兰的一个娱乐场所,近年来有着显著的发展计划,因此,我们可以看到立方体俱乐部的设计。
Tochal is a recreational place in Tehran that had remarkable development plan in recent years, thus the design of Cube Club was offered to us.
© Hamidreza Khansari
(Hamidreza Khansari)
在这个项目中,我们遇到了许多挑战,如特殊的设计条款、客户的愿景、资金和时间的限制以及施工的特殊要求,在这些项目成为设计过程中的主要影响因素之后,机遇和约束成为了设计过程中的主要影响因素。
In this project we encountered with many challenges such as special design terms, client visions, financial and time constraints and special requirements of construction, after the mentioned items, opportunities and constraints becomes the main influential factors in design process.
通过对遗址的考察,德鲁关注的优势与劣势、地处山脉和对城市的高贵性被认为是遗址的特征,城市景观的保存和现有的植被是影响选址的因素之一。
By visiting the site, strengths and weaknesses Drew attention, lying on the mountain range and the nobility to the city was considered to be the characteristics of the site, preservation of the city's view and existing vegetation were among the factors influence the locating.
© Hamidreza Khansari
(Hamidreza Khansari)
Tochal建筑群的施工标准只颁发轻型和临时建筑许可证。因此,为了找到解决这些挑战的适当办法,初步形成了使用集装箱的设想。除了采用轻型结构外,集装箱的使用还加快了施工过程。
Construction Criteria of Tochal complex only issued the license for light and temporary structures. Hence, in order to find a suitable solution to the challenges, The Initial ideas of using the shipping containers were formed. In addition to having a lightweight construction, using of containers was accelerating the process of construction.
© Hamidreza Khansari
(Hamidreza Khansari)
因此,为了维护和赞扬自然环境不受人为环境的影响,同时也基于可持续建筑范式和使用可回收材料的必要性,降低建筑成本,提出了用旧容器施工的建议,并在对细节进行回顾后,将其提上了议事日程。
Therefore, in order to maintain and tribute the natural environment against the artificial setting and also based on sustainable architecture paradigms and the Necessity of using recyclable materials and reducing the costs of construction, constructing with the used containers was proposed to client and After reviewing the details, it got on the agenda.
作为传统建筑材料的一种时尚绿色替代品,航运集装箱建筑在设计领域得到了许多令人鼓舞的报道,对于寻求生态意识的人们来说,这似乎是一个明智的选择。
Shipping container architecture gets a lot of encouraging coverage in the design world as a trendy green alternative to traditional building materials, and seems like a smart choice for people looking for eco-consciousness.
© Zahra Behbahani
(Zahra Behbahani)
根据这些挑战和项目,初步设计是将集装箱彼此放置在一起,使其基本结构的干扰最小,因此集装箱作为一个具有特殊标准的模块化单元,成为其建筑和结构设计中的主要组成部分。
According to the challenges and items mentioned, initial design formed with emplacing shipping containers beside each other with minimum interference in their basic structure and thus, containers as a modular unit with special standards becomes the main element of project in its architectural and structural design.
© Zahra Behbahani
(Zahra Behbahani)
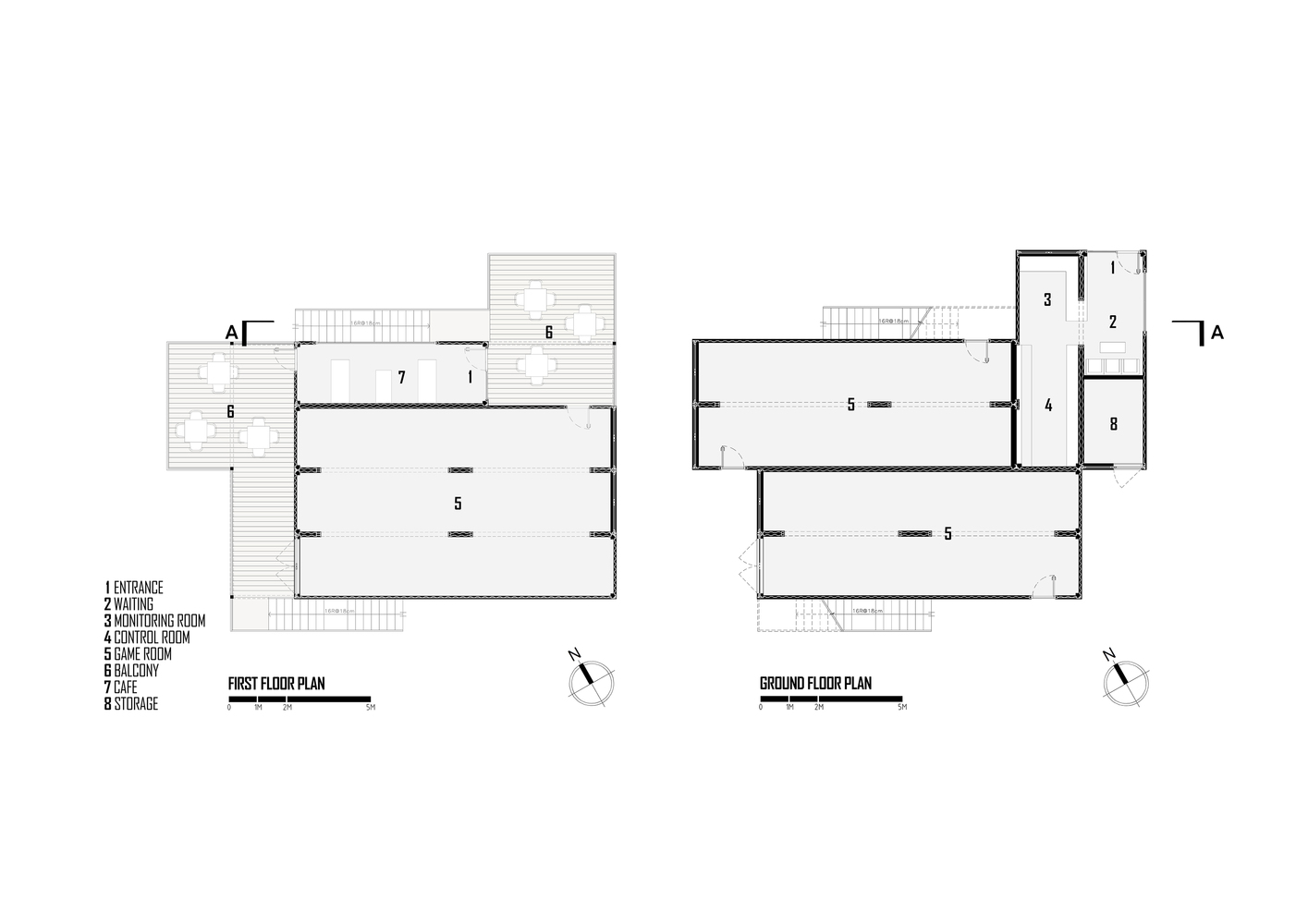
根据场地的形态、城市的景观、现有建筑的保存、申请和出入口三个主要区域确定了场地的主要形态,东部包括咖啡厅和餐厅,南部包括经理办公室、服务区和攀爬板条箱,西边是逃生室的游戏场所。在以上各部分中,根据不同季节的最佳景观、气候、阳光方向和行人路径,进行了项目的形成和规划。随着东侧上部集装箱的旋转,城市景观成为主要景观,在底层创造了一个开口,使行人对工程和城市景观产生了邀请和吸引;另一方面,保留了项目不同部分的独立性及其与Tochal综合体的关系,从而创造了开放、半开放和封闭的空间,从而实现了空间的多样性。
Locating the main forms on the site according to shape of the ground, view of the city, preservation of existing building, required applications and accesses was determined in three major zones, that the eastern zone includes coffee shop and restaurant, the southern zone includes manager office, service areas and crate climbing and the western zone is considered for escape room's game. In each part above, forming and planning of project has been done according to achieve the best view, climate, sunlight direction in different seasons and pedestrian path. With the rotation of the upper containers in eastern side, the city view becomes the main spectacle and make pedestrians invited and attracted to the project and city's view by creating an opening on the ground floor, on the other hand the independence of different sections of the project and its relation with Tochal complex is preserved, therefore spatial diversity achieved by creating open, semi open and enclosed spaces.
Ground Floor Plan
为了实现建筑内外一体化,保持容器的工业特性被认为是室内设计的一项原则,也是由于外壳的金属性质,一些容器被涂上鲜明的色彩,以面对寒冷和工业的气氛。
In order to achieve integration of inside and outside of the building, Maintain industrial identity of containers was considered as a principle in interior design and also due to the metallic nature of the crusts, some of containers were painted with vivid colors to confront cold and industrial atmosphere.
© Hamidreza Khansari
(Hamidreza Khansari)
Architects On Office
Location Tehran, Tehran Province, Iran
Architects in Charge Roozbeh Ghaemmaghami, Mehrad Habibi Sahar Zargar, Zeynab Abedi, Gilava Rohipour, Shabnam Khezeli, Saba Taghizadeh, Saeed Kabiri
Area 1200.0 m2
Project Year 2017
Photographs Hamidreza Khansari, Zahra Behbahani
Category Hospitality Architecture
Manufacturers Loading...
客服
消息
收藏
下载
最近

















































