查看完整案例


收藏

下载
这栋房子位于Llanquihue省的一座城市和智利社区,位于瓦拉斯港附近的大片绿地和山区,由建筑公司Pe Br re的成员Sebasián Bruna设计。设计的意图是,住宅应该是一个“魔法盒”,为居民提供日常生活,让他们可以享受像旅行或度假一样多的生活。根据房主的命令,这所房子不得不给人一种持续的度假感觉。
位于野外区域中心的画廊建设中的视图
奥索诺和卡尔布哥两座活火山(2015年爆发)拥有优越的视野,所有的空间都面向东方。
木制建筑的廊景
廊式木结构,两端有露台
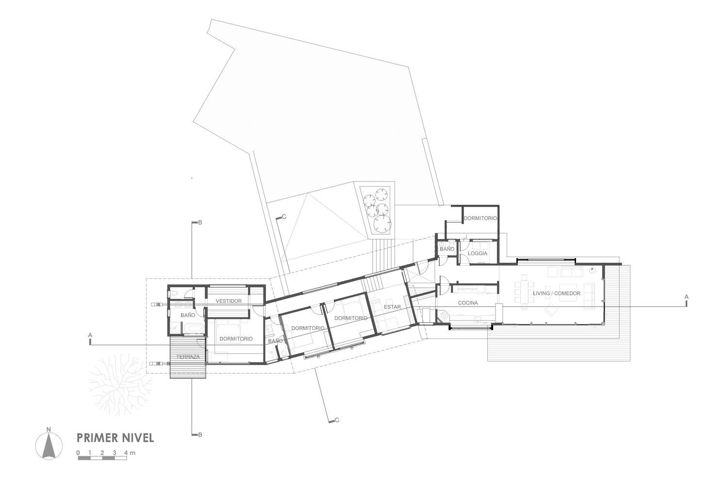
一个拉长的空间被创造出来,逐渐从地板上提升水平,适应地形,产生一个半埋的空间,在卧室下面有停车场。我们从北到南穿过房子,从公共用途到更私人的地方,使不同空间的使用变得流畅。在这两个点上,房子的尽头是一个高架露台,可以俯瞰周围的环境。鉴于智利南部有许多森林,而木材是一种在该地区具有许多存在和传统的材料,因此它被选择用于突出的用途,将其应用于覆层、结构和家具。
我们推荐这些项目,房子木屋周围有一个广袤的自然住宅,一个独特的木屋在日本镰仓
透过玻璃墙与室内相连的廊台景观
在画廊提供的侧卧平台上观看
屋顶木梁的画廊细节
在通向入口的楼梯上观看
有谷仓式门的私人房间的展览厅区
有玻璃墙的画廊房间
画廊中的视图
画廊中的视图
画廊中的视图
画廊中的视图
画廊中的视图
画廊中的视图
画廊中的视图
keywords:Bedroom Brick Walls Contemporary Interior Design Decorative Accessory Exposed Ceiling Beams Floor Plans Glass Walls Hall and Entrance Landscaping Lighting Staircase Stone Walls Terrace Wood Floors Wood Walls
关键词:卧室砖墙,现代室内设计,装饰附件,暴露天花板,梁,平面图,玻璃墙壁,大厅和入口景观,照明,楼梯,石墙,露台,木地板,木墙
客服
消息
收藏
下载
最近


















