查看完整案例


收藏

下载
© Nikolai Wolff
不来梅和许多德国城市一样,不来梅面临着日益严重的住房短缺和对负担得起的住房的日益增长的需求。
Bremen Like many German cities, Bremen is confronted with an increasing housing shortage and a growing demand for affordable housing.
针对这一情况,最大的不来梅住房协会-GEWOBA-审慎地对其现有的 45,000 多套住房作了补充扩展。2011 年,在竞争“ungew hnlich Wohnen”(不寻常生活) 的框架内,从战后住房区挑选了五块示范地段,以调查该地区的适应性。这些提案考虑到了对可提供多种居民配置的负担得起和灵活的住房的当代需求。这些住房区位于纽斯塔特不来梅的加滕施塔特苏德,提供了由同质的四层住宅组成的广阔的绿色空地。
In response to this, the largest Bremen Housing Association, GEWOBA, has prudently taken on a supplementary extension to their existing 45,000 plus housing stock. In 2011, within the framework of the competition “ungewöhnlich Wohnen” (unusual living), five exemplary lots from a postwar housing area were chosen to investigate the adaptability of the area. The proposals considered contemporary demands for affordable and flexible housing that could offer manifold inhabitant configurations. These housing areas in the Gartendstadt Süd of Neustadt Bremen, offer generous green open areas formed by homogenous four-storey housing blocks.
立方体房屋的高度适应性和模块化预制木材系统的多样性使得 Bremer-Punkt 成为城市范围内社会住房补充扩展的试点项目。
Cube House
The high adaptability and multiplicity of the modular prefab timber system makes the Bremer-Punkt a pilot project for supplementary extensions to social housing on an urban scale.
Courtesy of Lin Architects Urbanists
林建筑师
四层木材立方体的准时整合激活了城市生态位。立方体房屋的表面积仅为 13.35x13.35m,对现有建筑物反应灵敏,赋予房地产绿色开放空间的特征,以保持其外观。新的建筑物被设计成一个模块化的木材预制件系统。该系统允许灵活的布局可能性,以满足网站的特定需求,并响应个人的需求。房屋可以适应不同的公寓组合,表面积,循环,立面和建筑形式的要求。
The urban niches are activated by the punctual integration of four-storey timber cubes. With a surface area of only 13.35 x 13.35m, the cube houses react sensibly to the existing buildings, granting the character of the green open spaces of the estate to keep their appearance. The new buildings are designed as a modular timber prefab system. This system allows flexible layout possibilities for site specific needs and responds to individual demands. The houses can adapt to differing apartment combinations, surface area, circulation, facade, and building form requirements.
Construction System
原型在 2017 年 2 月,前三个不来梅立方体将完成在加滕施塔特苏德。
PrototypeIn February 2017 the first three Bremen-Cubes will be completed in the Gartenstadt Süd.
拥有 44-58 平方米的起居面积 (2 至 3 个房间),这些较小的公寓成功地提供了比平均生活水平更高的负担得起的住房、木材建筑系统、宽敞的窗户开口、宽敞的私人户外区域和优化的西南方向。这些新建筑提升了房屋存量和局部地区,并为现有租户提供代际公平,特别是那些需要无障碍设计解决方案的租户。一个集体生活项目被安置在第三不来梅立方体,为该地区增加了新的能源。
With a 44-58m2 living area (two to three rooms), these smaller apartments succeed in providing affordable housing with a higher than average standard of living, timber construction system, generous window openings, spacious private outdoor areas, and optimised south-west orientation. The new buildings present an upgrade to the housing stock and the local area, and afford existing tenants intergenerational equity, specifically for those requiring barrier-free design solutions. A collective living project is housed in the third Bremer Cube, adding new energy to the area.
© Nikolai Wolff
c.Nikolai Wolff
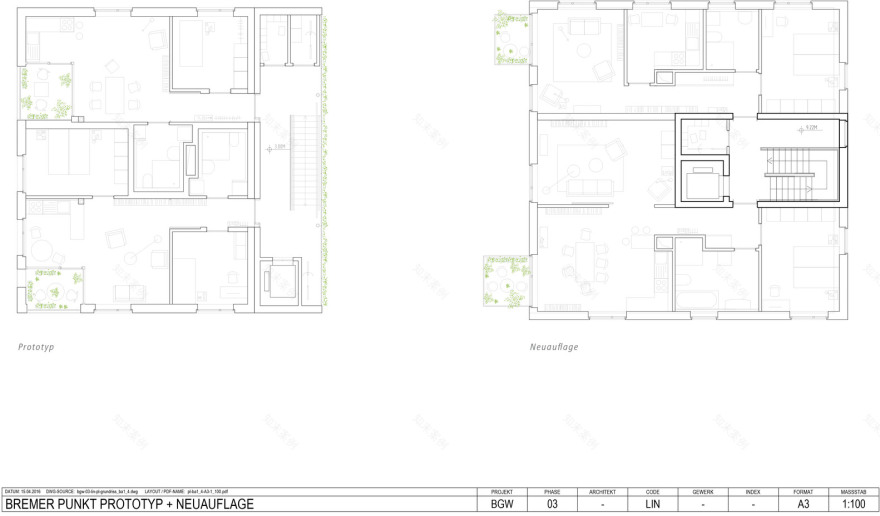
从原型到系列住宅,从概念到最终完成的系列住宅类型,采用了集约化的设计过程。
From Prototype to Serial Housing
From the conceptual idea through to the finished and final serial housing typology, an intensive design process has been applied.
Section A-A
A-A 节
对原型规划过程的认知进行了评估和发展,涉及到施工方法、场地开发和新约束的空间效率优化。不来梅-- 立方体已经作为一个多元化的,连续的住房类型进行了研究。它意识到住房与预定的不同大小和组织的公寓布局的对比。新的增加提供了更多的布局可变性和更有用的生活空间。优化后的建筑围护结构为建筑提供了良好的节能面积与体积比。
The cognisance of the planning process for the prototype was evaluated and developed with regards to construction methods, site development and spatial efficiency optimisation of the new constraints. The Bremen-Cube has been worked through as a multiplicitous, serial housing typology. It realises contrasting housing mixes with predetermined apartment layouts of different sizes and organisation. The new addition offers more layout variability and more useable living space. The optimised building envelope provides the building with a good energy efficient surface-area-to- volume ratio.
© Nikolai Wolff
c.Nikolai Wolff
目前,在规划和实现中,在 Neustadt、Kattentum 和 Schwachhausen 地区有七个不来梅立方体,其次是更多的建筑。
At present there are seven Bremen-Cubes in planning and realisation, in the districts Neustadt, Kattentum and Schwachhausen – followed by more buildings to be implemented.
Isometric Diagram
等距图
Isometric Diagram
等距图
平面图套件不来梅立方体可容纳每栋楼多达 11 套公寓。平面图工具包展示了 22 种公寓类型的目录,它们有可能在 60 多种变体中相互结合。
Floor Plan Kit
The Bremen-Cubes can accommodate up to eleven apartments per building. The floor plan kit showcases a catalogue of twenty-two apartment typologies, which have the possibility to be combined with each other in over sixty variations.
© Nikolai Wolff
c.Nikolai Wolff
系列建筑类型以新的、灵活的、无障碍的平面图来赞美现有的房屋。公寓面积从一间 30 平方米的单间公寓到一套 138 平方米的六室公寓不等。
The serial building typology compliments the existing housing with new flexible and barrier-free floor plans. The apartment sizes range from a one-room apartment of 30m², to a six room apartment with 138m².
Living Pattern
公寓配置的多样性和定制性确保了每个网站能够向不同的用户组提供一个单独的建议。所有的公寓都是无障碍的,两套公寓类型都是轮椅专用的。
The multiplicity and customisation of the apartment configurations ensures that each site is able to offer an individual proposal to differing user-groups. All the apartments are barrier-free and two apartment typologies are fully wheelchair accessible.
© Nikolai Wolff
c.Nikolai Wolff
开放式规划允许多方面的生活模式;生活和工作与家庭星座、单身家庭或集体生活形式的许多可能性是同样可以想象的。
InhabitantsThe open plan layout allows for multifaceted living models; living and working are equally conceivable as are many possibilities of family constellations, single households or collective living forms.
© Nikolai Wolff
c.Nikolai Wolff
在当前负担得起的住房需求和关于居住空间需求的讨论的背景下,不来梅立方为公共或私人资助的模式提供了灵活和针对具体地点的建议,提供了高度的社会融合和代际公平。其中 19 套公寓类型符合“Bremer wohnraum-F rderungsProgramms”(不来梅住房供资委员会) 的要求。第三不莱梅-- 立方体将与“不莱梅马汀俱乐部”合作实现。作为一个模范社区住房项目。该项目旨在为年轻人和老年人、残疾人、难民和低收入者及家庭共同提供各种不同的住房。GEWOBA 编制了一份综合住房类型的多种可能性的平面图目录。
Within the context of current affordable housing demands and discussions on living space requirements, the Bremen-Cube offers flexible and site-specific proposals for public or privately funded models, providing a high social mix and intergenerational equity. Nineteen of the twenty-two apartment typologies fulfil the requirements of the “Bremer Wohnraum-Förderungsprogramms” (Bremen housing funding board). The third Bremen-Cube will be realised in cooperation with the “Martinsclub Bremen e.V.” as an exemplary community housing project. The project looks to house a heterogenous mix of young people and elderly, disabled, refugees and low-income persons and families together. The GEWOBA has complied a floorplan catalogue of the versatile combination possibilities of the housing typologies.
Color Concept
色彩概念
生活质量全高的玻璃门窗与厨房相连,创造了一个空间延伸,成为生活区域不可分割的一部分。
Living Quality
A full height glazed loggia is connected with the kitchen, creating a spatial extension, which becomes an integral part of the living area.
这种逻辑和厨房的结合创造了一个高质量的生活空间,在那里烹饪,就餐,玩耍和园艺是可能的。绿色生活质量是强调在各种规模,通过仔细的放置立方体,以及大的正面开口,其直接连接到室外植被。开放循环阳台是居民的交汇点,形成内外节点。第二代将为不同的公寓类型和大小提供更高的灵活性。通过使用大型滑动门,可以根据需要关闭、分割或扩展房间。
This combination of loggia and kitchen creates a high quality living space, where cooking, dining, playing, and gardening are made possible. The green living quality is accentuated on a variety of scales through the careful placement of the cubes, as well as with the large facade openings with their immediate connection to the outdoor vegetation. The open circulation balcony is a meeting point for the inhabitants, and forms a node between inside and outside. The second generation will offer higher flexibility for different apartment typologies and sizes. Through the use of large sliding doors, rooms can be closed off, divided or extended according to need.
© Nikolai Wolff
c.Nikolai Wolff
Architects Lin Architects Urbanists
Location Bremer Str., 28203 Bremen, Germany
Architect in Charge GEWOBA, Architect Dipl.-Ing. Corinna Bühring
Design Team LIN Architects Urbanists; Giulia Andi, Finn Geipel, Philip König, John Klepel (Project Management), Tobias Schlimme, Mattis Krebs, Maja Lesnik, Ines Dobosic, Bruno Pinto da Cruz, Daniel Nissimov, Jan-Oliver Kunze, Anna Heilgemeir, Veljko Markovic
Area 800.0 m2Project Year 2017
Photographs Nikolai Wolff
客服
消息
收藏
下载
最近































