查看完整案例

收藏

下载
考虑到其历史和建筑价值,项目设计从一栋历史遗迹建筑的室内展开,因为这座建筑位于墨西哥科尔多瓦市中心最老的街区上,并且被国家考古历史协会(INAH)保护着。主旨在于继续建设“咖啡博物馆”的第二阶段,其中包括纪念品店,旅游展厅和景观花园的设计,以给来此游览博物馆的游客们一个完美的句号。
设计理念依靠于咖啡在科尔多瓦城市作为代表性标志的重要性,同时寻找一种当代且永恒的语言来融合已有的建筑基础并且成为一个用于整合具有穿透性的展厅模块的向导,也可以维持对于历史背景遗产的尊敬。这样建筑便有一个起源故事来追溯。
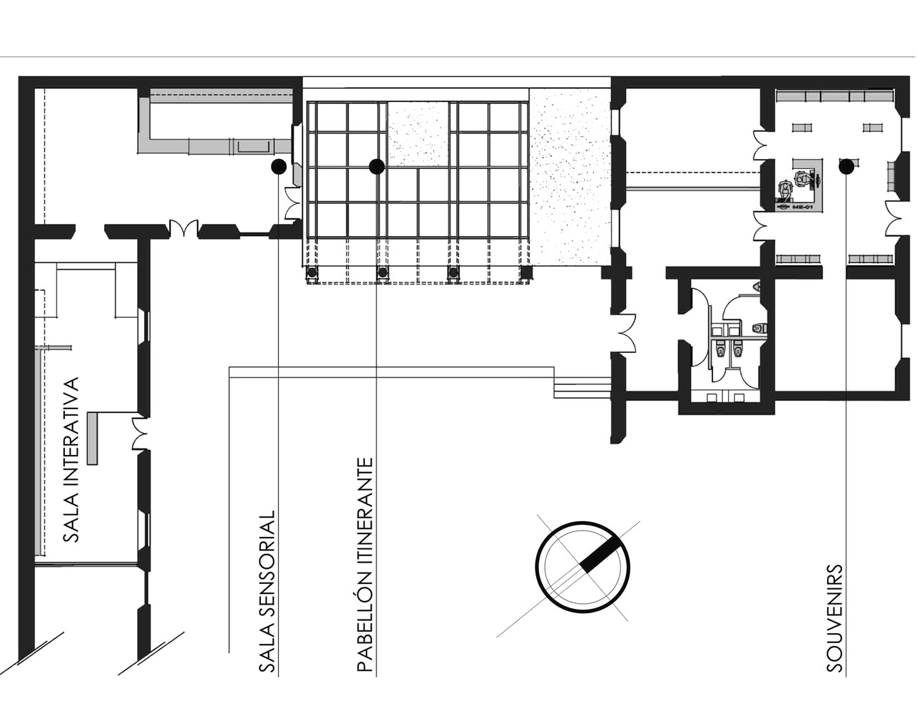
一个轻快的空间设计被提出,既有视觉上也有实体上的穿透感,并且融合了所有组成这个博物馆之旅的元素。主要的结构基于用PTR制成的黑铁模块和名为“Henequen”的一种天然纺织物。这种“Henequen”编织源于原先用于制作绳子,绳索和毯子的墨西哥龙舌兰叶。它能够效仿出咖啡袋的质感,因为其纹理和颜色可以给空间带来温暖感,并且可以作为提供阴影和阻止阳光直射的生态气候性防晒块。
展厅内使用到的所有元素都是人工制作,包括模块,结构和家具。当地的人们都贡献出了优良的工艺水准,体现出人力劳动的重要性。
纪念品区组合了不同的木制模块,在网状系统下又形成了另一个错综的网状结构,并被钢铁元素强调出来。间接光照投射在背面的织物之上,这样的光影效果也凸显出模块摆放的层次感。颜色和材料的自然质感让空间更加柔和温暖。
项目最重要的目标是给予咖啡博物馆的整体规划一种连贯性。为科尔多瓦市民和游客提供的空间让人们在此更长停留,感受空间内真实的体感体验,在他们的记忆中留下印象深刻的一笔。
客服
消息
收藏
下载
最近


















