查看完整案例


收藏

下载
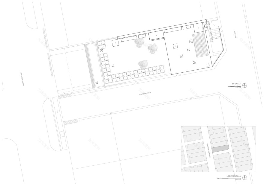
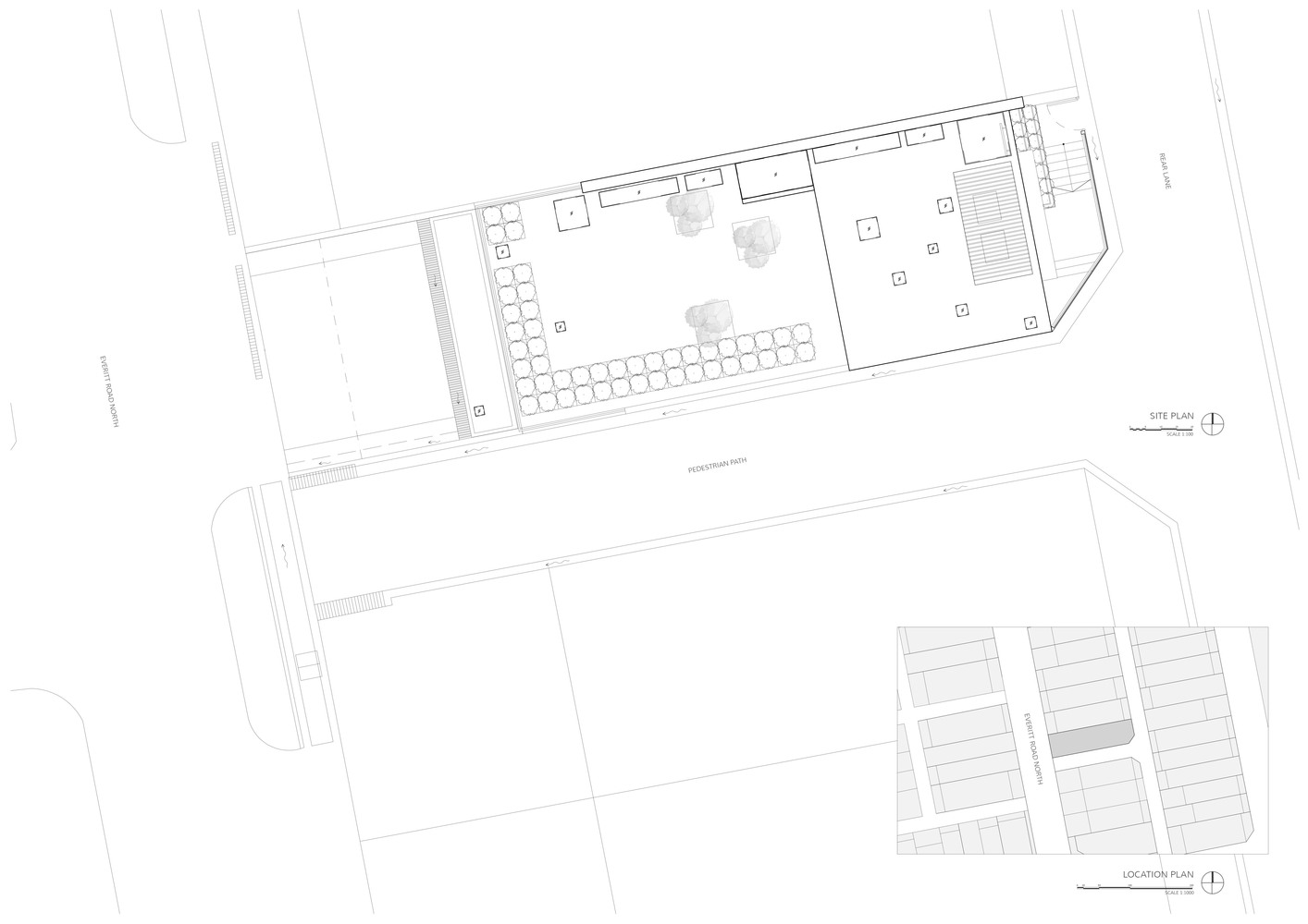
架构师提供的文本描述。Emmanuel@Everitt是一个小教堂,坐落在一个成熟的土地上的200平方米的土地上。原来的教堂占据了一栋建于20世纪40年代的单层街角露台房屋。重建计划是在2010年10月倾盆大雨造成严重破坏后制定的,使其不安全,不适于占领。
Text description provided by the architects. Emmanuel @ Everitt is a small church sitting on a 200 sqm sliver of land in a mature landed residential estate. The original church occupied a single storey corner terrace house built in the 1940s. Plans for rebuilding came about after heavy downpour in October 2010 caused serious damage, rendering it unsafe for occupation.
© Khoo Guo Jie (Studio Periphery)
高国杰(外围演播室)
住宅区内宗教建筑的独特设置引起了规划当局的关注。经过长达4年的上诉,该住宅最终在2015年4月重新划分为礼拜场所,总楼面面积以原有建筑面积为上限。这座教堂于2017年9月完工,花了7年时间重建。
The unique setting of a religious building in a residential area caused concern to the planning authority. A protracted 4-year appeal process eventually rezoned the residential site as Place of Worship in April 2015, with the total floor area capped at original building footprint. Completed in September 2017, rebuilding this church took 7 years.
© Khoo Guo Jie (Studio Periphery)
高国杰(外围演播室)
教堂由三个关键区域组成:保护区、联谊会区和教堂办公室/储藏室。庇护所可容纳60人。
The church consists of 3 key areas- The Sanctuary, Fellowship Area and the Church Office/Pantry. The Sanctuary seats 60 people.
© Khoo Guo Jie (Studio Periphery)
高国杰(外围演播室)
在为防洪而高架的同时,设计了一个独特的异形混凝土体积,与周围地区的规模和高度保持一致,在其现有结构中形成了一个敏感的插入物。天空的灯光点亮了空间,暗示着教堂是世界之光。圣经中的上帝-耶稣,基督,救世主的名字被战略性地放置在连接两层楼的一个自然照明的楼梯井里。
While being elevated for flood protection, a singular off-form concrete volume was conceived, in line with the scale and height of the neighbourhood, creating a sensitive insertion into its existing fabric. Sky-lights punctuate the spaces, an allusion to the church as the Light of The World. Biblical names of God – Jesus, Christ, Saviour are strategically positioned within a naturally lit stairwell connecting 2 floors.
屋顶上一个郁郁葱葱的花园露台需要巧妙地平衡混凝土体积的灰白色。3个大的玻璃纤维播种箱,每箱种植了3棵紫苏树,暗示着三位一体的上帝-父亲、儿子和圣灵的象征意义。
A lush garden terrace on the roof required delicately balances the austere grey of the concrete volume. 3 large fibreglass planter boxes, each planted with 3 numbers of Caesalpinia ferrea trees alludes to the symbolism of the Trinitarian God – Father, Son and Holy Spirit.
© Khoo Guo Jie (Studio Periphery)
高国杰(外围演播室)
Emmanuel@Everitt希望通过融入社区,培养社区精神,鼓励社会可持续性,使之不仅仅是一个礼拜场所。与周围的门禁房屋不同,拆除一扇有形的大门和倾斜的派对墙确实为人们创造了一个开放和欢迎的环境。
Emmanuel @ Everitt aspires to foster community spirit and encourage social sustainability by blending well into the neighbourhood, making it more than just a place of worship. Unlike the surrounding gated houses, doing away with a physical gate and party walls that slope back truly creates an open and welcoming environment for the people.
© Khoo Guo Jie (Studio Periphery)
高国杰(外围演播室)
自开馆以来,邻居们一直来这里喝咖啡和聊天,带回了一种“坎邦”精神,这是马来人对村庄或邻里友谊的称呼。
Since its opening, neighbours have been dropping by for coffee and conversations, bringing back a “kampong” spirit, a Malay term for village or neighbourly camaraderie.
© Khoo Guo Jie (Studio Periphery)
高国杰(外围演播室)
客服
消息
收藏
下载
最近
















































