查看完整案例


收藏

下载
架构师提供的文本描述。在斯图加特(Stuttgart)三位创意建筑师和客户之间的高效合作,将埃斯林根的一片空地变成了一个家庭住宅。
Text description provided by the architects. How a highly productive collaboration among a trio of creative stuttgart-based architects and the client turned an empty lot in Esslingen into a family home for ages.
© Patricia Parinejad
(Patricia Parinejad)
“我们想在这里建立一个家庭。孩子们应该能玩,房子应该对客人开放。“这是客户与建筑师共同同意的主要要求。如果有人开始实现一个一生的梦想,仍然保持着与所爱的人以及日常生活的联系,结果将是美妙的。
“ We want to raise a family here. The kids should be able to play and the house should be open for guests..” This was the main request of the client in mutual agreement with the architects. If someone starts to realizing a life-long dream still keeping the connection to the loved ones as well as to the daily life the outcome will be fantastic.
© Johannes Vogt
约翰·沃格特
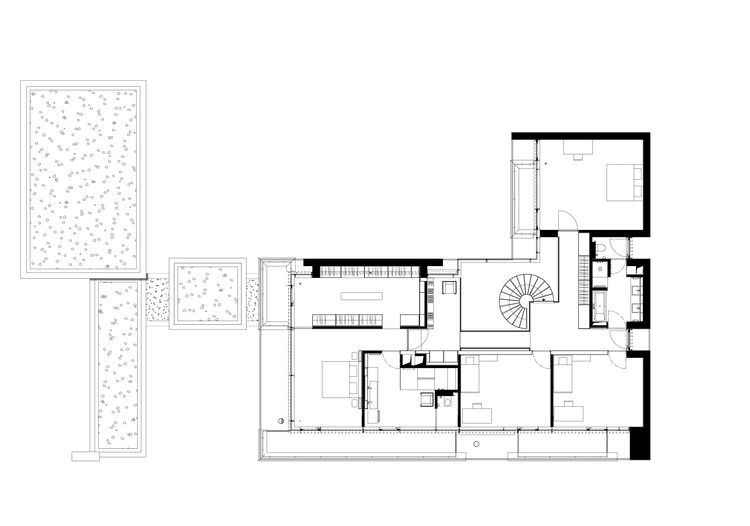
Ground floor plan
© Johannes Vogt
约翰·沃格特
在四年的时间里,建筑师和客户聚集在陡峭山坡上的一个细节或空间序列上,进行创意会议,交换意见。就像那些伟大的对话,最终的设计获得了自己的流程,充满了丰富多彩的叙事,充满活力的对立面,和轶事。现在,室外房间回荡着明亮的室内建筑,建筑达到了一个温和干净的平衡,从暴露到非常亲密。
Over the period of four years architects and clients met for creative sessions, exchanging ideas as they converged on a detail or spatial sequence of the steep hillside location. And like those great conversations, the resulting design acquired its own flow, full of colorful narrative, spirited counterpoint, and anecdote. Now outdoor rooms echo luminous indoor ones and the architecture strikes a gentle and clean balance, shifting from the exposed to the very intimate.
First floor plan
一楼平面图
© Patricia Parinejad
(Patricia Parinejad)
从地板到天花板的窗户将入口大厅与巨大的雕塑楼梯和卧室之间的一座连接桥梁改造成一个发光的玻璃墙连接器,引入了色彩的一瞥和室内外空间之间的视觉联系。
Floor-to-ceiling windows transform the entry hall with the gigantic sculptural staircase and a connecting bridge between the bedrooms into a luminous, glass-walled connector, introducing glimpses of color and a visual link between indoor and outdoor spaces.
© Patricia Parinejad
(Patricia Parinejad)
“每个室内空间,我都想创造一个室外的对应物,”Fuchs说,并将一个方形半覆盖的露台改造成一个郁郁葱葱的户外烧烤棚,通往周围的土地,中间长着一棵美丽的枫树。一个流动的生活-用餐-厨房区域让位于厨房和露台之间的玻璃门,似乎它一直在那里。宽敞,明亮,现代和豪华的结果是惊人的休息-与家人和朋友,使这一切的生活。
“ For every indoor space, I wanted to create an outdoor counterpart,”says Fuchs and altered a square half covered patio into a lush outdoor bbq hangout with access to the surrounding land and a pretty maple tree growing in the middle. A fluid living-dining-kitchen area gives way to a glass doorway between the kitchen and patio that seems as if it’s always been there. Spacious and bright, modern and luxurious the results are remarkably laid-back with family and friends that brings it all to life.
© Patricia Parinejad
(Patricia Parinejad)
Architects Fuchs Wacker Architekten
Location Esslingen, Germany
Lead Architects Stephan Fuchs, Michael Gehrmann
Area 450.0 m2
Project Year 2017
Photographs Johannes Vogt, Patricia Parinejad
Category Houses Interiors
Manufacturers Loading...
客服
消息
收藏
下载
最近



































