查看完整案例

收藏

下载
© Marcelo Donadussi
马塞洛·多纳杜西
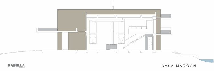
架构师提供的文本描述。湖面逐渐变细的地形,使更广阔的前缘植物摇摇欲坠,后面的面积也缩小了。由于起居室缩小,湖底景观使得底楼的需求计划不得不扩大到阁楼。从客厅经过的后门廊上的阶梯式甲板,也是从露台接近湖面的一个解决方案,使其与景观和花园的结合更加吸引人。
Text description provided by the architects. The tapering terrain for the lake was instrumental in staggering the broader front plant and narrowing in the back, and its ground floor needs plan had to be expanded to a mezzanine because of the lake's bottom views since the living room narrowed. The stepped decking on the back porch, just past the living room, was also a solution to approach the lake from the patio and made integration with the landscape and gardens more attractive.
© Marcelo Donadussi
马塞洛·多纳杜西
© Marcelo Donadussi
马塞洛·多纳杜西
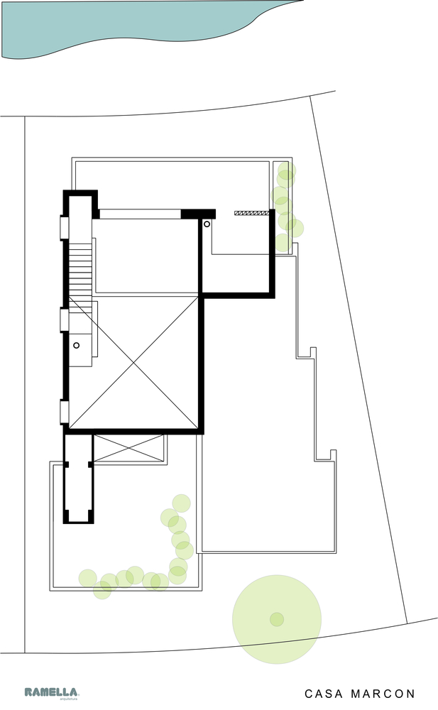
这座明显的砖混房屋坐落在巴西南海岸藏里拉(Xangri-la)的一套由多块土地组成的共管公寓中,其内部生活与景观和花园的结合紧密相连,而这正是他们一家人在海滩上寻找的。它更隐蔽的洞口立面上有一个车库门廊,后台有一个小花园,与客厅合二为一,有双高和夹层。它的内部,在混凝土的纹理,木材和砖块的细节遵循的外部外观,它使一切舒适的建筑组成在完美的和谐。
The apparent brick and concrete house sit in a condominium of lots in Xangri-la, south coast of Brazil, and its interior living is strictly connected to the integration with the landscape and gardens, which the family sought in a beach house. Its more blind facade of openings houses a garage-porch with a small garden in the background that merges into the living room with double height and mezzanine. Its interior, in textures of concrete, wood and brick details follows a reference to the external façades, it leaves everything cosy in an architectonic composition in perfect harmony.
© Marcelo Donadussi
马塞洛·多纳杜西
房屋前部右脚较高的搁板和钓鱼用品的沉积量对土质外墙产生了更大的影响,而表面混凝土中的绿色盖板的水平性使其软化。建筑师所做的景观设计,有用一个花园来划定土地空间的功能,以适应当时房屋的变化。“石灰、苔藓、混凝土和砖块上的污渍,都是时间遗留在房子里的标志,并在这段时间里改变了它,”。以及它的花园,根据一年中不同的时间表现出不同的方式。“
The volume of the deposit of beach items with a higher right foot for planks and fishing articles in the front of the house generated more imposing to the earthy façade that is softened by the horizontality of the green cover slab in apparent concrete. The design of the landscaping done by the architect had the function of delimiting the spaces of the land with a garden created to grow and to follow the changes of the house during the time."Limo, mosses, stains on concrete and brick, are marks that time leaves in the house and transforms it during the time, as well as its garden that behaves in different ways according to the time of year."
Architects Ramella Arquitetura
Location Xangri-lá, Brazil
Author Architects Blacio Junior, Larissa Ramella
Architect in Charge Blacio Junior
Team Blacio Ruivo Junior, Carlos Ramella, Larissa Ramella, Serrano Engenharia
Area 320.0 m2
Project Year 2016
Photographs Marcelo Donadussi
Category Houses Interiors
Manufacturers Loading...
客服
消息
收藏
下载
最近





















