查看完整案例


收藏

下载
架构师提供的文本描述。所采取的蜕变策略是扩大,创造一个灵活的家庭空间;挖掘创造一个独立的下陷办公室和功能齐全的奶奶吞并-花园是重点。
Text description provided by the architects. The metamorphosis strategy adopted was to extend out to create a flexible family room; and to dig down to create an independent sunken office and fully functional granny annexe – the garden being the focus.
© Juliet Murphy
朱丽叶·墨菲
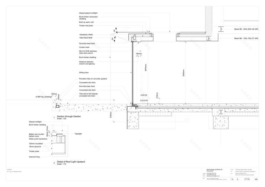
进出花园的景色是用(几乎)无框玻璃构成的。我们把一个变黑的木料包层比喻成一个舒适的合适的巴尔莫勒帽,坐落在这短暂的边界上,这与在酒廊的墙壁和天花板上覆盖的山毛榉木板形成了鲜明的对比。
Views to and from the garden are framed through panes of (almost) frameless glass. A blackened timber cladding we liken to a snug fitting Balmoral bonnet sits atop this ephemeral border, which makes a striking contrast to the beech timber panels cladding the walls and ceiling of the Lounge.
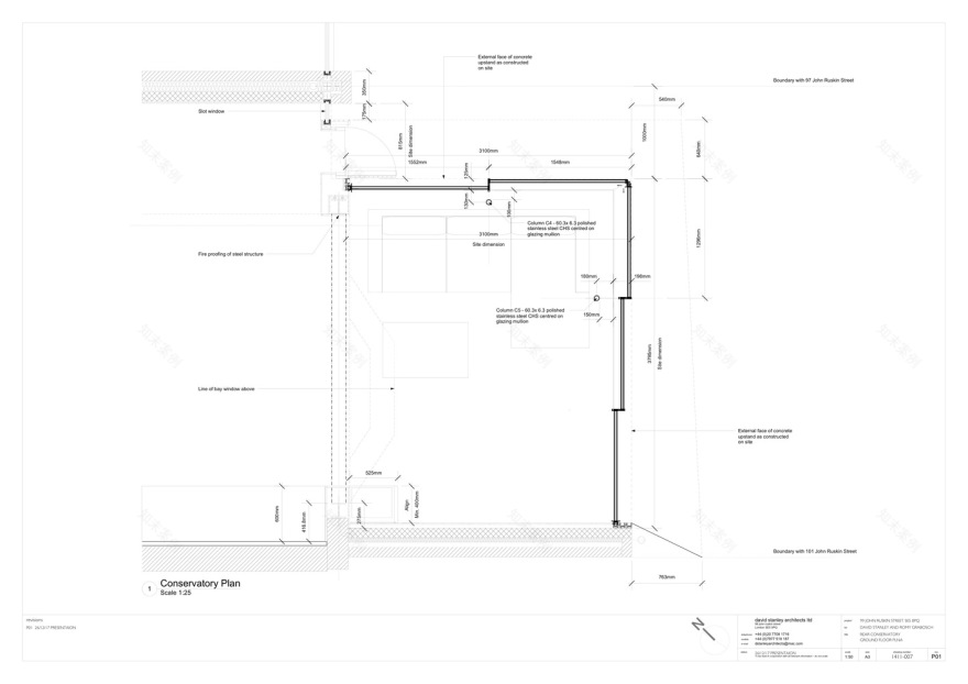
Plan - After Renovation
计划-翻新后
从沙发的舒适感来看,层压板上的条纹将目光投向一盏小屋顶灯,它捕捉到了午后太阳的金色色彩。这些同样的山毛榉面板被进一步用于整个平地的各种活动空间-阅读“角落”;实用工具架;隐蔽的防火门;立方体孔。在家庭房间的中心是起伏的定制厨房单元。这件家具是用橡木木板建造的,漂浮在混凝土的海洋上,是为了鼓励家庭日常生活的互动。
From the comfort of the sofa, the striations of the laminated timber panels direct the eye up towards a small roof light that catches the golden hue of the late afternoon sun. These same beech panels are further employed to articulate the various activity spaces throughout the flat – the reading ‘nook’; the utility shelf; the concealed fire door; the cubbyholes. At the heart of the family room is the undulating bespoke Kitchen island unit. Constructed of oak veneered boards and floating on a sea of concrete this piece of landscaped furniture was designed to encourage the interaction of everyday family life.
© Juliet Murphy
朱丽叶·墨菲
最后,这座建筑所构成的景观是最引人注目和引人注目的-从“禅宗”花园中的雄伟树蕨类植物,到发黑的木材种植园中的中国蔷薇和肉桂状的圆顶。当落日的最后一缕光线照射到Corten烧烤的背景下,背景是红橙色的辉光…。这会是个暗示吗?
At the end of the day it is the views framed by this architecture that are most remarkable and eye catching – from the majestic tree ferns in the ‘Zen’ garden to the Chinese Rosebud and Carpinous Domes in the blackened timber planters. And when the last rays of the setting sun hit the Corten BBQ backdrop with a reddish-orange glow… could that be a hint?
© Adelina Iliev Photography
阿黛丽娜·伊里耶夫摄影
Architects David Stanley Architects + Romy Grabosch
Location 99 John Ruskin St, London SE5, United Kingdom
Architect in Charge David Stanley Architects + Romy Grabosch
Area 80.0 m2
Project Year 2017
Photographs Juliet Murphy, Adelina Iliev Photography
Category Residential Architecture
客服
消息
收藏
下载
最近











































