查看完整案例

收藏

下载
© Nick Kane
尼克·凯恩
架构师提供的文本描述。Sultan Nazrin Shah中心是一座新建筑,内有一个大型演讲厅、一个学生学习空间、研讨会室和一个舞蹈工作室。这项工程不单止是提供新的设施,而且是发展和改善学院用地这重要部分的设置,虽然新建筑物与列出的公园之间的关系很重要,但这只是一项复杂安排的其中一部份。
Text description provided by the architects. The Sultan Nazrin Shah Centre is a new building housing a large lecture theatre, a student learning space, seminar rooms and a dance studio. The project is not simply the provision of new facilities, but also the development and enhancement of the setting of this significant part of the College site. Whilst the relationship between the new buildings and the listed parkland is important, it is only one part of a complex arrangement.
© Nick Kane
尼克·凯恩
Floor Plan
© Nick Kane
尼克·凯恩
这座建筑被设计成花园里的剧院。它是在讲台上升起的。一个弯曲的石制礼堂直接打开到橡木天花板的门厅,延伸到佩高拉和露台上,俯瞰着蟋蟀球场。剧院的框架是一个高高的石头屏风,使牧师的光线进入空间。它被一个褶皱的天花板冲向舞台。它既可以作为一个完全封闭、黑暗的环境运行,也可以作为一个被四周花园环绕的明亮的白昼照明空间运行。舞蹈室坐落在一个长长的蛇形湖的尽头,这个湖把它与学院的古老心脏连接起来。
The building has been designed as a theatre in a garden. It is raised on a podium. A curved stone auditorium opens directly onto an oak-ceilinged foyer that extends out to pergolas and terraces overlooking the cricket pitch. The theatre is framed by a high stone screen that rises to allow clerestory light into the space. It is surmounted by a pleated ceiling sweeping down to the stage. It can operate either as a fully enclosed, darkened environment or as a bright day lit space surrounded by gardens on all sides. The dance studio stands at the end of a long serpentine lake that connects it back to the ancient heart of the College.
© Nick Kane
尼克·凯恩
Section 01
Section 01
© Nick Kane
尼克·凯恩
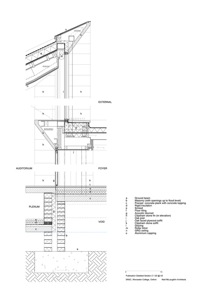
Section 02
Section 02
© Nick Kane
尼克·凯恩
当你从伍斯特广场通过门厅到达时,你会看到一个新的开放的庭院,它把湖面上的景色设计成公园。我们利用这个广场将MJP卓越的欢迎大厦与我们的新提议连接起来,并将它们与周围的庭院和花园连接起来。
As you arrive through the gatehouse from Worcester Place, you are presented with a new open court that frames a view out over the lake to parkland. We use this square to connect MJP's superb Welcome Building to our new proposal and to link them both to the surroundings courts and gardens.
© Nick Kane
尼克·凯恩
Architects Niall McLaughlin Architects
Location 1 Walton St, Oxford OX1 2HB, United Kingdom
Project Manager Bidwells
Area 846.0 m2
Project Year 2017
Photographs Nick Kane
Category University
Manufacturers Loading...
客服
消息
收藏
下载
最近

















































