查看完整案例


收藏

下载
© Nick Kane
尼克·凯恩
架构师提供的文本描述。西部法院项目是三个阶段中的第一个阶段。它提供了一个极好的机会,将这些老建筑融入学院在其历史足迹内的新心脏。在18个月的时间里,它分几个部分交付,首先移交了二级上市建筑的翻修,然后是新的咖啡厅和地下室酒吧,最后是重新设计的1970年的等级建筑和一座新的入口建筑。
Text description provided by the architects. The West Court project is the first of three phases. It presented a wonderful opportunity to incorporate these old buildings into a new heart for the College within its historic footprint. It was delivered in sequential parts over eighteen months, with the refurbishment of the Grade II listed building handed over first, followed by the new café pavilion and basement bar, and finally the re-modelled 1970’s Rank Building and a new entrance building.
3D Section
三维剖面
我们的设计必须响应各种各样的建筑库存和现场条件,以及广泛的建筑类型,从翻新到新建筑。咖啡厅凉亭的轻质玻璃木雕不同于实心砖和橡木入口建筑,后者又不同于重新造型的等级建筑的阳台和异形石墙。在细节方面,重复的机会有限。相反,通过一个一致的调色板,包括橡木、石头、砖块和采石砖等高质量的传统材料,各地的各种元素被统一起来。这些都是为了适应历史环境而选择的。详细回应现有的特点和当地的机会。未经处理的橡木胶框架周围的玻璃被给予一个倒角的轮廓,以回声现有的石窗周围。我们希望这两种材料能及时和睦相处。新的石墙在街道上有一个扇形纹理,以提供救济,加强立面的立体感,并作为一种威慑涂鸦。展馆的木材结构被认为是景观中的一个宝莲花,坐落在纤细的雪茄形状的柱子上,以及精致的十字形连接细节上。
Our designs had to respond to the variety of building stock and site conditions, and the wide range of construction types from renovation to new build. The lightweight glazed timber pergola of the café pavilion differs from the substantial brick and oak entrance building which differs again from the balconies and profiled stone walls of the re-modelled Rank Building. In terms of detailing, there was limited opportunity for repetition. Instead the various elements across the site were unified through a consistent palette of high-quality traditional materials including oak, stone, brick and quarry tiles. These were chosen to suit the historic setting. Detailing responds to existing features and local opportunities. Untreated oak glulam framing around glazing was given a chamfered profile to echo the existing stone window surrounds. We hope the two materials will weather into harmony in time. New stone walls addressing the street have a scalloped texture to give relief, reinforce the verticality of the façade and act as a deterrent for graffiti. The timber structure of the pavilion is conceived as a pergola in the landscape, held on slim cigar-shaped columns and delicate cruciform connection details.
© Nick Kane
尼克·凯恩
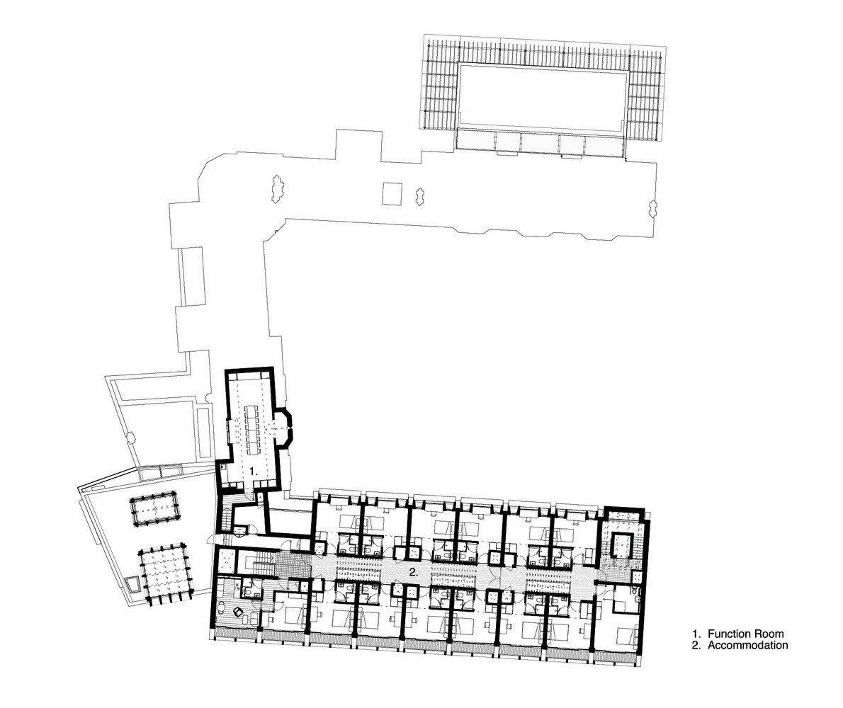
1st Floor Plan
一楼图则
© Nick Kane
尼克·凯恩
该项目涉及到许多挑战,包括严格的规划限制、严格的规划、受限的场地以及在繁忙道路旁的现有建筑中提供一座具有良好音响效果的最先进的演讲剧院。第一阶段的成功可以通过它在多大程度上将这些不同的建筑物重新纳入学院社区的重要生活中来衡量,同时也在剑桥中心提供了一个外观外向的公众存在。
The project involved many challenges including stringent planning constraints, a demanding programme, a constrained site and delivering a state-of-the-art lecture theatre with good acoustics in an existing building next to a busy road. The success of Phase 1 might be measured by the extent to which it has drawn this disparate collection of buildings back into the vital life of the College community whilst also providing an outward-looking public presence in the centre of Cambridge.
© Nick Kane
尼克·凯恩
Architects Niall McLaughlin Architects
Location Jesus Ln, Cambridge CB5 8BL, United Kingdom
Architect in Charge Níall McLaughlin Architects
Area 4140.0 m2
Project Year 2017
Photographs Nick Kane
Category Educational Architecture
Manufacturers Loading...
客服
消息
收藏
下载
最近















































