查看完整案例


收藏

下载
© Adrià Goula
(AdriàGoula)
架构师提供的文本描述。古典主义的宫殿建筑和古老的工业空间,如中世纪的船坞,都有(至少)三个条件。首先,空间是连续的,从一个房间流动到另一个房间。其次,结构叶片具有等效性、规整性和适应性。最后,空间系列的体积不仅与房间的大小有关,而且还与建筑物的整体解释有关。当然,这两种类型也有其他明显的区别。
Text description provided by the architects. Classical palatial buildings and old industrial spaces, such as the medieval dockyards, both share (at least) three conditions. First of all, the space is continuous and flows from room to room. Secondly, the structural vanes are equivalent, regular and adaptable. And finally, the volume of the series of spaces is not only related to the room size, but also to the holistic interpretation of the building. Of course, other obvious features differentiate these two typologies.
© Adrià Goula
(AdriàGoula)
这所房子模棱两可地继承了这三个条件。它的结构清楚地组织在四个长的连续叶片上。结构线的残缺数与经典的威尼斯人三叶四柱结构的古典范式相呼应。不知何故,它占据了古典结构节奏和系列车间结构之间的一个空间。
This house ambiguously inherits these three conditions. Its structure is clearly organised in four long continuous vanes. The impair number of structural lines modernly flirts with the classical paradigm of the symmetrical and classic venetian palatial structures of three vanes and four column lines. Somehow, it occupies a space in between the classical structural rhythms and the serial workshop structures.
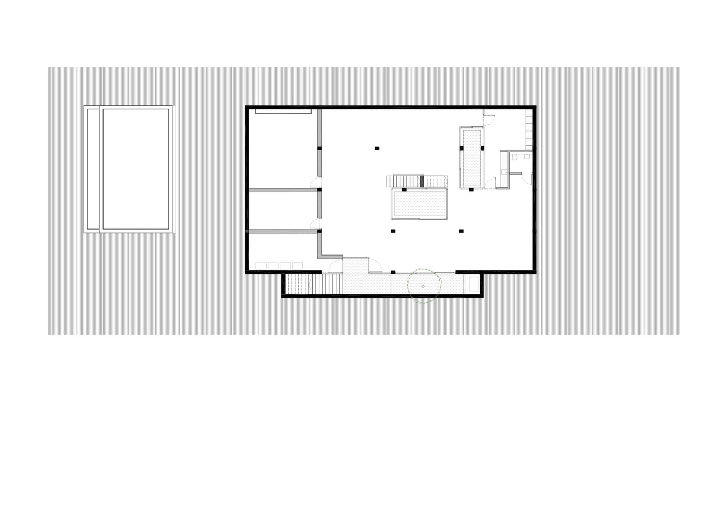
Ground floor plan + Longitudinal section
底层平面图纵断面
在内部,最初的各向同性和对齐结构由三个庭院组成。由此产生的子空间被房屋的不同公共区域占用:厨房、餐厅和客厅。每个庭院都是附属生活区的外部延伸。剩下的第四个叶片保留在卧室的机翼上。
Inside, the initially isotropic and aligned structure is organised by three courtyards. The resulting subspaces are occupied by the different common areas of the house: kitchen, dining and living rooms. Each courtyard is an external extension of the annexed living areas. The remaining fourth vane is reserved to the bedrooms wing.
© Adrià Goula
(AdriàGoula)
Longitudinal section
© Adrià Goula
(AdriàGoula)
房子的重要性从属于屋顶结构。白色的混凝土悬臂表面赋予了建筑特色。它是在横梁和拱顶,漂浮在四米以上的一楼工厂。在这个元素之下,一个垫-建系统连接到地面,与当地陶瓷瓷砖和渲染墙壁。永恒的传统材料与现代的釉面结合在庭院周围。
The materiality of the house is subordinated to the roof structure. A white painted concrete cantilevered surface gives character to the building. It is ramified in beams and vaults, and floats four meters above the ground floor plant. Beneath this element, a mat-building system connects to the ground, with local ceramic tiling and rendered walls. Timeless traditional materials are combined with modern glazed surfaces around the courtyards.
© Adrià Goula
(AdriàGoula)
我们可以说,这所房子是一种宫殿式的作坊,确实是一种奇怪的东西,如发条橙色。然而,它起作用了。
We could say this house is a sort of palatial workshop, something queer as a clockwork orange, indeed. However, it works.
© Adrià Goula
(AdriàGoula)
Architects Lagula arquitectes
Location Caldes de Malavella, Spain
Architects in Charge Antonio Alonso, Martín Ezquerro, Ignacio López Alonso, Marc Zaballa, Manel Morante
Area 300.0 m2
Project Year 2017
Photographs Adrià Goula
Category Houses Interiors
Manufacturers Loading...
客服
消息
收藏
下载
最近






















