查看完整案例


收藏

下载
© Seiichi Osawa
(C)大川世一(Seiichi Osawa)
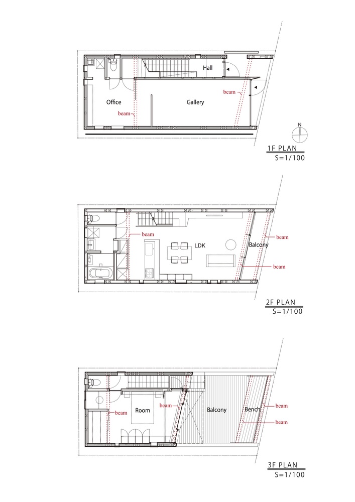
架构师提供的文本描述。这座建筑位于一个狭小的正面,一楼有一个画廊,二楼和三楼有一个住宅。客户要求画廊有一个玻璃立面,以允许良好的能见度从街道和一个单一的开放空间,以确保灵活性,并允许未来的变化使用。他们还要求为二楼住宅区提供单独的入口,以及一楼不需要建筑墙的设计,例如拉赫曼建筑。
Text description provided by the architects. Located on a lot with a narrow frontage, this building houses a gallery on the first floor and a residence on the second and third floors. The client requested that the gallery have a glass facade to allow good visibility from the street and be a single open space to ensure flexibility and allow for future changes in use. They also requested a separate entrance to the second-floor residential area, and a design that required no structural walls on the first floor, such as a Rahmen structure.
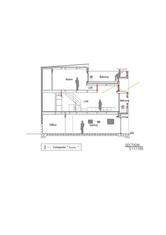
在典型的日本木框架建筑中,梁之间需要有承重墙,在较低的楼层需要大量的承重墙。这导致了空间的分割。采用木门式的拉赫曼框架朝向前面的建筑,使承重墙变得不必要,但柱子也不得不加宽,拥挤在狭窄的立面上。为了允许较窄的柱子,梁的上到下高度必须增加,但通常情况下,这将关闭空间。我们的设计解决方案是用钢桁架和叠层木料制成组合梁,设计拉赫曼框架,这样既允许较窄的柱子,也允许长排的场地,最终在空间中创造了一种更开放的感觉。
In typical Japanese wood-frame architecture, load-bearing walls are necessary between the beams, with a particularly large number needed on lower floors. This leads to a partitioning of space. Using a wooden portal-style Rahmen frame toward the front of the building rendered load-bearing walls unnecessary, but the columns also had to be widened, crowding the narrow facade. To allow for narrower columns, the top-to-bottom height of the beams had to be increased, but ordinarily that would close off the space. Our design solution was to create a Rahmen frame using composite beams made of steel trusses and laminated lumber, which allowed for both narrower columns and long lines of site, ultimately creating a greater feeling of openness in the space.
© Seiichi Osawa
(C)大川世一(Seiichi Osawa)
通过在扩展梁的中心插入开放的钢桁架框架,我们能够避免用厚厚的梁来阻碍空间,而允许场地的直线很容易地通过它们。根据强度要求和每个区域的预定用途,我们以多种方式改变了桁架框架的形式,并改变了天花板的高度,创造了一个更自由、更开放的空间。
By inserting open steel-truss frames in the center of the expanded beams, we were able to avoid obstructing the space with thick beams, instead allowing lines of site to easily pass through them. Based on strength requirements and the intended use of each area, we varied the form of the truss frames in multiple ways and altered the height of the ceiling, creating a freer, more open space.
由于钢桁架只承受水平荷载,因此不需要防火罩,因此有可能将桁架框架纳入设计。与全钢框架相比,钢-木混合结构减轻了建筑的重量,也降低了成本。我们使用了许多风格的钢桁架,并把它们作为阳台扶手,遮阳,支持一个长凳,和开放的元素以上的门。框架也是可见的,在建筑的许多部分,定义了内部空间和外部外观。
Because the steel trusses support only the horizontal load, a fire-resistant covering was not necessary, and it thus became possible to incorporate the truss frames into the design. The steel-wood hybrid structure lightened the building and also lowered costs compared to an all-steel frame. We used many styles for the steel trusses and put them to use as balcony handrails, sun shades, back support for a bench, and openwork elements above doors. The frames are also visible as-is in many parts of the building, defining both the interior space and exterior appearance.
© Seiichi Osawa
(C)大川世一(Seiichi Osawa)
Architects Hugo Kohno Architect Associates
Location Tokyo, Japan
Area 121.09 m2
Project Year 2017
Photographs Seiichi Osawa
Category Houses
客服
消息
收藏
下载
最近




















