查看完整案例


收藏

下载
© Reza Najafian, M.H. Hamzehlouei
(Reza Najafian,M.H.HamzehLouei)
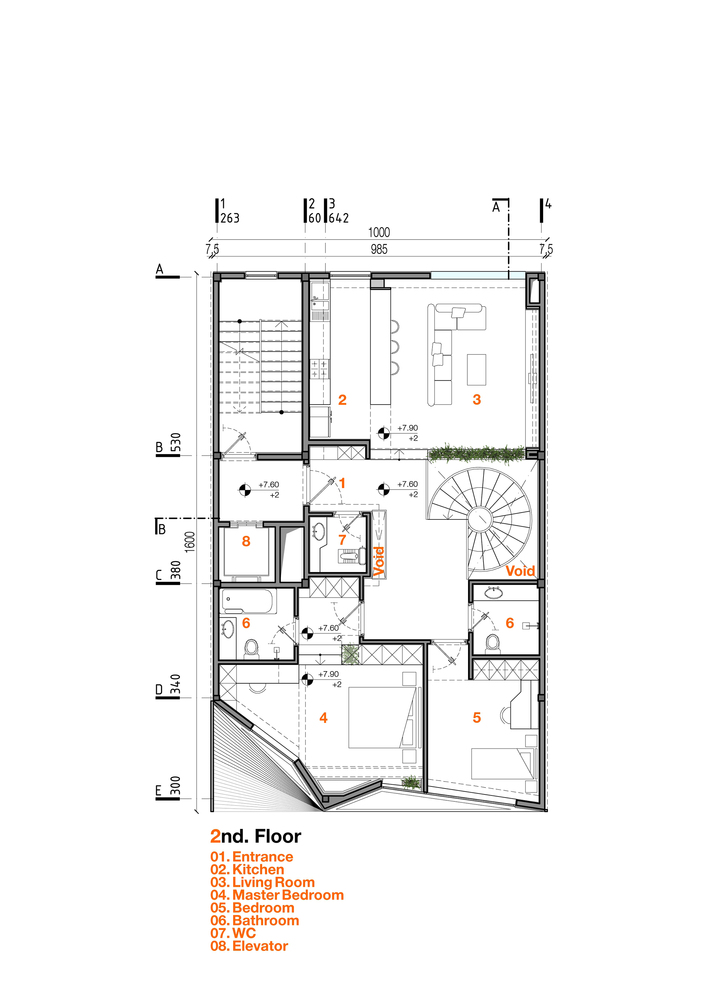
架构师提供的文本描述。Qorveh住宅位于距离伊朗库尔德斯坦省中心90公里的地方。根据客户的要求,该住宅分为两个独立单元,一个是复式住宅单元,另一个是多功能独立居住和工作套房。
Text description provided by the architects. Qorveh house is located in 90 km from the centre of Kurdistan province in Iran. According to client’s demand, this house is designed in two separate units, a duplex residential unit and a multi-purpose independent living and working suite.
© Reza Najafian, M.H. Hamzehlouei
(Reza Najafian,M.H.HamzehLouei)
因此,通过区域研究和对新城区相邻街区的类型和形态的分析,导致了没有建筑价值的二维图形的产生,我们一直致力于将这一项目展示为一个由永久和真实的材料构成的雕塑体。
Accordingly, with regional studies and analyzes on the typology and morphology of adjacent neighbourhoods in a new urban area, which led to the production of two-dimensional graphics with no architectural value the efforts have been devoted to exhibiting this project as a sculptural mass made of a permanent and authentic material.
Facade Connection
正面连接
Mass Process
质量过程
砖作为一种真正的、古老的材料,其韵律的运用是一种令人愉快的旋律,它与当今的美学相结合,以先进的技术细节构成了一部杰作。
The rhythmic use of brick as a genuine and old material is a delightful melody, which combines with today's aesthetics and forms a masterpiece with advanced technical details.
© Reza Najafian, M.H. Hamzehlouei
(Reza Najafian,M.H.HamzehLouei)
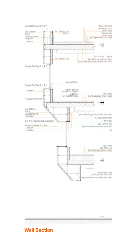
Wall Section Detail
墙面细节
© Reza Najafian, M.H. Hamzehlouei
(Reza Najafian,M.H.HamzehLouei)
Architects ReNa Design
Location Qorveh, Iran
Lead Architects Reza Najafian
Design Team Maryam Najafian, Maryam Pourmohsen, Mina Nazmjou, Mohamad Hosein Hamzehlouei, Ojan Salimi, Zahra Foroughi
Area 540.0 m2
Project Year 2017
Photographs Reza Najafian, M.H. Hamzehlouei
Category Houses
客服
消息
收藏
下载
最近




































