查看完整案例

收藏

下载
© D. Boy de la Tour
D.环游男孩
架构师提供的文本描述。北京首都博物馆位于符兴门大道上,这是一条东西向的主要通道,是西昌安街大道的延续,紧邻紫禁城和天安门广场。符兴门大道最终将被一系列高调的文化设施所环绕,其中包括一座歌剧院和一座图书馆。该博物馆原计划作为城市旗舰公共建筑之一,并将以北京作为世界主要首都的形象参与其中。该博物馆总面积为6万平方米,由矩形水平屋顶保护。它站在大街的后面,以创造一个通往城市的公共广场。
Text description provided by the architects. Beijing Capital Museum is located on Fu Xing Men Avenue, a major thoroughfare running east-west as a continuation of Xi Chang An Jie Avenue, which runs alongside the Forbidden City and Tien An Men Square. Fu Xing Men Avenue will ultimately be flanked by a series of high-profile cultural amenities including an opera house and a library. The museum was planned as one of the city flagship public building and will participate in the image of Beijing as a worldwide main capital. The museum has a total surface area of 60,000 sqm protected by a rectangular horizontal roof. It stands back from the avenue in order to create a public square that opens out onto the city.
© D. Boy de la Tour
D.环游男孩
© D. Boy de la Tour
D.环游男孩
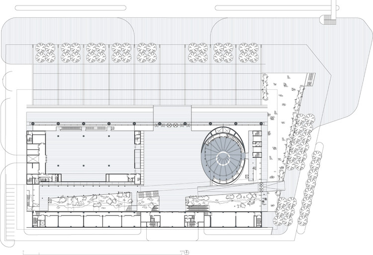
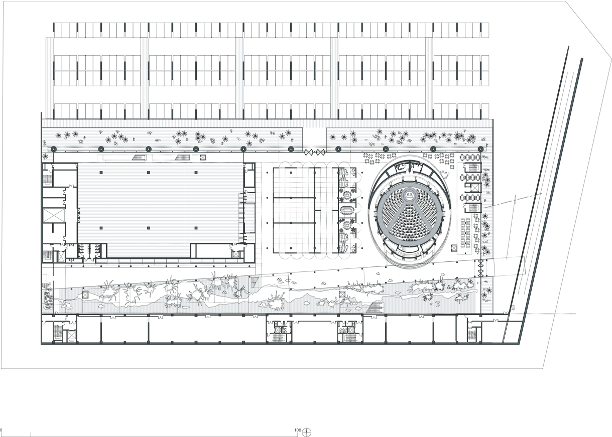
在这个悬挑在广场上方的大屋顶下,博物馆的布局是由一座中国宫殿组成的。三个展馆围绕着一个中央大厅的三面,而在第四个入口被认为是中国宫殿的入口:游客溜进博物馆下面的石墙,这是一个寓言的曲折的道路,必须进入。这三个物体中的每一个都有自己的体积、室内空间和材料,特别是与它们所收到的象征和功能用途有关的材料。其中第一个是7000平方米的“珍宝画廊”,由青铜制成,收藏了大部分珍贵物品。它形成一个圆柱体倾斜在主要的北面外观,使整个建筑的签名身份。它是鉴定博物馆的对象。
Underneath this large roof that cantilevers off above the public square, the museum layout is composed of a Chinese palace. Three pavilions surround a central hall on its 3 sides, while, on the fourth one, the main entrance is conceived as the entrance of the Chinese palaces: the visitors slip into the museum under a stone wall which is an allegory of the zigzag path one has to go through to enter. Each of the three objects has its own volume, indoor space and materials specifically related to the symbolic and functional uses they receive. The first of these objects, the 7,000 sqm “Treasure Gallery”, is made of bronze and houses most of the precious objects collection. It forms a cylinder leaning within the main north-facing façade that gives the entire building its signature identity. It is the object that identifies the museum.
© D. Boy de la Tour
D.环游男孩
第二卷在室内和室外表面都有木制筋膜,形成了一种“盒子”,在一楼举办了8,000平方米的临时展览,10,000平方米的永久藏品和一个教育区。第三部分是细长的灰色石砌,封闭了南侧的建筑,包括媒体图书馆、研究和博物馆设施以及博物馆工作人员使用的区域。其他三册建筑的基地包括附属博物馆设施,包括精品店、餐厅和礼堂,以及更多的临时展览空间、地下停车场和技术设施。
The second volume, with its wooden fascia on both indoor and outdoor surfaces, forms a sort of “box” which hosts 8,000 m² of a temporary exhibition on the ground floor, 10,000 m² of the permanent collection and an educational area. The third component is the elongated grey stone block closing off the building on the south side and which contains the media library, the research and museology facilities and areas for museum staff. The base, on which the other three volumes are built, contains ancillary museum facilities, including boutiques, restaurants and an auditorium, together with more temporary exhibition space, an underground car park and technical facilities.
广阔的室内区域的气候和声学环境受到严格控制,为游客提供最大的舒适感。自然光从朝南和东面的正面进入这些广阔的空间,并穿过屋顶。它被过滤,以尽量减少眩光,形成不同的体积和反弹不同的材料。该节目呼应了北京的文化遗产,同时也表达了北京当代的前瞻性精神。中国建筑的经典属性是用当代词汇重新表述的。
The climate and acoustical environment of the extensive indoor areas are tightly controlled to offer visitors maximum comfort. Natural light floods into these extensive spaces through the south and east facing façades and through the roof. It is filtered to minimize glare, shaping the various volumes and bouncing off the different materials. The programme echoes Beijing’s cultural heritage while simultaneously expressing the city’s contemporary, forward-looking ethos. The classical attributes of Chinese buildings are reformulated using a contemporary vocabulary.
© Andrew Yu
(年)余志强
Architects AREP
Location Fu Xing Men Wai Da Jie Fu Lu, Xicheng Qu, Beijing Shi, China
Area 60000.0 m2
Project Year 2006
Photographs D. Boy de la Tour, Andrew Yu, Tristan Chapuis
Category Museum
客服
消息
收藏
下载
最近























