查看完整案例


收藏

下载
Yoju House 2,Y组
第二宫;一栋经过精心筛选和开放的房子?
这是一座“分离但又结合在一起”的房子,三代人住在一起。这是一个70多岁的祖母的家,一个30多岁的父亲和一个中学一年级的女儿的家。这所旧房子没有适合父亲的房间,所以他不得不住在公司的宿舍里。但是现在父亲已经回家了,和他的家人一起住在一所新房子里。让三代人住在同一个屋檐下,这座新房子对他们来说是个幸福的家。
这座老房子是由祖父建造的,后来被拆掉并消失了,因此,这家人别无选择,只能在那里重建一座仓库并住在那里。对于这种情况,首先提出的建筑理念是一个安全的、功能齐全的房屋,忠实于基本的建筑理念。这个项目一开始就想提供一个新的空间,而不是建造一座建筑物。为了家庭的纽带和幸福,提出了特定的空间解决方案,以满足青春期的女儿、缺乏归属感的父亲和出生并在原地长大并具有强烈归宿本能的祖母的需要。
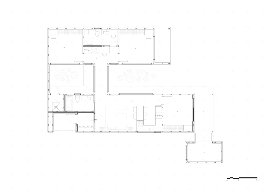
耀居有一个朝天空开放的庭院,一座11字形的建筑和通道.如果空间被屏蔽、开放和控制,这样的布置方案将导致这所房子的庭院仰望天空。
虽然外观看起来相当钝,但内部却呈现出不同的面孔。院子里有选择地引入了外面的风景。面对菜园,祖母和父亲的房间和庭院都表现出一种开放的感觉。
尤居屋的设计难度特别大。在整个三相设计过程中来回弹跳给了一个颠簸的旅程,直到达到一个最终的设计。设计按照“两层楼-单层建筑通道”的顺序发展。
由于该项目是一个新的建筑,空间被安排以各种方式到达外部。
充分利用了新建筑的优势。
一栋单层的房子坐在农村的一块大土地上,看上去相当单调,因此,利用一个使各种空间相互作用的安排方案来重新体验这种单调。
连接空间
为什么这所房子被描述成一个分开但又有保税的房子?祖母的房间、父亲的房间和女儿的房间是分开设计的,父女的房间布置得像附件一样与一条通道相连。
这篇文章是用来连接私人空间和公共空间的。
通道空间超越了走廊的功能和维度,给人一种与世隔绝和稳定的心理感觉。
由厨房窗户构成的室外景色
之所以插入一个框架式的视图,是为了在房子的道路上看到美丽的景色,目的是补偿这座不允许开门的老房子所提供的可怜经历。为堵塞邻近道路的噪音,确保私隐,尽量减少开口数目。小窗户更有效地帮助人们注意外面的事物,更清楚地看到它,留下了对风景的久久的记忆。
关于安排的想法
整体建筑布局来源于韩国传统建筑的ㅁ造型.
当从路边看到,房子只显示它的外墙与墙壁,但它打开了自己的内部。
它从路边退回去,这样它就可以通过布置相邻的外壳来流动。
它也是从拐角处的一条通路向后退的,因此当从路边看到它时,它会显示出一个封闭的形式。然而,当从它的内部看到,它展现了一个具有自然照明和通风的开放空间。
这座11字形的房屋有一座连接的桥梁,看起来像是两群人在互相问候。
面向菜园开放,房屋建筑及其视觉构图给人一种开放的感觉。
从11字形的建筑中无缝地扩展出来,室外空间为房屋空间增添了丰富的色彩。
两个庭院(口袋花园)的功能略有不同。
他们给房子和渠道额外的空间,在各种形式的采光。
为了给敏感的青春期女儿提供一个心理稳定的环境,她的房间放在最里面的地方。
父女的空间
客厅、厨房和父亲的房间都安排好面对面,鼓励父亲和其他家庭成员交流。一个迷你厨房作为父亲回家晚一点的吃饭场所,以及女儿的烹饪车间。
保障房屋安全
离地盘界线及邻近道路有足够距离,以加强路旁地区的安全。
安全距离超过法律规定的清除是可行的。
这座房子是作为一座单层建筑设计的,不遮挡后面建筑物的视野。
它的高度略有不同,它的外部画出了一条微妙变化的天际线。
在较低的水平,该地点就像一个盆地,所以它的土地被提高到相邻道路的水平。一项土方工程使地面坚硬,并将其提高50厘米,以防止水淹。
祖母亲手照料的菜园被重建了。为了让祖母感觉到心理稳定,打开了花园的视野,在花园的另一边,她儿子的房间被布置好了。
路边安装了一个仓库来存放农具。此外,还建造了一个宽敞的仓库式爱好室。它的位置面向外界,可容纳各种业余活动.
同时,它也是父女在一起的地方。
采用免维护壁板作为包层。
金属屋面覆层线和外墙精心布置,形成良好的成分。
客厅、厨房和祖母的房间设计成一个完整的空间,为祖母建立最方便的流通计划。
天井木梁暴露出一个自然友好的气氛。与客厅和厨房结合的开放空间位于入口附近。
另一方面,对于可以俯瞰庭院的房间,安装了窗帘式的木百叶窗系统,以保护隐私和提供遮荫。
Firm Y GROUP
Type Residential › Private House
STATUS Built
YEAR 2017
keywords:architecture, architecture news, interiors, interior design, portfolio, spec, brands, marketplace, products House 2, Yeoju House
关键词:建筑,建筑新闻,室内设计,组合,规格,品牌,市场,产品屋2,耀居屋
客服
消息
收藏
下载
最近










