查看完整案例

收藏

下载
故事:在密密麻麻的城市环境中,一座神秘花园里的房子。
The story: A house in a mystical garden in a dense urban setting.
当客户来到办公室时,他为他和他的儿子谈论了花园里的一栋房子。我们谈到了花园,已经有很多树了。能保留这棵棕榈树吗?我们谈过房子的事了。它必须很小。但是他需要一个角落来听音乐,来自四面八方的光线。
When the client came to the office he talked about a house in a garden for him and his son. We talked about the garden, about the many trees already there. Would it be possible to keep the palm tree? We talked about the house. It would have to be small. But he would need a corner to listen to music, and lots of light coming from all sides.
© Yiorgis Yerolymbos
Yerolymbos
这是一座秘密花园里的房子,是一座属于自己世界的房子,对自然开放,即使被雅典密集的城市结构所包围。房子隐藏在树后,它接受花园,它融合了它的颜色,它的阴影,它随着时间的变化。线性池突出几何图形。花园从窗户进入房子,把前面和后面连接起来。自然占主导地位。
This is a house in a secret garden, a house in its own world, open to nature, even though surrounded by the dense urban fabric of Athens. Hidden behind the trees, the house accepts the garden, it integrates its colors, its shadows, its changing over time. A linear pool accentuates geometries. The garden enters the house through the windows, connects the front to the back. Nature is dominant.
© Yiorgis Yerolymbos
Yerolymbos
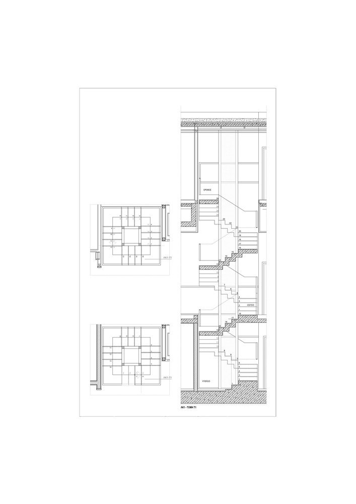
这座房子由一个混凝土底座和一个白色的金属结构的“梁”组成,这是一座线性突出的“桥”,在底部保持平衡,其折叠的末端向视野敞开。在更多的公共和私人地区之间的一个明确的区别,基地住房的起居区,而白色的“桥”住房的卧室。内部向两边开放,可以看到花园的景观,使室内充满洪水。程序很简单:一楼有客厅和厨房,上层有两间卧室套房,通往绿色屋顶,还有健身房、客房和地下室的公用设施。连接所有三个层次的黑色金属楼梯就像一朵几何的“花”,并成为一个参照点。两层主要楼层通过玻璃地板在视觉上连接起来,而顶部的天窗则带来自然光线。
The house consists of a concrete base and a white, metal-structure ‘beam’, a linear projecting ‘bridge’ that balances on the base, its folded ends open to the view. In a clear distinction between more public and private areas, the base houses the living areas while the white ‘bridge’ houses the bedrooms. Opening up to both sides the interior allows views of the garden to flood the interior. The program is simple: living room and kitchen on the ground floor, two bedroom-suites on the upper floor that open up to the green roof, and gym, guest room and utilities placed in the basement. A black metal staircase connecting all three levels evolves like a geometric ‘flower’ and becomes a point of reference. The two main floors are visually connected through a glass floor, while a skylight on top brings natural light in.
业主收藏的白色墙壁,木制地板,黑色铝窗框,黑色金属和透明玻璃,一个旋转的镜子门,把客厅和厨房隔开。倒影,意料之外的花园通过混凝土结构上的水平狭缝,另一个为厨房,一棵树的视野被一个方形的窗户框在起居室里。未经处理的钢筋混凝土,可见主楼模板的痕迹,上层白色“梁”上的热石膏和厨房几乎黑色的立方体。一扇镀锌铁门和一道篱笆遮住了大楼,使其远离街道。这所房子现在可以向花园投降了。
White walls for the owners’ collection of paintings, wooden floors, black aluminum window frames, black metal and transparent glass, a revolving mirror door that separates the livingroom from the kitchen. Reflections, unexpected views of the garden through a horizontal slit on the concrete structure, another one for the kitchen, the view of a tree framed by a square window in the livingroom. Untreated reinforced concrete with visible the marks of the formwork for the main structure, thermal plaster on the white ‘beam’ of the upper floor and the almost black cube of the kitchen. A galvanized steel door and fence hides the building from the street. The house can now surrender to the garden.
Architects RS Sparch
Location Athens, Greece
Architect in Charge Rena Sakellaridou
Area 240.0 m2
Project Year 2016
Photographs Yiorgis Yerolymbos
Category Houses
Manufacturers Loading...
客服
消息
收藏
下载
最近

































