查看完整案例


收藏

下载
结构Nid Perche/créateur d‘hébergements insolite Constructor Nid Perche/créateur d’h‘bergements insolite Client Cabane des Grands Cépage
Structure Nid Perche / créateur d'hébergements insolites Constructor Nid Perche / créateur d'hébergements insolites Client Cabanes des Grands Cépages More Specs Less Specs
© Marco Lavit Nicora
(马尔科·拉维特·尼可拉
架构师提供的文本描述。这家生态酒店位于法国阿维尼翁的一个渔业保护区.这10间套房让人想起湖岸上的原始建筑;浮在水面上,像木筏一样漂浮在水面上;在飞行员身上像帕拉菲特人一样漂浮。建筑工作与湖泊管完美地匹配,从它恢复和合理化优雅的垂直推力。棚屋周围的垂直木屏风的不同密度,既保证了顾客的隐私,也保证了他们不受阳光和风的影响。
Text description provided by the architects. The Eco-hotel is located in a fishing reserve in Avignon, France. The 10 suites evoke primitive buildings on the shore of the lake; floating on the water like rafts or on pilots like palafittes. The architectural work perfectly matches with the lacustrine tubes from which it resumes and rationalizes the elegant vertical thrust. The different densities of the vertical wooden screens around the hut guarantees the privacy of its customers as well as repairing them from the sun and the wind.
© Marco Lavit Nicora
(马尔科·拉维特·尼可拉
在法国南部一个葡萄园环绕的湖泊上建筑是一个挑战。在一个神奇的地方,像地中海马奎斯,自然是唯一的主角。建筑师必须保持与现有景观的绝对共生关系。客户们已经设想了这个生态小屋项目,选择一个令人难以置信的渔场,位于离阿维尼翁几公里远的帕佩(Ch teauneuf-du Pape)。
Building on a lake surrounded by vineyards in the south of France is a challenge. In a magical and untouched place like the Mediterranean maquis, nature is the only protagonist of the scene. The imperative for the architect remains the absolute symbiosis with the existing landscape. Clients have envisioned this eco-lodge project choosing as a location an incredible fishing reserve in Châteauneuf-du-Pape, a few kilometers away from Avignon.
© Marco Lavit Nicora
(马尔科·拉维特·尼可拉
10套房,简单但复杂,让人想起了芦苇湖的原始建筑:浮在水面上,像木筏一样漂浮在岸边,像真正的帕拉菲特(Palafitte)或地下的水柱,像一座热带住宅,莱昂纳湖(La Lionne)上矗立着大塞佩奇(Grands Cépage)的生态小屋,始终保护着居民的隐私。
10 suites, simple but sophisticated, reminding of primitive constructions in lake reeds: floating on the water like rafts, on pilotis along the banks like real palafitte or underground, like a troglodyte dwelling, the eco-lodges of the Grands Cépages rise along the lake of La Lionne, always preserving the privacy of the inhabitants.
© Marco Lavit Nicora
(马尔科·拉维特·尼可拉
这座小屋的建筑与湖边的芦苇有着完美的对话,呈现出垂直而优雅的向上势头,并使它们的布局更加合理,更加几何学,更有规律,更重复。这样的话,小屋就会被一个木制的滤镜所遮住,就像一个光幕,除了栏杆和凉亭的结构相同外,还能过滤每个房顶露台上的直接视野。这些垂直隔板的密度各不相同,可以遮挡阳光和风。
The architecture of the lodges dialogues perfectly with the lake reeds, taking up the vertical and elegant upward momentum and then rationalizing their arrangement, much more geometric, regular and repetitive. In this way the hut remains hidden by a wooden filter, like a light screen, that in addition to being the same structure for the parapets and the pergola, filters the direct view on the terraces of each lodge.Those vertical screens are of different densities and they allows to shelter from the sun and the wind.
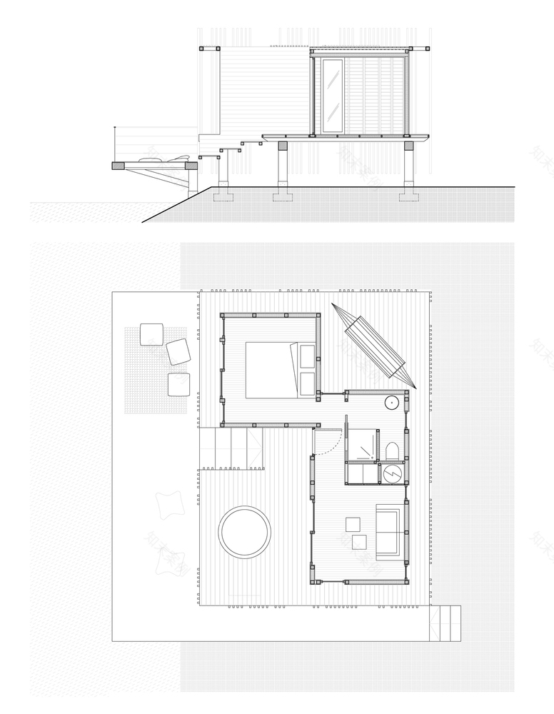
Sections / Plans
各科/图则
季节和一天中的时间的变化不断地改变着小屋的存在和动态与景观。与叶树,建筑与景观结合在一个完美的伪装。而在冬天,随着大地和湖水聚集在一层雪下,巴顿河的垂直线在水面上反射出来。白天,套房内的体验是一场光线和阴影的游戏,阳光透过屏幕过滤,突出的图案总是在地板上移动。随机缝隙提供了植被、湖泊和天空的抽象图像。日落后,效果被逆转,沉浸在黑暗中,只被月亮照亮,小屋唤起了一盏灯笼,在木板条之间放射出内部的金光。
The change of the seasons and the hours of the day constantly transform the presence and the dynamics of the hut with the landscape. With leaf trees, the architecture integrates with the landscape in a perfect camouflage. In winter instead, with the earth and the lake gathered under a blanket of snow, the vertical lines of the battens are reflected on the water. During the day, the experience inside the suite is a play of light and shadow with the sun filtering through the screening, projecting motifs always moving on the floor. Random gaps provide abstract images of vegetation, lake and sky. After sunset the effect is reversed, immersed in darkness and illuminated only by the moon, the hut evokes a lantern, radiating the internal golden light between the wooden slats.
© Marco Lavit Nicora
(马尔科·拉维特·尼可拉
为了简化偏远地区不可预见的问题,该项目主要是在一个木材车间预制的。在3个月内在现场对这些部件进行了编号、拆除和重建。在安装过程中,预制降低了生产成本和现场成本,对景观的影响尽可能小。
In order to simplify the unforeseen in a remote site, the project was largely prefabricated in a wood workshop. The components were numbered, dismantled and rebuilt on site in 3 months. Prefabrication reduced production costs and on-site costs during installation, impacting the landscape as little as possible.
© Marco Lavit Nicora
(马尔科·拉维特·尼可拉
Architects Atelier LAVIT
Location Lac de la Lionne, 84700 Sorgues, France
Architect in Charge Marco Lavit Nicora
Area 300.0 m2
Project Year 2017
Photographs Marco Lavit Nicora
Category Hotels
Manufacturers Loading...
客服
消息
收藏
下载
最近
































