查看完整案例


收藏

下载
© Trent Bell
特伦特·贝尔
架构师提供的文本描述。这座房子定义了陡峭堤坝的边缘,陡峭地下降到蓝山湾。环境虽然大胆,但非常脆弱,极易受到侵蚀。这座房子由一系列钉在海滩下的码头锚定,位于地面上方和洪水平原之上。允许地形稳定在下面。一系列海堤定义了一个平台,同时提供了一种调整河岸倾斜度的方法。
Text description provided by the architects. This house defines the edge of a precipitous embankment, one that drops steeply down to Blue Hill Bay. The environment, though bold, is extremely fragile and heavily susceptible to erosion. Anchored by a series of piers pinned to ledge beneath the beach, the house is elevated above the ground and flood plain, allowing the terrain to be stabilized below. A series of seawalls define a terrace while providing a means of adjusting the inclination of the bank.
© Trent Bell
特伦特·贝尔
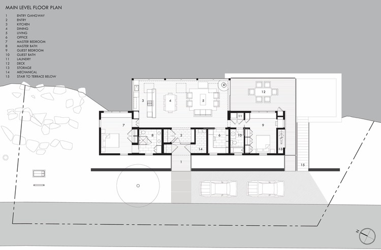
Floor Plan
© Trent Bell
特伦特·贝尔
房屋的体积受分区条例的限制,该条例限制了建筑的最大围护结构,其基础是工地上存在的一座祖辈式建筑及其与水的距离。这导致了两部分聚集,目的是将大部分允许体积分配到可以俯瞰水的主要生活区,同时保持建筑物的规模与周围建筑物相关联。在主空间,屋顶向南倾斜以捕捉日光,并将其深入房屋,同时通过高门窗提供被动通风。牧师,与天窗,大的可操作的门,和窗户在地板上,使房子保持凉爽,没有空调。
The volume of the house was governed by zoning regulations which limited the maximum buildable envelope based upon a grandfathered structure that was present on the site and its proximity to the water. This led to a bipartite massing aimed at distributing the majority of the allowable volume to the main living area overlooking the water all while keeping the scale of the structure relatable to the surrounding buildings. In the main space the roof was pitched to the south to capture daylight and filter it deep into the house, simultaneously providing passive ventilation through high clerestory windows. The clerestory, in conjunction with skylights, large operable doors, and windows at the floor level, allows the house to remain cool without air conditioning.
© Trent Bell
特伦特·贝尔
North + South Elevations
南北高地
© Dennis Welsh
c.Dennis Welsh
这是一个关键的项目要求,家庭接触水的视觉和物理。从里面,通畅的意见是通过地板到天花板玻璃,允许扩大的海湾作为背景活动在里面。涨潮时,海水从房子下面涌来,给人一种漂浮在海面上的感觉,给上面的空间留下了一种宁静的感觉。一组石阶,从下面的露台下降到海滩,在涨潮时进入水中,立即浸入大海。
It was a critical project requirement that the home engage the water both visually and physically. From inside, unobstructed views are achieved through floor to ceiling glass, allowing the expanse of the bay to act as backdrop to the activity inside. At high tide the water comes under the house providing a sense that one is floating above the sea, lending a feeling of tranquility to the space above. A set of stone steps from the terrace below descends to the beach and into the water at high tide, providing immediate immersion into the sea.
© Trent Bell
特伦特·贝尔
Architects Elliott + Elliott Architecture
Location Surry, United States
Lead Architects Corey Papadopoli, Matt Elliott
Area 1478.0 m2
Project Year 2013
Photographs Trent Bell, Dennis Welsh
Category Houses
Manufacturers Loading...
客服
消息
收藏
下载
最近





























