查看完整案例


收藏

下载
© Putu Adi Widiantara
Putu Adi Widiantara
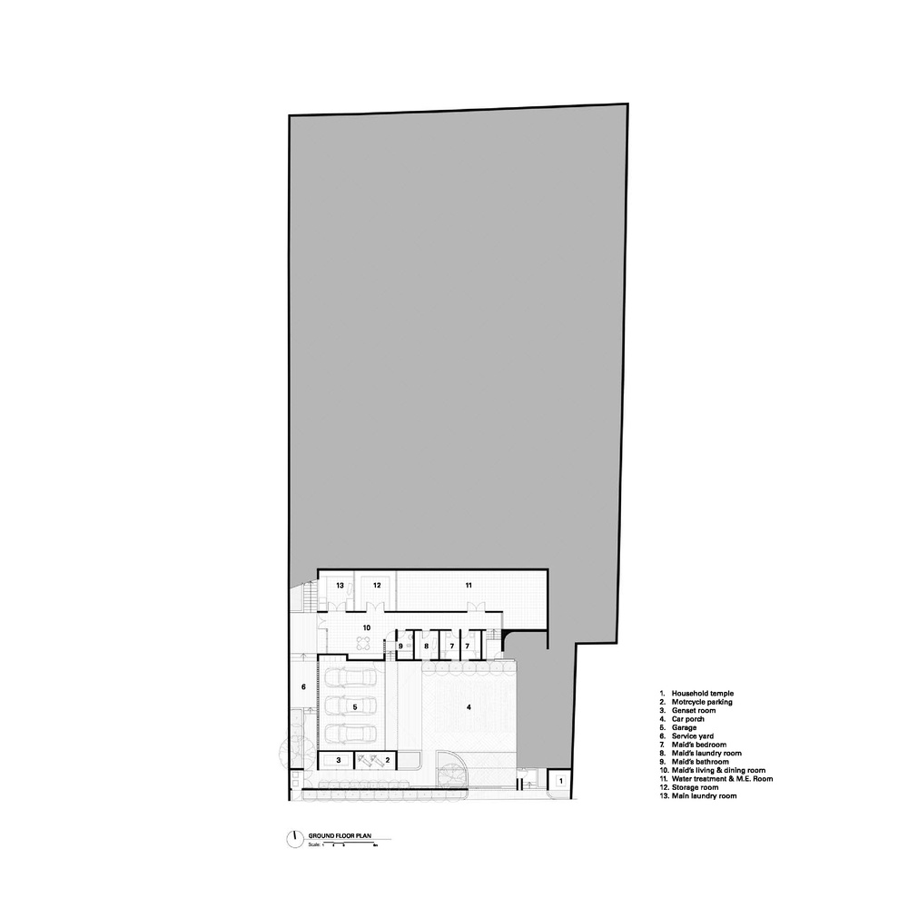
架构师提供的文本描述。客户需要一栋别墅供大家庭聚会,一套主别墅,一套别墅供两个孩子自己的家庭各住,一间供大家庭使用的客房,一间服务区和一个游泳池。
Text description provided by the architects. The Client required a villa for large family gatherings, with a master villa, a villa for each of his two children’s own families, guest rooms for the extended family, service quarters and a swimming pool.
© Putu Adi Widiantara
Putu Adi Widiantara
该遗址位于昂加桑山,向前方倾斜。后方是7米处的最高点。该遗址距乌卢瓦图悬崖约2.5公里,朝南面对大海。从最高点可以看到大海的一瞥。
The site is situated on the hill of Ungasan and is sloped down towards the front. The rear is the highest point at 7 meters. Approximately 2.5km from the Uluwatu cliff, the site faces the sea towards the south. From the highest point, a glimpse of the sea can be seen.
© Putu Adi Widiantara
Putu Adi Widiantara
Second Floor Plan
二层平面图
© Putu Adi Widiantara
Putu Adi Widiantara
关键的想法是有一个非常有背景的干预,这将与网站轮廓密切合作。在剖面上,前两翼保持为单层结构,最后一层主翼两层高,利用俯瞰大海的景色。
The key idea was to have a very contextual intervention that would work closely with the site contours. In section, the first two wings are kept as single storey structures, with the last master wing two storeys high to take advantage of the views towards the sea.
© Putu Adi Widiantara
Putu Adi Widiantara
为了庆祝和享受巴厘岛的热带环境,从入口到儿童别墅所在的第二层,地块右侧有一个广阔的景观露台。这些别墅布置在一个L形和框架一个庭院。园景的露台通向这个庭院,所以游客首先受到一个花园的欢迎,然后才进入别墅本身。这座被美化的露台一直延伸到主别墅,并在游泳池的一侧达到顶峰,游泳池几乎延伸到整个场地的宽度。随着这种不断的互动与种植和水的特点,它加强了经验通过现场。
To celebrate and enjoy Bali’s tropical environment, a wide landscaped terrace to the right of the plot leads up from the entrance level to the second level where the children’s villas are. These villas are arranged in an L-shape and frame a courtyard. The landscaped terrace leads to this courtyard, so the visitor is first greeted by a garden, before entering the villa proper. This landscaped terrace continues up towards the master villa and culminates at the side of the swimming pool, which stretches across almost the entire width of the site. With this constant interaction with planting and water features, it enhances the experience through the site.
© Putu Adi Widiantara
Putu Adi Widiantara
儿童别墅的屋顶覆盖着草坪,使之与景观融为一体,并提供愉快、畅通无阻的海景。
The roofs of the children’s villas are covered in turfing, so as to blend in with the landscape and provide pleasant, unobstructed views towards the sea.
© Putu Adi Widiantara
Putu Adi Widiantara
Architects Rafael Miranti Architects
Location Indonesia
Category Houses
Project Architect Rafael Arsono
Project Team Rafael Arsono, Margareta Miranti, Arief Kurniawan, Stephen Lim
Area 1400.0 m2
Project Year 2017
Photographs Putu Adi Widiantara
Manufacturers Loading...
客服
消息
收藏
下载
最近




















































